2-3 Bedroom, 2743-4254 Sq Ft Modern Plan with Great Room

Front elevation of Modern home (ThePlanCollection: House Plan #161-1200)

Images/Plans copyrighted by designer. Photos may reflect homeowner modifications.

About House Plan #161-1200

Sq Ft
2743
Sq Ft
Bedrooms
2
Bedrooms
Bathroom
2
Baths
Half Baths
1
Half Baths
Bedrooms
4
Cars
Bedrooms
1
Stories
Bedrooms
110' 3'
Width
Bedrooms
85
Depth
Starting at$1950.00What's included
STEP 1Bedrooms
STEP 2Bedrooms
STEP 3Bedrooms

Subtotal:$0
Plan Collection

How much will it cost to build?

Estimate your costs based on your location and materials.

Free Cost Instant Estimator

Floor Plans

Main Level
Main Level
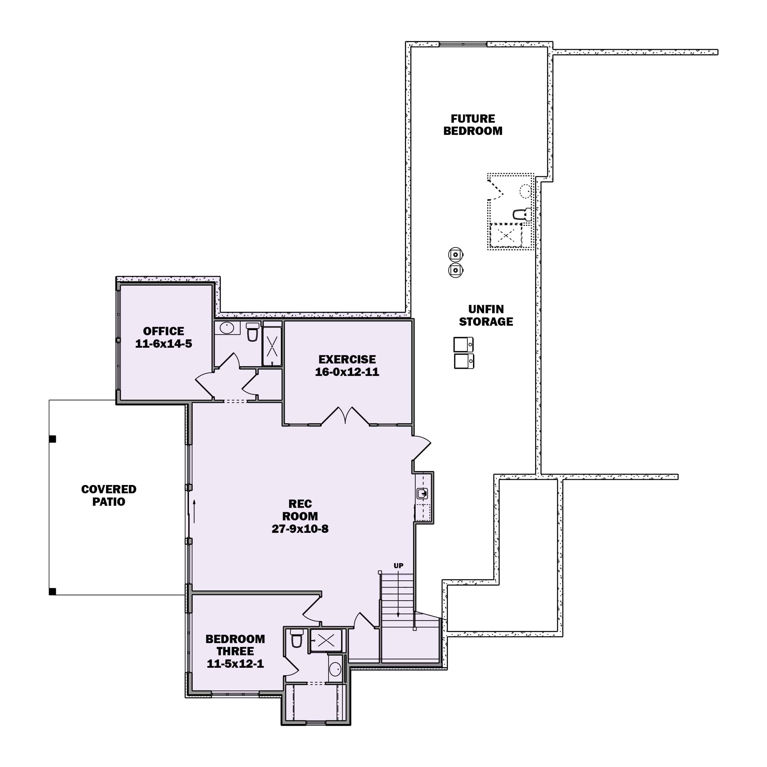
Basement Option Layout
Basement Option Layout
Plan Collection

Can I modify this plan?

Yes! This plan can be customized—contact us for a free quote.

Additional Notes from Designer

PLEASE NOTE! This designer's plans do NOT come with framing!

The optional finished basement includes an additional 1,511 square feet, 1 more bedroom, 2 more baths, and a rec room.

Note: Porch sq ft figures may include any deck sq ft as well.

House Plan Description

This impressive Modern home with California Style touches is 2,743 square feet with 2 bedrooms, 2.5 baths, and a 4-car garage. Among the many features of this beautiful home are:

  • Great Room
  • Mud Room
  • Walk-in Pantry
  • Master Bedroom with Walk-in Closet

The optional finished basement includes an additional 1,511 square feet, 1 more bedroom, 2 more baths, and a rec room.

Home Details

Summary
Plan #:161-1200
Starting at:$1950.00
Floors:1
Bedrooms:2
Full Baths:2
Half Baths:1
Garage:
Square Footage
Heated Area:2743 Sq. Ft.
Basement:1511 Sq. Ft.
First Floor:2743 Sq. Ft.
Unheated Area:
Basement:1232 Sq. Ft.
Garage:1822 Sq. Ft.
Dimensions
Width:110' 3''
Depth:85' 9''
Architectural Styles
Exterior Wall Material
BrickStucco
Roofing Type
Shed
Roofing Material
Metal
Roof Pitch
Other
Ceiling Height
10 Foot Ceiling
Special Feature
FireplaceGuest RoomMud RoomFamily RoomMain Level LaundryColor PhotosSplit BathroomOpen Floor Plan
Garage Type
Attached GarageSide EntryFront Entry
Fireplaces
One Fireplace
Exterior Wall Framing
2x6
Building Lot Type
Side Slope Site
Kitchen Features
Kitchen IslandEat-In Kitchen
Porches and Exterior Features
Covered Front PorchSundeckCovered Rear Patio
Master Suite Features
Main Floor MasterMaster BathroomWalk In ClosetSplit Master Bedroom

What’s Included

Most plan sets include the following:

icon text-secondary-400 includedExterior elevations

icon text-secondary-400 includedMain Floor plan

icon text-secondary-400 includedArchitectural’ Foundation Plan

icon text-secondary-400 includedArchitectural’ Roof Plan

icon text-secondary-400 includedSections

icon text-secondary-400 includedMain Floor Electrical Plan

icon text-secondary-400 includedNo Framing

What’s Not Included

These items are  NOT included:

icon text-secondary-400 includedArchitectural or Engineering Stamp - handled locally if required.

icon text-secondary-400 includedSite Plan - handled locally when required.

icon text-secondary-400 includedPlumbing Drawings (drawings showing the actual plumbing pipe sizes and locations) - your subcontractors handle this.

icon text-secondary-400 includedEnergy calculations - handled locally when required.

Related House Plans

Plan Collection
Plan Collection
Plan Collection
Plan#194-1010
Starting at$1395
2605
Sq Ft
1
Story
2
Bed
2.5
Bath
3
Car
Plan Collection
Plan Collection
Plan Collection
Plan#161-1085
Starting at$1750
2593
Sq Ft
1
Story
2
Bed
2.5
Bath
3
Car
Plan Collection
Plan Collection
Plan Collection
Plan#161-1097
Starting at$1750
2422
Sq Ft
1
Story
2
Bed
2.5
Bath
3
Car
View All

Other Plans By This Designer

Plan Collection
Plan Collection
Plan Collection
Plan#161-1145
Starting at$2650
3907
Sq Ft
2
Story
4
Bed
3.5
Bath
3
Car
Plan Collection
Plan Collection
Plan Collection
Plan#161-1077
Starting at$4500
6563
Sq Ft
2
Story
5
Bed
5.5
Bath
5
Car
Plan Collection
Plan Collection
Plan Collection
Plan#161-1084
Starting at$4200
5170
Sq Ft
2
Story
5
Bed
5.5
Bath
3
Car