5-Bedroom, 2716 Sq Ft Ranch Plan with Walk-in Pantry

Main image for house plan # 19477

Images/Plans copyrighted by designer. Photos may reflect homeowner modifications.

About House Plan #101-1377

Sq Ft
2716
Sq Ft
Bedrooms
5
Bedrooms
Bathroom
2
Baths
Half Baths
1
Half Baths
Bedrooms
3
Cars
Bedrooms
1
Stories
Bedrooms
63' 0'
Width
Bedrooms
62
Depth
Starting at$1100.00What's included
STEP 1Bedrooms
STEP 2Bedrooms
STEP 3Bedrooms

Subtotal:$0
Plan Collection

How much will it cost to build?

Estimate your costs based on your location and materials.

Free Cost Instant Estimator

Floor Plans

MAIN FLOOR PLAN
MAIN FLOOR PLAN
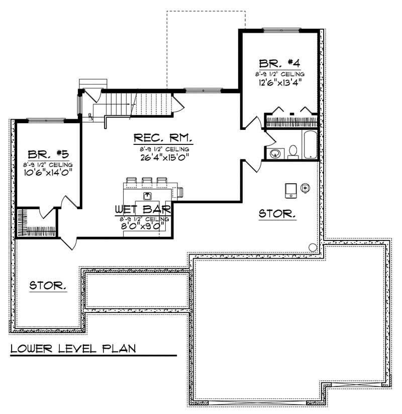
BASEMENT FLOOR PLAN
BASEMENT FLOOR PLAN
Plan Collection

Can I modify this plan?

Yes! This plan can be customized—contact us for a free quote.

House Plan Description

Graceful columns and a careful blend of stone and shingle siding give this home a country charm that will inspire many buyers. Inside an open floor plan creates a living space where the kitchen, dining room and great room all work together. The master suite is located behind the garage and includes a large walk-in closet and dual sinks. The other two bedrooms are on the opposite side of the home and share the full bath just off the hallway. The completed lower level includes a large recreation room, wet bar and two additional bedrooms. The three-stall garage makes this the perfect home for a...

Home Details

Summary
Plan #:101-1377
Starting at:$1100.00
Floors:1
Bedrooms:5
Full Baths:2
Half Baths:1
Garage:
Square Footage
Heated Area:2716 Sq. Ft.
First Floor:1720 Sq. Ft.
Unheated Area:
Basement:996 Sq. Ft.
Garage:792 Sq. Ft.
Dimensions
Architectural Styles
Exterior Wall Material
Aluminum SidingVinyl SidingRock/StoneWood SidingShakes
Roof Pitch
6/128/12
Special Feature
Dining Room
Garage Type
Front Entry

What’s Included

Most plan sets include the following:

icon text-secondary-400 includedFront, Back & Side Elevations

icon text-secondary-400 includedFloor Plans

icon text-secondary-400 includedElectrical Layout (location of outlets, switches, etc. - it does not have wiring schematics)

icon text-secondary-400 includedRoof Plan (Birdseye view)

icon text-secondary-400 includedFoundation Layout

icon text-secondary-400 includedWall & Stair Sections

icon text-secondary-400 includedCross Section

icon text-secondary-400 includedKitchen Layout

icon text-secondary-400 includedGeneral Notes

What’s Not Included

These items are  NOT included:

icon text-secondary-400 includedArchitectural or Engineering Stamp - handled locally if required.

icon text-secondary-400 includedSite Plan - handled locally when required.

icon text-secondary-400 includedMechanical Drawings (location of heating and air equipment and ductwork) - your subcontractors handle this.

icon text-secondary-400 includedPlumbing Drawings (drawings showing the actual plumbing pipe sizes and locations) - your subcontractors handle this.

icon text-secondary-400 includedFraming layouts with beam sizes and locations.

icon text-secondary-400 includedEnergy calculations - handled locally when required.

Related House Plans

Plan Collection
Plan Collection
Plan Collection
Plan#126-1093
Starting at$1715
2274
Sq Ft
1
Story
5
Bed
2
Bath
0
Car
Plan Collection
Plan Collection
Plan Collection
Plan#101-1190
Starting at$975
2690
Sq Ft
1
Story
5
Bed
2
Bath
3
Car
View All

Other Plans By This Designer

Plan Collection
Plan Collection
Plan Collection
Plan#101-2006
Starting at$0
4724
Sq Ft
2
Story
4
Bed
4.5
Bath
4
Car
Plan Collection
Plan Collection
Plan Collection
Plan#101-2024
Starting at$1180
3235
Sq Ft
1
Story
5
Bed
3.5
Bath
3
Car
Plan Collection
Plan Collection
Plan Collection
Plan#101-2028
Starting at$0
4406
Sq Ft
2
Story
4
Bed
3.5
Bath
4
Car