2-4 Bedroom, 2700-4691 Sq Ft Contemporary Plan with Great Room

Front elevation of Contemporary home (ThePlanCollection: House Plan #161-1181)

Images/Plans copyrighted by designer. Photos may reflect homeowner modifications.

About House Plan #161-1181

Sq Ft
2700
Sq Ft
Bedrooms
2
Bedrooms
Bathroom
2
Baths
Half Baths
1
Half Baths
Bedrooms
3
Cars
Bedrooms
1
Stories
Bedrooms
72' 0'
Width
Bedrooms
82
Depth
Starting at$1750.00What's included
STEP 1Bedrooms
STEP 2Bedrooms
STEP 3Bedrooms

Subtotal:$0
Plan Collection

How much will it cost to build?

Estimate your costs based on your location and materials.

Free Cost Instant Estimator

Floor Plans

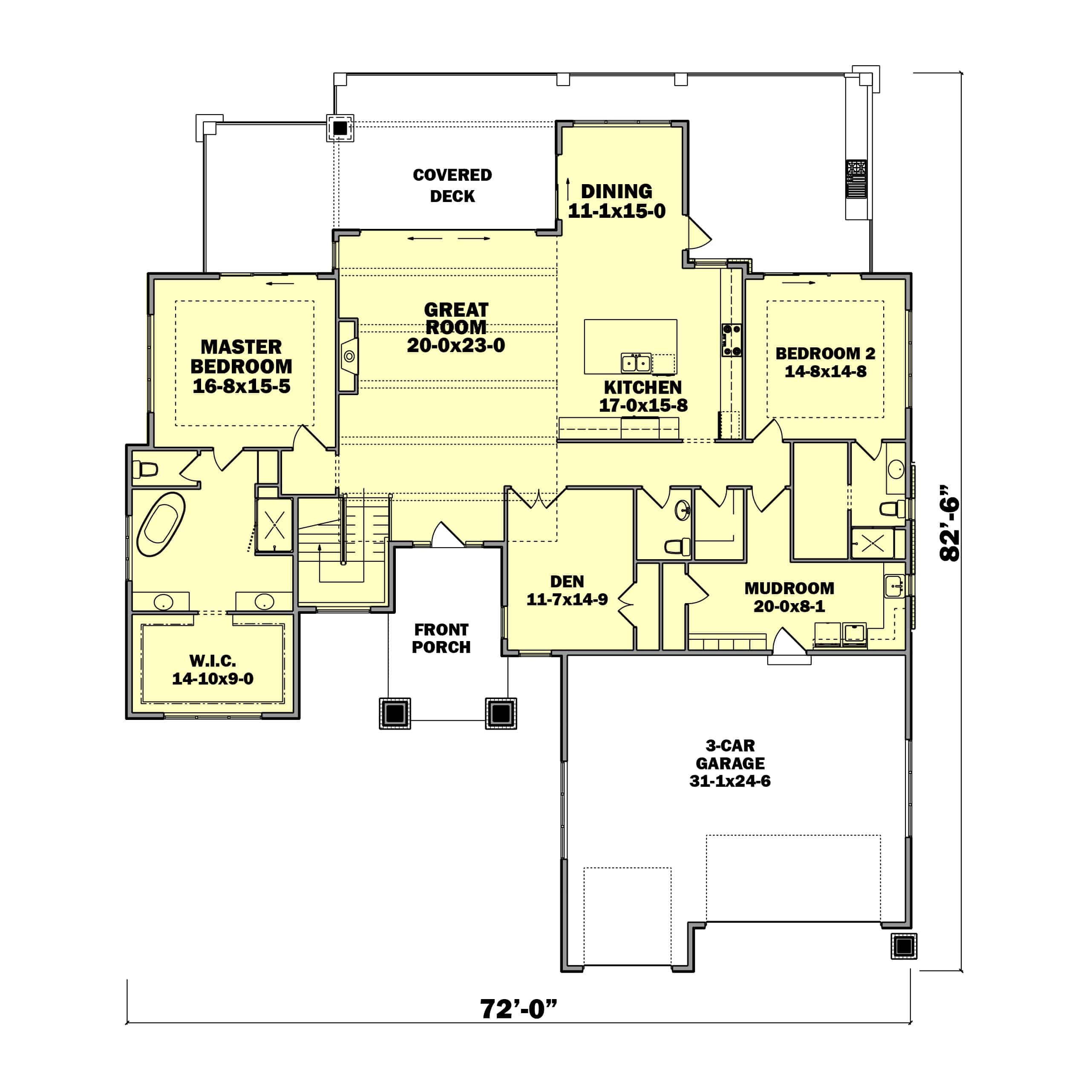
Main Level
Main Level
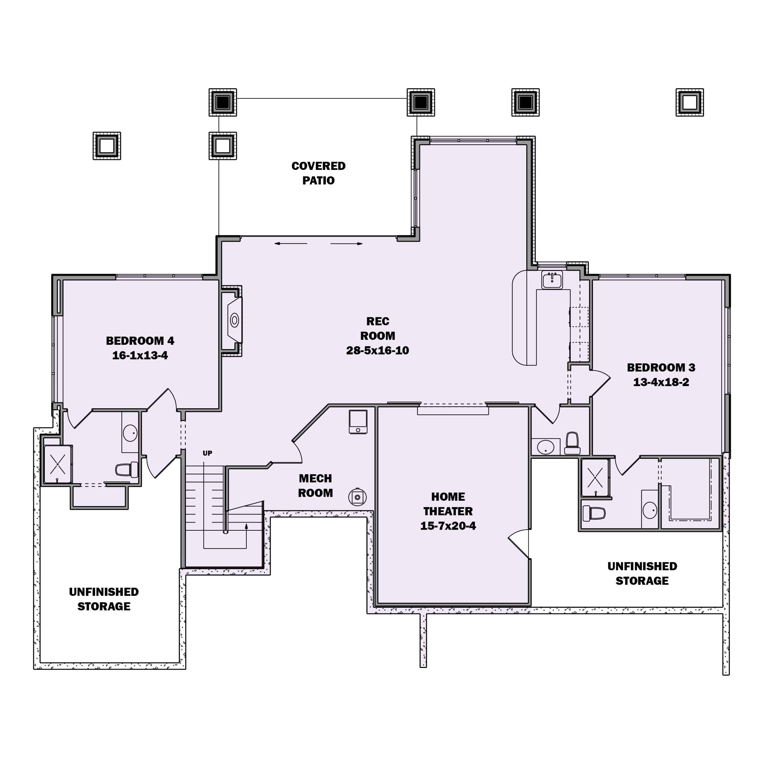
Basement Option Layout
Basement Option Layout
Plan Collection

Can I modify this plan?

Yes! This plan can be customized—contact us for a free quote.

Additional Notes from Designer

PLEASE NOTE! This designer's plans do NOT come with framing!

Porch Sq Ft figures include any deck sq ft as well.

House Plan Description

This impressive Country home with Modern-Contemporary style is 2,700 square feet with 2 bedrooms, 2.5 baths, and a 3-car garage. The following are just a few of the many wonderful amenities that this stunning home has to offer:

  • Great Room
  • Mudroom
  • Den
  • Master Bedroom with Walk-in Closet

The optional finished basement includes an additional 1,991 square feet, 2 more bedrooms, 2.5 more baths, and a home theater.

Home Details

Summary
Plan #:161-1181
Starting at:$1750.00
Floors:1
Bedrooms:2
Full Baths:2
Half Baths:1
Garage:
Square Footage
Heated Area:2700 Sq. Ft.
Basement:1991 Sq. Ft.
First Floor:2700 Sq. Ft.
Unheated Area:
Basement:709 Sq. Ft.
Garage:848 Sq. Ft.
Porch:1298 Sq. Ft.
Dimensions
Depth:82' 6''
Architectural Styles
Exterior Wall Material
Vinyl SidingStuccoRock/StoneWood Siding
Roofing Type
GableHip
Roofing Material
Asphalt Shingles
Roof Pitch
4/12
Ceiling Height
10 Foot Ceiling
Special Feature
FireplaceMud RoomFamily RoomMain Level LaundryColor PhotosSplit BathroomOpen Floor PlanInterior Photos
Garage Type
Attached GarageFront Entry
Fireplaces
One Fireplace
Exterior Wall Framing
2x6
Building Lot Type
Down Site
Kitchen Features
Kitchen Island
Porches and Exterior Features
Covered Front PorchCovered Rear PorchSundeck
Master Suite Features
Main Floor MasterMaster BathroomWalk In ClosetSplit Master Bedroom

What’s Included

Most plan sets include the following:

icon text-secondary-400 includedExterior elevations

icon text-secondary-400 includedMain Floor plan

icon text-secondary-400 includedArchitectural’ Foundation Plan

icon text-secondary-400 includedArchitectural’ Roof Plan

icon text-secondary-400 includedSections

icon text-secondary-400 includedMain Floor Electrical Plan

icon text-secondary-400 includedNo Framing

What’s Not Included

These items are  NOT included:

icon text-secondary-400 includedArchitectural or Engineering Stamp - handled locally if required.

icon text-secondary-400 includedSite Plan - handled locally when required.

icon text-secondary-400 includedPlumbing Drawings (drawings showing the actual plumbing pipe sizes and locations) - your subcontractors handle this.

icon text-secondary-400 includedEnergy calculations - handled locally when required.

Related House Plans

Plan Collection
Plan Collection
Plan Collection
Plan#194-1010
Starting at$1395
2605
Sq Ft
1
Story
2
Bed
2.5
Bath
3
Car
Plan Collection
Plan Collection
Plan Collection
Plan#161-1085
Starting at$1750
2593
Sq Ft
1
Story
2
Bed
2.5
Bath
3
Car
Plan Collection
Plan Collection
Plan Collection
Plan#161-1042
Starting at$2200
3321
Sq Ft
1
Story
2
Bed
2.5
Bath
3
Car
View All

Other Plans By This Designer

Plan Collection
Plan Collection
Plan Collection
Plan#161-1145
Starting at$2650
3907
Sq Ft
2
Story
4
Bed
3.5
Bath
3
Car
Plan Collection
Plan Collection
Plan Collection
Plan#161-1077
Starting at$4500
6563
Sq Ft
2
Story
5
Bed
5.5
Bath
5
Car
Plan Collection
Plan Collection
Plan Collection
Plan#161-1084
Starting at$4200
5170
Sq Ft
2
Story
5
Bed
5.5
Bath
3
Car