Duplex with 1301 Sq Ft, 2 Bedrooms Per Unit

Front elevation of Multi-Unit home (ThePlanCollection: House Plan #138-1260)

Images/Plans copyrighted by designer. Photos may reflect homeowner modifications.

About House Plan #138-1260

Sq Ft
2602
Sq Ft
Bedrooms
4
Bedrooms
Bathroom
4
Baths
Half Baths
0
Half Baths
Bedrooms
0
Cars
Bedrooms
1
Stories
Bedrooms
83' 6'
Width
Bedrooms
39
Depth
Starting at$1250.00What's included
STEP 1Bedrooms
STEP 2Bedrooms
STEP 3Bedrooms

Subtotal:$0
Plan Collection

How much will it cost to build?

Estimate your costs based on your location and materials.

Free Cost Instant Estimator

Floor Plans

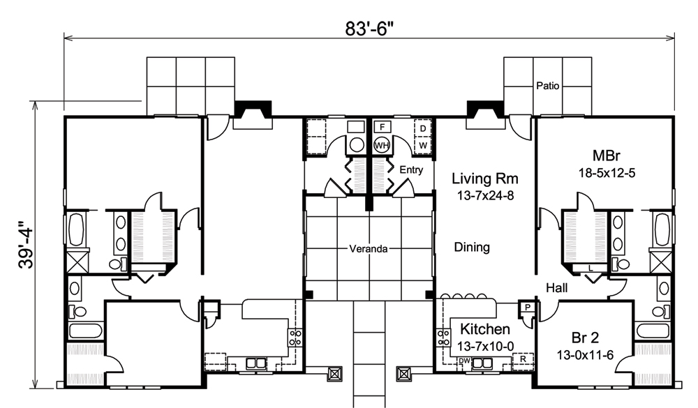
Floor Plan Main Level
Floor Plan Main Level
Plan Collection

Can I modify this plan?

Yes! This plan can be customized—contact us for a free quote.

Additional Notes from Designer

PLEASE NOTE: Not all plans from this designer can be modified! Please check before sending in a mod request. Thank you!

House Plan Description

This lovely Multi-Unit style home with Florida Style influences (Multi-Family House Plan #138-1260) has 1301 square feet of living space per unit. The 1 story floor plan includes 2 bedrooms per unit.

Home Details

Summary
Plan #:138-1260
Starting at:$1250.00
Floors:1
Bedrooms:4
Full Baths:4
Half Baths:0
Garage:
Square Footage
Heated Area:2602 Sq. Ft.
First Floor:2602 Sq. Ft.
Unheated Area:
Dimensions
Width:83' 6''
Depth:39' 4''
Architectural Styles
Exterior Wall Material
Stucco
Roofing Type
GableGable/Shed Dormer
Roofing Material
Tiles
Special Feature
FireplaceDining RoomMain Level LaundryOpen Floor Plan
Fireplaces
Two Fireplaces
Exterior Wall Framing
2x4
Kitchen Features
Nook/Breakfast AreaWalk-in PantryPeninsula/Eating BarEat-In Kitchen
Porches and Exterior Features
Covered Front PorchPatio
Master Suite Features
Main Floor MasterMaster BathroomWalk In Closet

What’s Included

Most plan sets include the following:

icon text-secondary-400 includedCover sheet

icon text-secondary-400 includedFoundation plan

icon text-secondary-400 includedFloor plans

icon text-secondary-400 includedExterior elevations

icon text-secondary-400 includedRoof plan

icon text-secondary-400 includedDetails Sheet

icon text-secondary-400 includedSections

icon text-secondary-400 includedInterior elevations

What’s Not Included

These items are  NOT included:

icon text-secondary-400 includedArchitectural or Engineering Stamp - handled locally if required.

icon text-secondary-400 includedSite Plan - handled locally when required.

icon text-secondary-400 includedMechanical Drawings (location of heating and air equipment and ductwork) - your subcontractors handle this.

icon text-secondary-400 includedPlumbing Drawings (drawings showing the actual plumbing pipe sizes and locations) - your subcontractors handle this.

icon text-secondary-400 includedEnergy calculations - handled locally when required.

Related House Plans

Plan Collection
Plan Collection
Plan Collection
Plan#153-1129
Starting at$1200
2024
Sq Ft
1
Story
4
Bed
4
Bath
2
Car
Plan Collection
Plan Collection
Plan Collection
Plan#138-1258
Starting at$1150
2030
Sq Ft
1
Story
4
Bed
4
Bath
0
Car
Plan Collection
Plan Collection
Plan Collection
Plan#138-1257
Starting at$1150
2008
Sq Ft
1
Story
4
Bed
4
Bath
0
Car
View All

Other Plans By This Designer

Plan Collection
Plan Collection
Plan Collection
Plan#138-1209
Starting at$450
421
Sq Ft
1
Story
1
Bed
1
Bath
1
Car
Plan Collection
Plan Collection
Plan Collection
Plan#138-1314
Starting at$1050
1536
Sq Ft
1
Story
4
Bed
2
Bath
0
Car
Plan Collection
Plan Collection
Plan Collection
Plan#138-1315
Starting at$1050
1536
Sq Ft
1
Story
4
Bed
2
Bath
0
Car