3-Bedroom, 2498 Sq Ft Cottage Plan with 9- and 10-Foot Ceilings

Cottage home (ThePlanCollection: Plan #198-1038)

Images/Plans copyrighted by designer. Photos may reflect homeowner modifications.

About House Plan #198-1038

Sq Ft
2498
Sq Ft
Bedrooms
3
Bedrooms
Bathroom
3
Baths
Half Baths
0
Half Baths
Bedrooms
3
Cars
Bedrooms
1
Stories
Bedrooms
50' 0'
Width
Bedrooms
100
Depth
Starting at$2195.00What's included
STEP 1Bedrooms
STEP 2Bedrooms
STEP 3Bedrooms

Subtotal:$0
Plan Collection

How much will it cost to build?

Estimate your costs based on your location and materials.

Free Cost Instant Estimator

Floor Plans

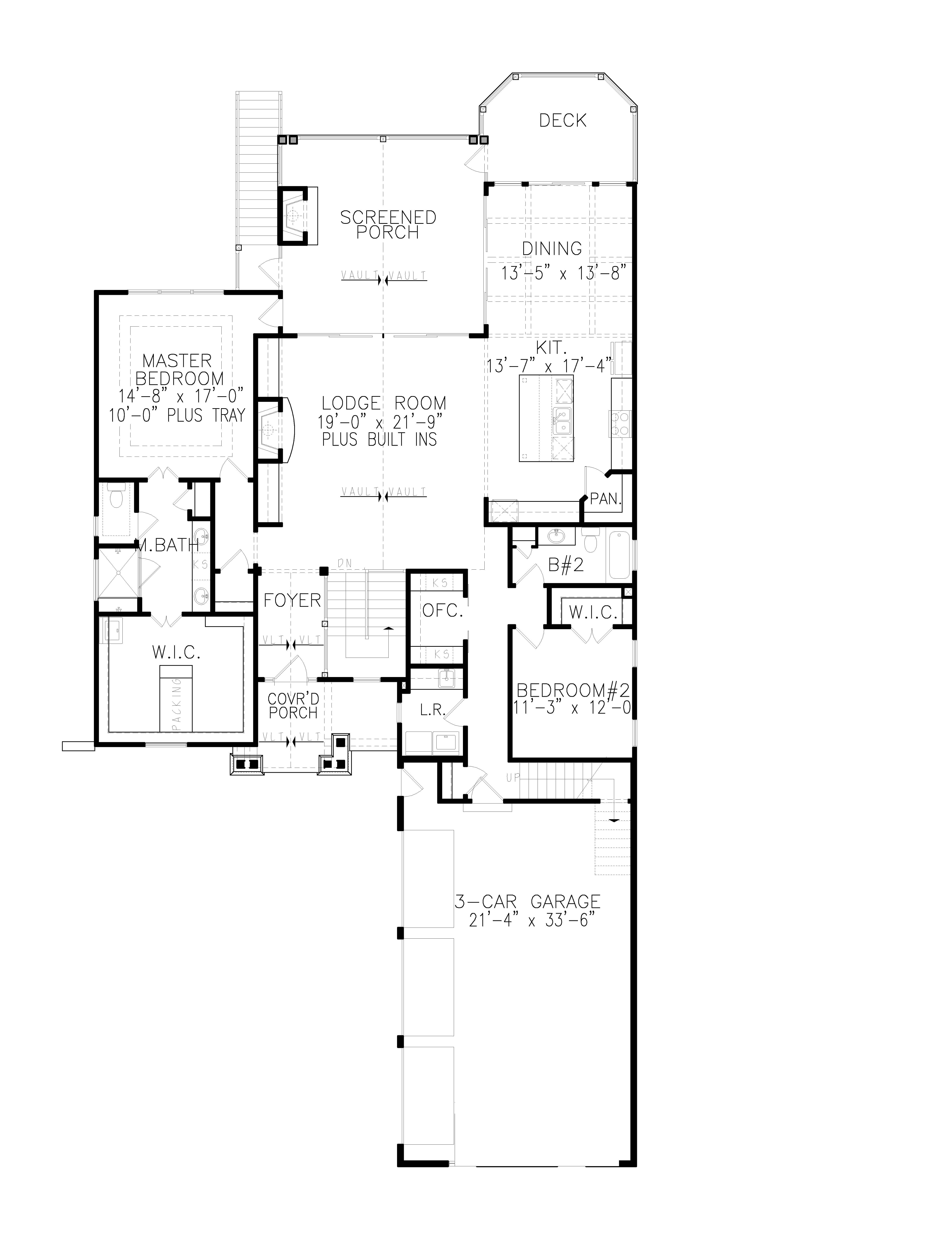
Floor Plan Main Level
Floor Plan Main Level
Floor Plan Upper Level
Floor Plan Upper Level
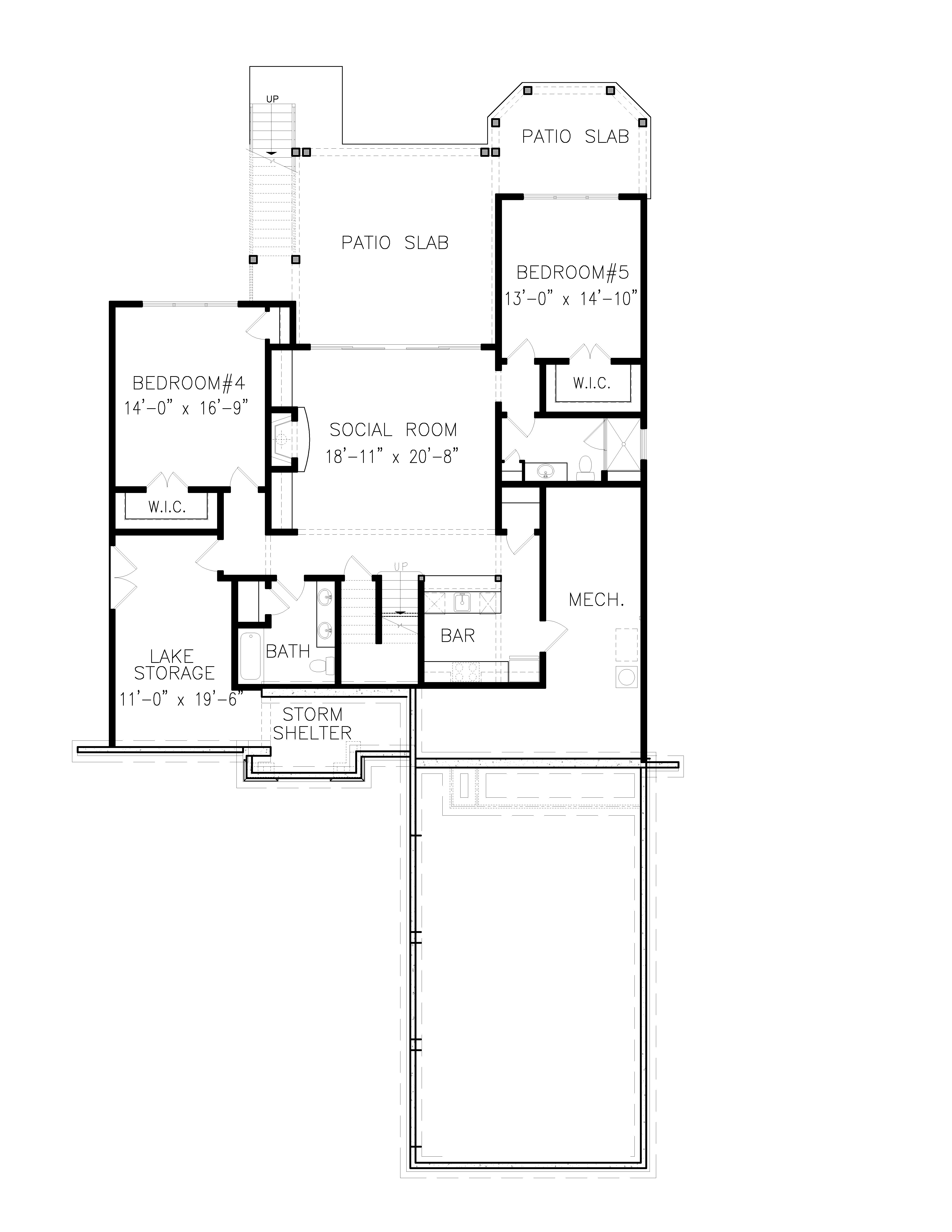
Lower Level
Lower Level
Plan Collection

Can I modify this plan?

Yes! This plan can be customized—contact us for a free quote.

Additional Notes from Designer

NO Material lists.

House Plan Description

This charming Cottage style 3-bedroom, 3-bath home with rustic and Craftsman touches has lots of features that may be attractive to today's home buyers. The open floor plan and main floor master with large walk-in closet fit for two are appealing, as are the vaulted ceilings in the front porch, foyer, lodge room (or great room), and covered rear porch. Plus, the second main-floor bedroom has a semi-private bathroom nearby and nice walk-in closet. In addition, there's a third bedroom and bath upstairs and room for two more bedrooms, a bath, a social room, and storage in...

Home Details

Summary
Plan #:198-1038
Starting at:$2195.00
Floors:1
Bedrooms:3
Full Baths:3
Half Baths:0
Garage:
Square Footage
Heated Area:2498 Sq. Ft.
First Floor:2147 Sq. Ft.
Second Floor:351 Sq. Ft.
Unheated Area:
Basement:1456 Sq. Ft.
Dimensions
Depth:100' 9''
Architectural Styles
Exterior Wall Material
BrickShakes
Roofing Type
Gable
Roofing Material
Asphalt Shingles
Ceiling Height
10 Foot Ceiling9 Foot Ceiling
Special Feature
FireplaceDining RoomHome OfficeFamily RoomMain Level LaundryStorageVaulted CeilingsOpen Floor PlanL-Shaped
Garage Type
Attached GarageCourtyard Entry
Fireplaces
Two Fireplaces
Kitchen Features
Kitchen IslandWalk-in PantryPeninsula/Eating Bar
Porches and Exterior Features
Covered Front PorchCovered Rear PorchSundeck
Master Suite Features
Main Floor MasterMaster BathroomWalk In ClosetSplit Master Bedroom

What’s Included

Most plan sets include the following:

icon text-secondary-400 includedExterior elevations

icon text-secondary-400 includedFoundation plan

icon text-secondary-400 includedDetailed floor plans

icon text-secondary-400 includedInterior details

icon text-secondary-400 includedRoof plan

icon text-secondary-400 includedCross-section details

icon text-secondary-400 includedElectrical layout

What’s Not Included

These items are  NOT included:

icon text-secondary-400 includedArchitectural or Engineering Stamp - handled locally if required.

icon text-secondary-400 includedSite Plan - handled locally when required.

icon text-secondary-400 includedMechanical Drawings (location of heating and air equipment and ductwork) - your subcontractors handle this.

icon text-secondary-400 includedPlumbing Drawings (drawings showing the actual plumbing pipe sizes and locations) - your subcontractors handle this.

icon text-secondary-400 includedEnergy calculations - handled locally when required.

Related House Plans

Plan Collection
Plan Collection
Plan Collection
Plan#109-1193
Starting at$1395
2156
Sq Ft
1
Story
3
Bed
3
Bath
3
Car
Plan Collection
Plan Collection
Plan Collection
Plan#106-1283
Starting at$1695
2531
Sq Ft
1
Story
3
Bed
3.5
Bath
3
Car
Plan Collection
Plan Collection
Plan Collection
Plan#109-1184
Starting at$1395
2097
Sq Ft
1
Story
3
Bed
3
Bath
3
Car
View All

Other Plans By This Designer

Plan Collection
Plan Collection
Plan Collection
Plan#198-1053
Starting at$2195
2498
Sq Ft
1.5
Story
3
Bed
3
Bath
3
Car
Plan Collection
Plan Collection
Plan Collection
Plan#198-1054
Starting at$2630
4376
Sq Ft
2
Story
4
Bed
4.5
Bath
3
Car
Plan Collection
Plan Collection
Plan Collection
Plan#198-1060
Starting at$1985
3970
Sq Ft
2
Story
5
Bed
4.5
Bath
2
Car