3-Bedroom, 2913 Sq Ft Craftsman Plan with Walk-in Kitchen Pantry

Craftsman shingle home (ThePlanCollection: Plan #108-1123)

Images/Plans copyrighted by designer. Photos may reflect homeowner modifications.

About House Plan #108-1123

Sq Ft
2913
Sq Ft
Bedrooms
3
Bedrooms
Bathroom
3
Baths
Half Baths
1
Half Baths
Bedrooms
2
Cars
Bedrooms
1
Stories
Bedrooms
82' 0'
Width
Bedrooms
66
Depth
Starting at$1925.00What's included
STEP 1Bedrooms
STEP 2Bedrooms
STEP 3Bedrooms

Subtotal:$0
Plan Collection

How much will it cost to build?

Estimate your costs based on your location and materials.

Free Cost Instant Estimator

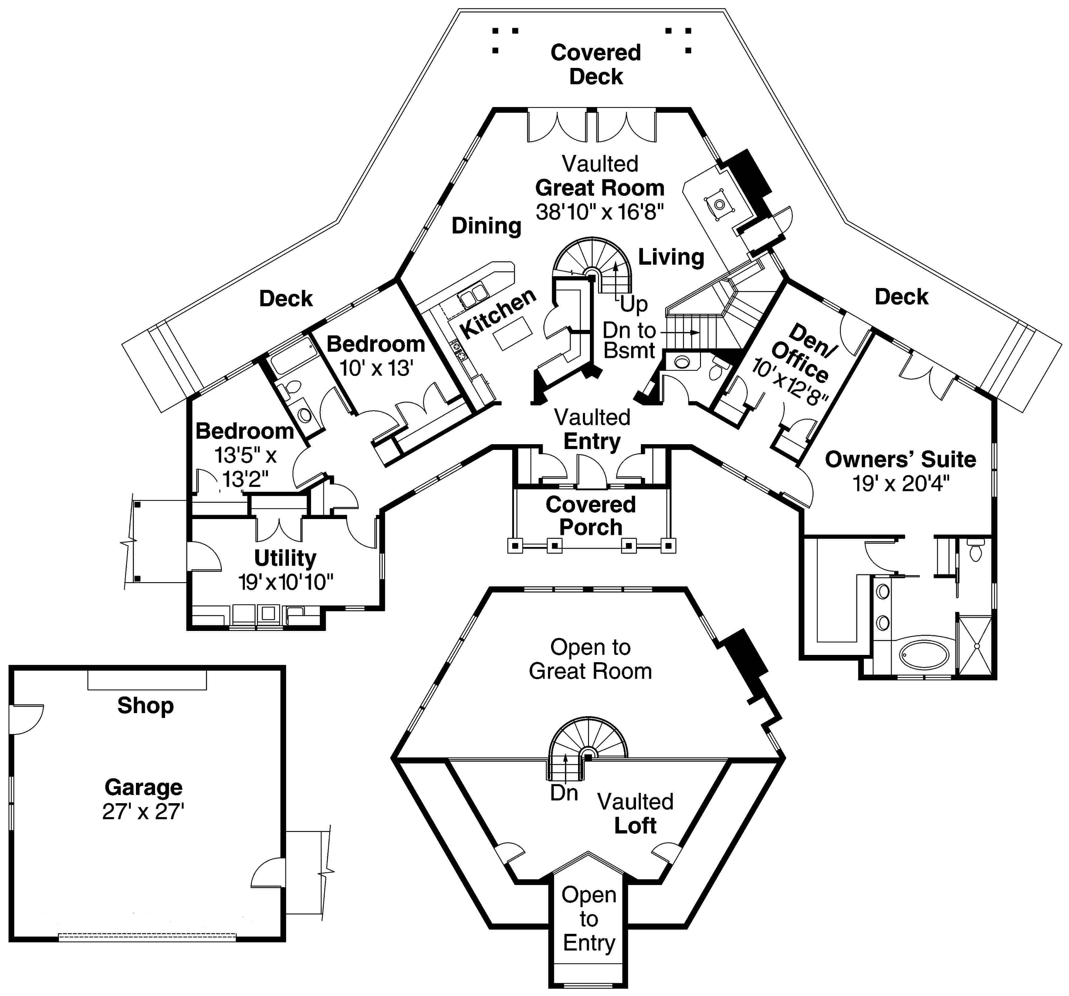
Floor Plans

Floor Plan Main Level
Floor Plan Main Level
Plan Collection

Can I modify this plan?

Yes! This plan can be customized—contact us for a free quote.

Additional Notes from Designer

PLEASE NOTE!! For this designer, The PDF that comes with the PRINT Packages (5 set+PDF and 8 set+PDF) is NOT Modifiable - it is for printing ONLY! PLEASE NOTE!! Optional Foundations (foundations that cost extra money) will take 5-10 business days to complete.

House Plan Description

Looking for all the world like a Shingle style home from the curb, this house is actually designed in the shape of a hexagon, with two "wings," one each on the left and right, that contain bedrooms and an office. The central hexagon contains the living spaces.

The vaulted entry comes off the covered front porch and leads to the kitchen on the left and the living room on the right. The entire central hexagon is an open floor plan Great Room that contains living, dining, and kitchen areas with a staircase in the middle leading to a vaulted...

Home Details

Summary
Plan #:108-1123
Starting at:$1925.00
Floors:1
Bedrooms:3
Full Baths:3
Half Baths:1
Garage:
Square Footage
Heated Area:2913 Sq. Ft.
First Floor:2650 Sq. Ft.
Unheated Area:
Basement:1873 Sq. Ft.
Bonus Room:263 Sq. Ft.
Garage:784 Sq. Ft.
Dimensions
Ridge Height:23' 0''
Architectural Styles
Exterior Wall Material
Rock/StoneWood SidingShakes
Roofing Type
Hip
Roofing Material
Metal
Roof Pitch
6/12
Ceiling Height
9 Foot Ceiling
Special Feature
FireplaceDining RoomHome OfficeMud RoomMain Level LaundryLoftSplit BathroomDenVaulted CeilingsWorkshopBalcony
Garage Type
Detached GarageFront Entry
Exterior Wall Framing
2x6
Kitchen Features
Kitchen IslandNook/Breakfast AreaWalk-in PantryPeninsula/Eating BarEat-In Kitchen
Porches and Exterior Features
Covered Front PorchCovered Rear PorchSundeck
Master Suite Features
Main Floor MasterMaster BathroomWalk In ClosetSplit Master Bedroom

What’s Included

Most plan sets include the following:

icon text-secondary-400 included Artist’s rendering of the home,

icon text-secondary-400 included Front/Rear/Left and Right Elevations,

icon text-secondary-400 included Main floor plan, Second or Basement floor plans (if applicable),

icon text-secondary-400 included Foundation plan and detail,

icon text-secondary-400 included Floor framing plan,

icon text-secondary-400 included Roof framing plan, supporting details and

icon text-secondary-400 included Electric layout.

What’s Not Included

These items are  NOT included:

icon text-secondary-400 includedArchitectural or Engineering Stamp - handled locally if required.

icon text-secondary-400 includedSite Plan - handled locally when required.

icon text-secondary-400 includedMechanical Drawings (location of heating and air equipment and ductwork) - your subcontractors handle this.

icon text-secondary-400 includedPlumbing Drawings (drawings showing the actual plumbing pipe sizes and locations) - your subcontractors handle this.

icon text-secondary-400 includedEnergy calculations - handled locally when required.

Related House Plans

Plan Collection
Plan Collection
Plan Collection
Plan#106-1283
Starting at$1695
2531
Sq Ft
1
Story
3
Bed
3.5
Bath
3
Car
Plan Collection
Plan Collection
Plan Collection
Plan#175-1134
Starting at$1400
2684
Sq Ft
1
Story
3
Bed
3
Bath
2
Car
Plan Collection
Plan Collection
Plan Collection
Plan#109-1103
Starting at$1395
2461
Sq Ft
1
Story
3
Bed
3
Bath
3
Car
View All

Other Plans By This Designer

Plan Collection
Plan Collection
Plan Collection
Plan#108-1923
Starting at$1150
2928
Sq Ft
1
Story
4
Bed
3
Bath
2
Car
Plan Collection
Plan Collection
Plan Collection
Plan#108-1538
Starting at$725
1216
Sq Ft
2
Story
2
Bed
2
Bath
0
Car
Plan Collection
Plan Collection
Plan Collection
Plan#108-2031
Starting at$450
1808
Sq Ft
2
Story
2
Bed
1
Bath
2
Car