3-5-Bedroom, 2438 Sq Ft Craftsman Plan with Covered Front Porch

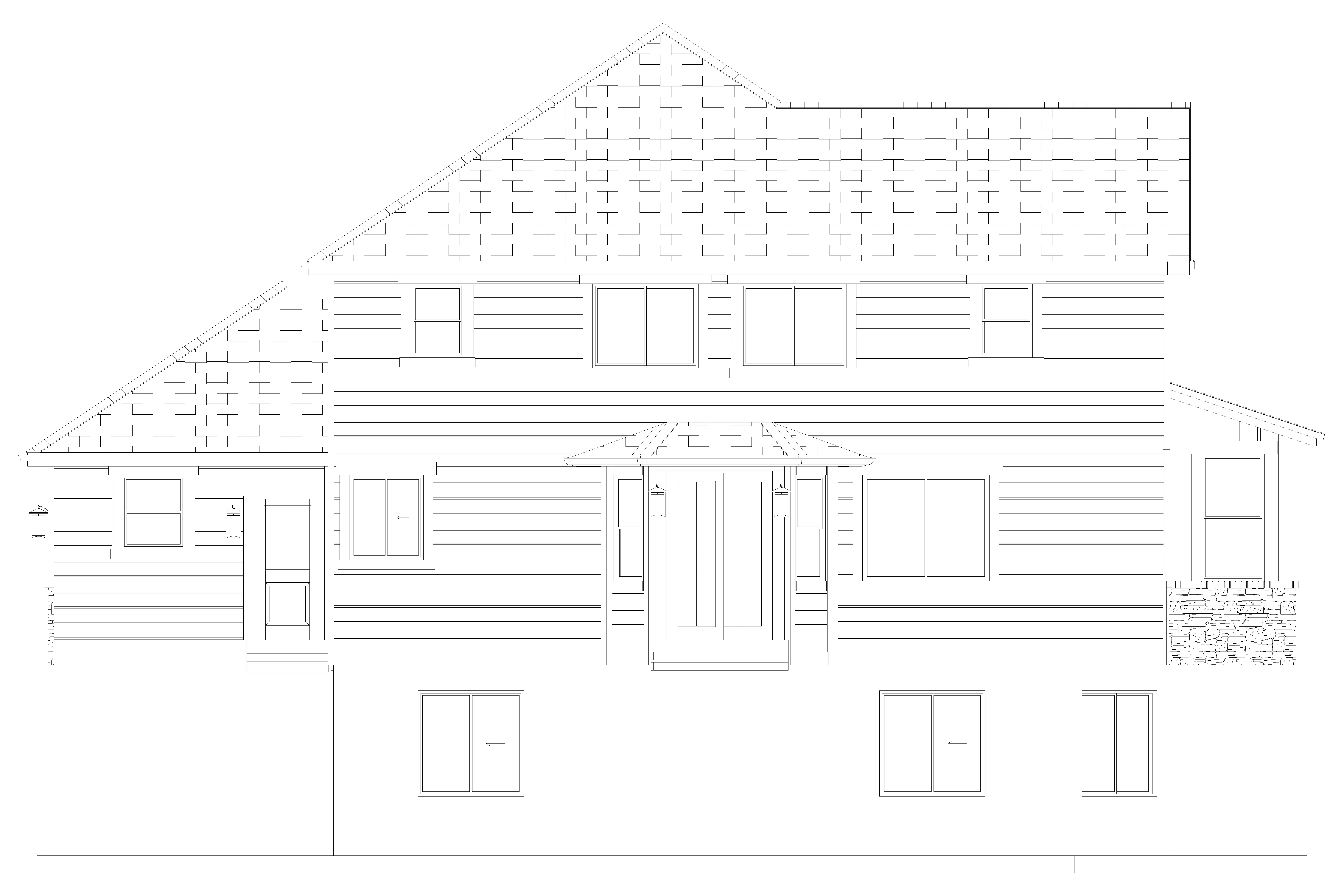
Front elevation of Craftsman home (ThePlanCollection: House Plan #187-1146)
Plan Collection View Video

Images/Plans copyrighted by designer. Photos may reflect homeowner modifications.

About House Plan #187-1146

Sq Ft
2438
Sq Ft
Bedrooms
3
Bedrooms
Bathroom
2
Baths
Half Baths
1
Half Baths
Bedrooms
3
Cars
Bedrooms
2
Stories
Bedrooms
59' 0'
Width
Bedrooms
45
Depth
Starting at$1250.00What's included
STEP 1Bedrooms
STEP 2Bedrooms
STEP 3Bedrooms

Subtotal:$0
Plan Collection

How much will it cost to build?

Estimate your costs based on your location and materials.

Free Cost Instant Estimator

Floor Plans

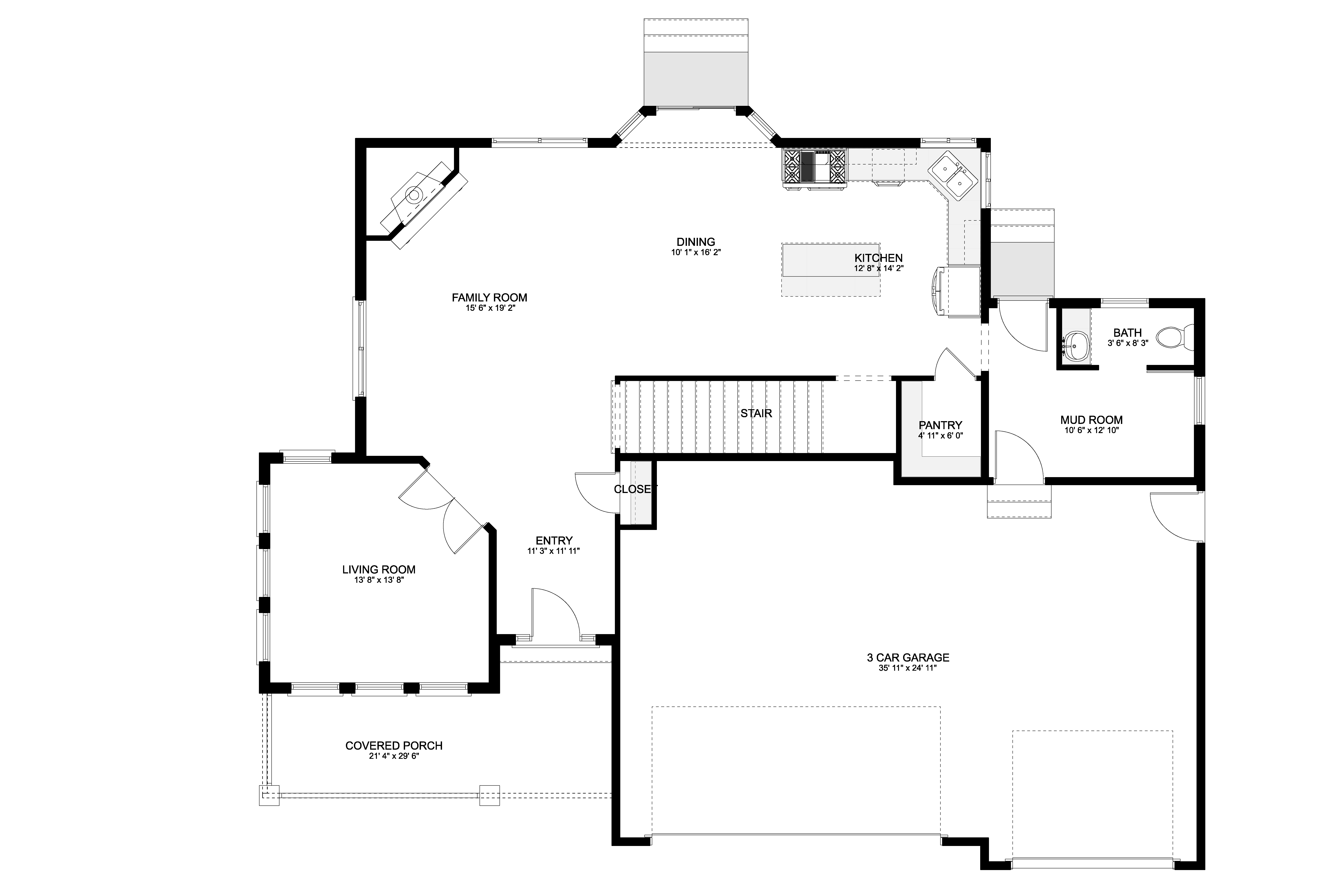
Floor Plan Main Level
Floor Plan Main Level
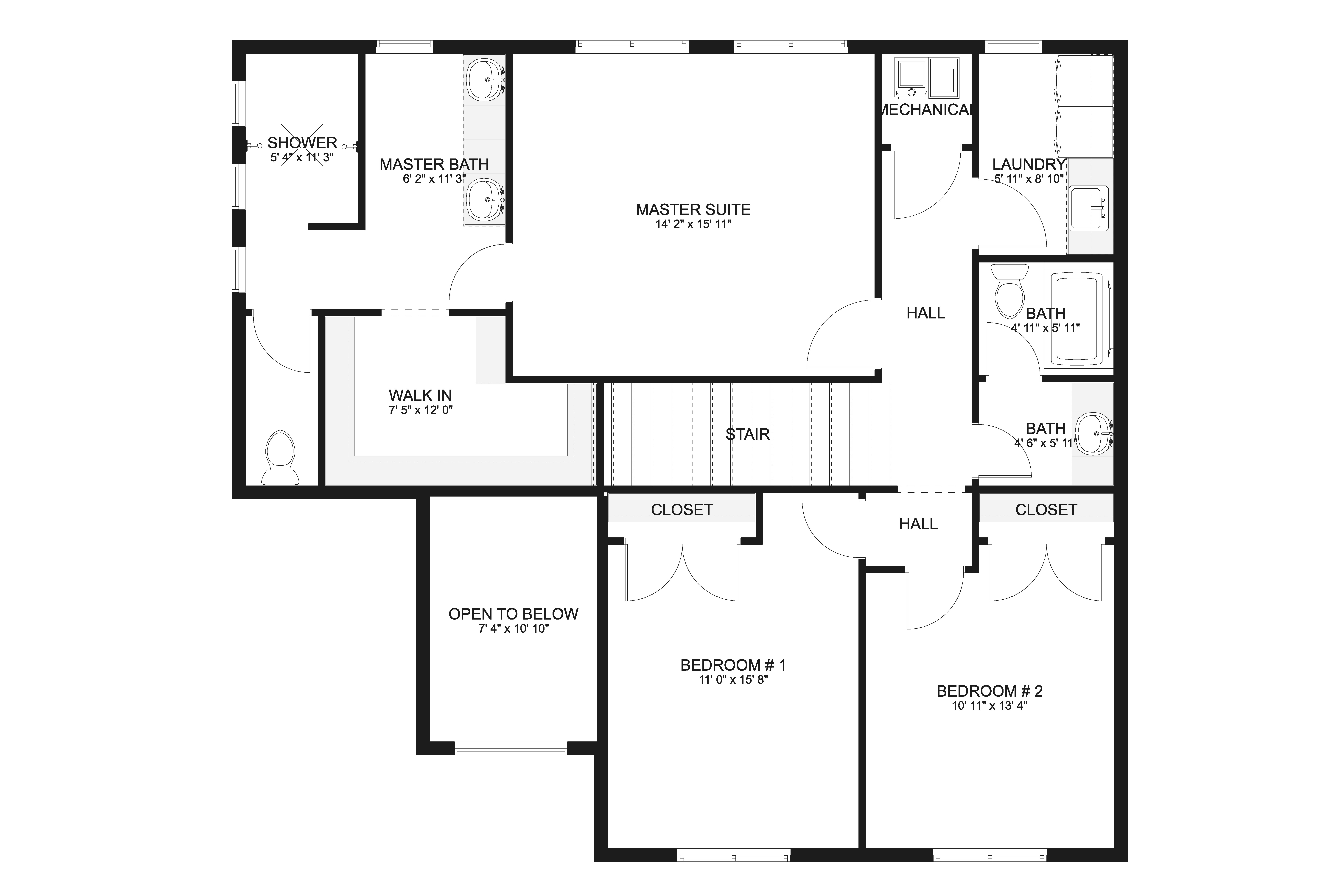
Floor Plan Upper Level
Floor Plan Upper Level
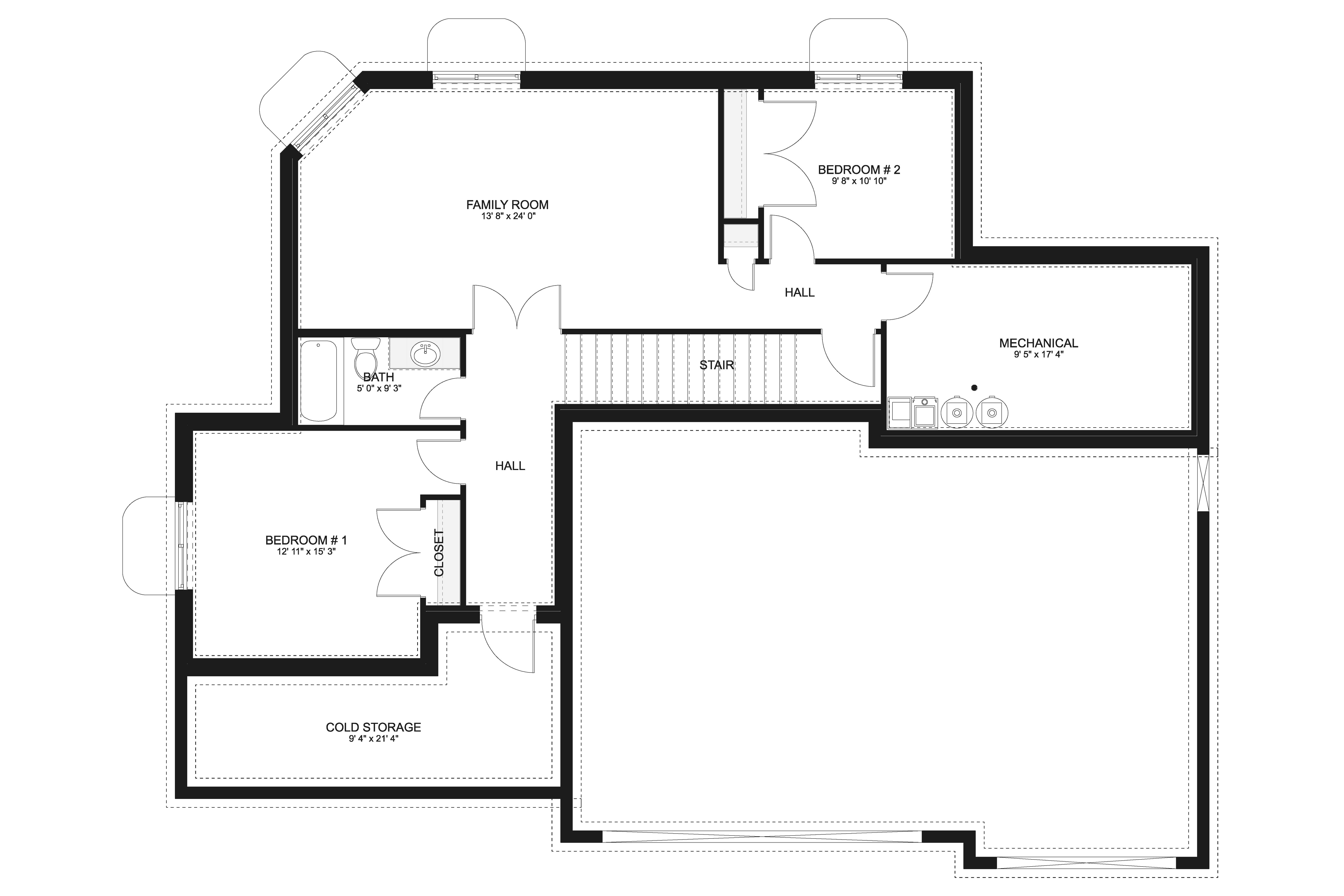
Floor Plan Basement
Floor Plan Basement
Plan Collection

Can I modify this plan?

Yes! This plan can be customized—contact us for a free quote.

Additional Notes from Designer

PLEASE NOTE! On some plans, alternate foundations could take up to ONE WEEK to produce. NOTE FROM DESIGNER: If you purchase a CAD, you will automatically receive the unlimited build license!

Note: The main level has 1280 living sq ft; the upper level has 1158 living sq ft; the optional finished basement adds 1433 sq ft.

House Plan Description

This marvelous Craftsman style home with a heated area of 2,438 square feet and three bedrooms - five bedrooms in total if the basement is finished - is sure to capture your attention with its elegant space and looks. The exterior and interior of this home is a beautiful blend of stone, wood and brick siding. This is complemented by the many and differing rooflines creating the beautiful curb appeal of this home. 

As you step into this home you are met by the stunning covered porch embracing a lovely main entrance door. From here you can head into the family room where...

Home Details

Summary
Plan #:187-1146
Starting at:$1250.00
Floors:2
Bedrooms:3
Full Baths:2
Half Baths:1
Garage:
Square Footage
Heated Area:2438 Sq. Ft.
First Floor:1280 Sq. Ft.
Second Floor:1158 Sq. Ft.
Unheated Area:
Basement:1433 Sq. Ft.
Garage:861 Sq. Ft.
Dimensions
Depth:45' 6''
Architectural Styles
Exterior Wall Material
Vinyl SidingRock/StoneWood Siding
Roofing Type
GableHip
Roofing Material
Asphalt Shingles
Roof Pitch
4/128/12
Ceiling Height
10 Foot Ceiling9 Foot Ceiling8 Foot Ceiling
Special Feature
FireplaceMud RoomFamily RoomSplit BathroomStorageSecond Level LaundryVideoOpen Floor Plan
Garage Type
Attached GarageFront Entry
Fireplaces
One Fireplace
Exterior Wall Framing
2x6
Kitchen Features
Kitchen IslandWalk-in PantryPeninsula/Eating Bar
Porches and Exterior Features
Covered Front Porch
Master Suite Features
Master BathroomWalk In ClosetSecond Floor Master

What’s Included

Most plan sets include the following:

icon text-secondary-400 includedFloor plans

icon text-secondary-400 includedFloor framing plans

icon text-secondary-400 includedRoof framing plan

icon text-secondary-400 includedAll 4 elevations

icon text-secondary-400 includedCross-sections

icon text-secondary-400 includedElectrical layout

icon text-secondary-400 included3-4 sheets of details

What’s Not Included

These items are  NOT included:

icon text-secondary-400 includedMechanical Drawings (location of heating and air equipment and ductwork) - your subcontractors handle this.

icon text-secondary-400 includedSite Plan - handled locally when required. Architectural or Engineering Stamp - handled locally if required.

icon text-secondary-400 includedPlumbing Drawings (drawings showing the actual plumbing pipe sizes and locations) - your subcontractors handle this.

icon text-secondary-400 includedEnergy calculations - handled locally when required.

Related House Plans

Plan Collection
Plan Collection
Plan Collection
Plan#126-1297
Starting at$1715
2257
Sq Ft
2
Story
3
Bed
2.5
Bath
2
Car
Plan Collection
Plan Collection
Plan Collection
Plan#198-1006
Starting at$2395
2587
Sq Ft
2
Story
3
Bed
2.5
Bath
3
Car
Plan Collection
Plan Collection
Plan Collection
Plan#117-1030
Starting at$1095
2112
Sq Ft
2
Story
3
Bed
2.5
Bath
2
Car
View All

Other Plans By This Designer

Plan Collection
Plan Collection
Plan Collection
Plan#187-1210
Starting at$650
900
Sq Ft
1
Story
2
Bed
1.5
Bath
2
Car
Plan Collection
Plan Collection
Plan Collection
Plan#187-1206
Starting at$1150
1096
Sq Ft
2
Story
2
Bed
2
Bath
6
Car
Plan Collection
Plan Collection
Plan Collection
Plan#187-1069
Starting at$1050
1595
Sq Ft
1
Story
3
Bed
2
Bath
4
Car