House Plan for 3 Bed, 3.5 Bath Ranch, Customizable to 6 Bed, 2.5 Bath, 2343–4651 Sq Ft

Craftsman home (ThePlanCollection: Plan #187-1003)

Images/Plans copyrighted by designer. Photos may reflect homeowner modifications.

About House Plan #187-1003

Sq Ft
2343
Sq Ft
Bedrooms
6
Bedrooms
Bathroom
3
Baths
Half Baths
1
Half Baths
Bedrooms
3
Cars
Bedrooms
1
Stories
Bedrooms
78' 0'
Width
Bedrooms
60
Depth
Starting at$1250.00What's included
STEP 1Bedrooms
STEP 2Bedrooms
STEP 3Bedrooms

Subtotal:$0
Plan Collection

How much will it cost to build?

Estimate your costs based on your location and materials.

Free Cost Instant Estimator

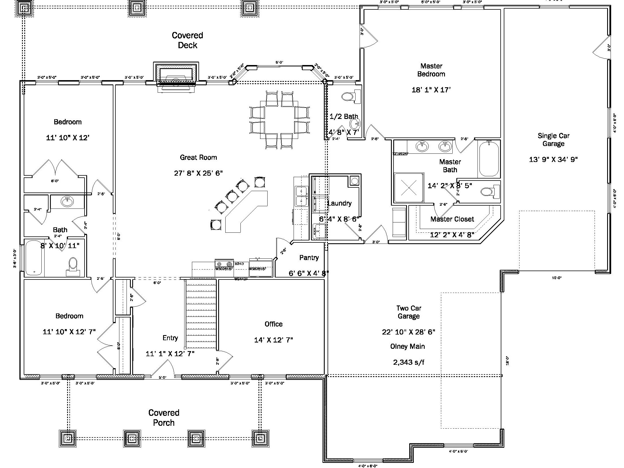
Floor Plans

Floor Plan Main Level
Floor Plan Main Level
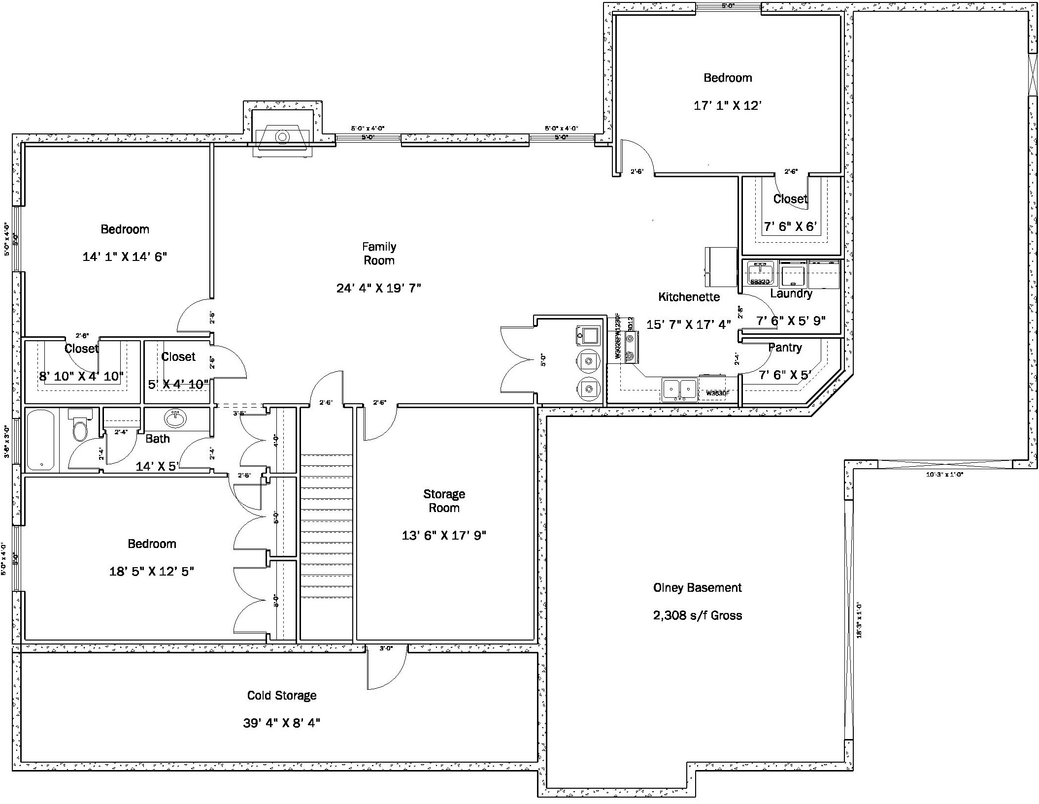
Floor Plan Basement
Floor Plan Basement
Plan Collection

Can I modify this plan?

Yes! This plan can be customized—contact us for a free quote.

Additional Notes from Designer

PLEASE NOTE! On some plans, alternate foundations could take up to ONE WEEK to produce. NOTE FROM DESIGNER: If you purchase a CAD, you will automatically receive the unlimited build license!

House Plan Description

This simple Ranch home design is a great starter or empty nester house plan. A 1-story Craftsman style Ranch home with a covered front porch and covered back porch, this 3-6 bedroom and 2.5-3.5 bath home plan (depending on whether you finish the unfinished basement), has something for everyone.

Enjoy ceiling height(s) of 9 feet throughout the first floor, plus a Great Room, with a kitchen island, dining area, and walk-in pantry. Above grade is a 2343-square-foot area of heated and cooled living space, plus a single-car garage and a two-car side entry...

Home Details

Summary
Plan #:187-1003
Starting at:$1250.00
Floors:1
Bedrooms:6
Full Baths:3
Half Baths:1
Garage:
Square Footage
Heated Area:2343 Sq. Ft.
First Floor:2343 Sq. Ft.
Unheated Area:
Basement:2308 Sq. Ft.
Dimensions
Depth:60' 6''
Ridge Height:27' 0''
Architectural Styles
Exterior Wall Material
Rock/StoneWood SidingShakes
Roofing Type
GableHip
Roofing Material
Asphalt Shingles
Roof Pitch
8/12
Ceiling Height
9 Foot Ceiling
Special Feature
FireplaceHome OfficeFamily RoomMain Level LaundryColor PhotosSplit BathroomStorageOpen Floor Plan
Garage Type
Attached GarageFront Entry
Fireplaces
One Fireplace
Exterior Wall Framing
2x6
Building Lot Type
Flat Site
Kitchen Features
Walk-in PantryPeninsula/Eating BarEat-In Kitchen
Porches and Exterior Features
Covered Front Porch
Master Suite Features
Main Floor MasterMaster BathroomWalk In ClosetSplit Master Bedroom

What’s Included

Most plan sets include the following:

icon text-secondary-400 includedFloor plans

icon text-secondary-400 includedFloor framing plans

icon text-secondary-400 includedRoof framing plan

icon text-secondary-400 includedAll 4 elevations

icon text-secondary-400 includedCross-sections

icon text-secondary-400 includedElectrical layout

icon text-secondary-400 included3-4 sheets of details

What’s Not Included

These items are  NOT included:

icon text-secondary-400 includedMechanical Drawings (location of heating and air equipment and ductwork) - your subcontractors handle this.

icon text-secondary-400 includedSite Plan - handled locally when required. Architectural or Engineering Stamp - handled locally if required.

icon text-secondary-400 includedPlumbing Drawings (drawings showing the actual plumbing pipe sizes and locations) - your subcontractors handle this.

icon text-secondary-400 includedEnergy calculations - handled locally when required.

Related House Plans

Plan Collection
Plan Collection
Plan Collection
Plan#135-1054
Starting at$1725
2597
Sq Ft
1
Story
6
Bed
3.5
Bath
3
Car
Plan Collection
Plan Collection
Plan Collection
Plan#135-1133
Starting at$1380
1821
Sq Ft
1
Story
6
Bed
3.5
Bath
2
Car
Plan Collection
Plan Collection
Plan Collection
Plan#135-1016
Starting at$1610
2406
Sq Ft
1
Story
6
Bed
3.5
Bath
3
Car
View All

Other Plans By This Designer

Plan Collection
Plan Collection
Plan Collection
Plan#187-1210
Starting at$650
900
Sq Ft
1
Story
2
Bed
1.5
Bath
2
Car
Plan Collection
Plan Collection
Plan Collection
Plan#187-1206
Starting at$1150
1096
Sq Ft
2
Story
2
Bed
2
Bath
6
Car
Plan Collection
Plan Collection
Plan Collection
Plan#187-1069
Starting at$1050
1595
Sq Ft
1
Story
3
Bed
2
Bath
4
Car