Estimate your costs based on your location and materials.
Yes! This plan can be customized—contact us for a free quote.
Yes! This plan can be customized—contact us for a free quote.
PLEASE NOTE!! For this designer, The PDF that comes with the PRINT Packages (5 set+PDF and 8 set+PDF) is NOT Modifiable - it is for printing ONLY! PLEASE NOTE!! Optional Foundations (foundations that cost extra money) will take 5-10 business days to complete.
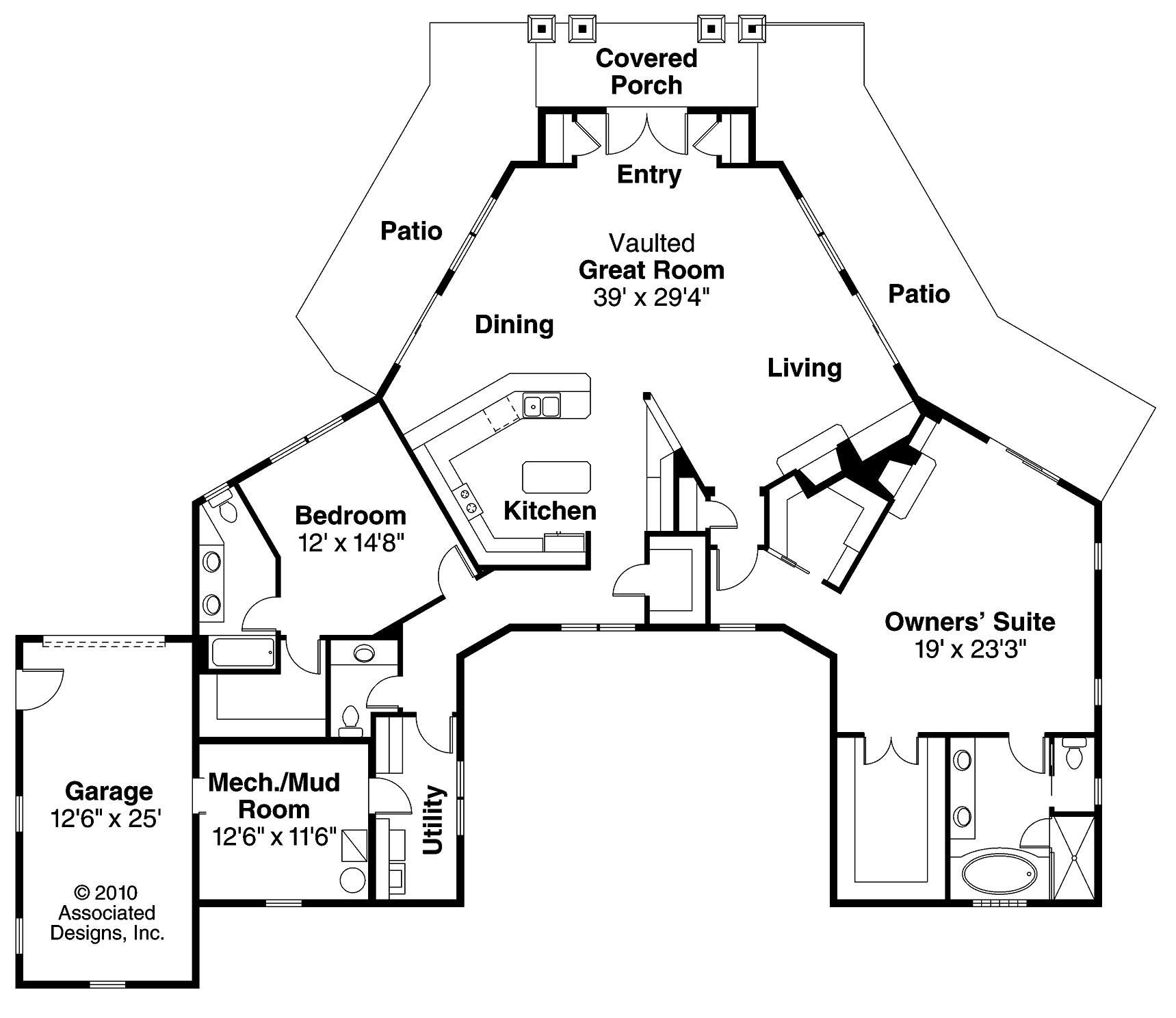
Prairie home plans. In this Prairie home update, six ceiling sections sweep up to the lofty central apex of the hexagonal great room, living room and dining area. The roomy kitchen's raised eating bar rims the peninsular counter that bounds the expansive space on one side, while a gas fireplace offers color and warmth on the other. Bedrooms and utilities are at the rear. Prepare to be stunned as you enter the #108-1080's vaulted hexagonal core, where all six ceiling sections sweep up to a lofty central apex. Richly windowed and completely open on the entry side, this expansive...
Estimate your costs based on your location and materials.
All sales of house plans, modifications, and other products found on this site are final. No refunds or exchanges can be given once your order has begun the fulfillment process. Please see our Policies for additional information.
All plans offered on ThePlanCollection.com are designed to conform to the local building codes when and where the original plan was drawn.
The homes as shown in photographs and renderings may differ from the actual blueprints. For more detailed information, please review the floor plan images herein carefully.
Estimate your costs based on your location and materials.