1-3 Bedroom, 2299-3801 Sq Ft Traditional Plan with Family Room

Front elevation of Traditional home (ThePlanCollection: House Plan #161-1199)

Images/Plans copyrighted by designer. Photos may reflect homeowner modifications.

About House Plan #161-1199

Sq Ft
2299
Sq Ft
Bedrooms
1
Bedrooms
Bathroom
1
Baths
Half Baths
1
Half Baths
Bedrooms
3
Cars
Bedrooms
1
Stories
Bedrooms
88' 6'
Width
Bedrooms
74
Depth
Starting at$1550.00What's included
STEP 1Bedrooms
STEP 2Bedrooms
STEP 3Bedrooms

Subtotal:$0
Plan Collection

How much will it cost to build?

Estimate your costs based on your location and materials.

Free Cost Instant Estimator

Floor Plans

Main Level
Main Level
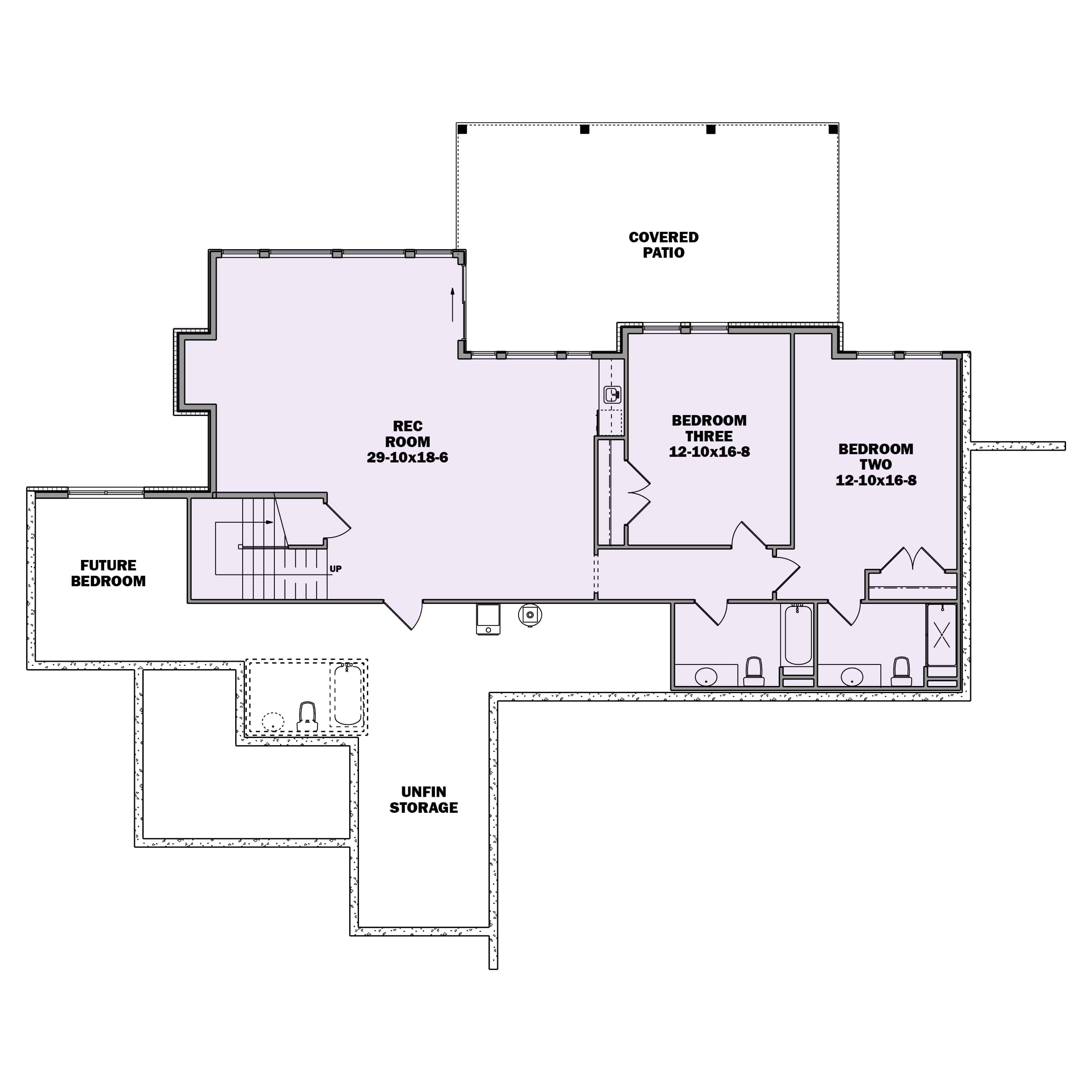
Basement Option Layout
Basement Option Layout
Plan Collection

Can I modify this plan?

Yes! This plan can be customized—contact us for a free quote.

Additional Notes from Designer

PLEASE NOTE! This designer's plans do NOT come with framing!

The optional finished basement includes an additional 1,502 square feet, 2 more bedrooms, 2 more baths, and a rec room.

Note: Porch sq ft figures may include any deck sq ft as well.

House Plan Description

This lovely Country home with Ranch-Traditional style is 2,299 square feet with 1 bedroom, 1.5 bath, and a 3-car garage. Other features of this beautiful home are:

  • Mudroom
  • Office
  • Walk-in Pantry
  • Family Room
  • Master Bedroom with Huge Walk-in Closet

The optional finished basement includes an additional 1,502 square feet, 2 more bedrooms, 2 more baths, and a rec room.

Home Details

Summary
Plan #:161-1199
Starting at:$1550.00
Floors:1
Bedrooms:1
Full Baths:1
Half Baths:1
Garage:
Square Footage
Heated Area:2299 Sq. Ft.
Basement:1502 Sq. Ft.
First Floor:2299 Sq. Ft.
Unheated Area:
Basement:797 Sq. Ft.
Garage:1142 Sq. Ft.
Dimensions
Width:88' 6''
Architectural Styles
Exterior Wall Material
BrickStucco
Roofing Type
GableHip
Roofing Material
Asphalt ShinglesMetal
Roof Pitch
2/127/12
Ceiling Height
10 Foot Ceiling
Special Feature
FireplaceHome OfficeMud RoomFamily RoomMain Level LaundryColor PhotosSplit BathroomOpen Floor Plan
Garage Type
Attached GarageSide Entry
Fireplaces
One Fireplace
Exterior Wall Framing
2x6
Building Lot Type
Side Slope Site
Kitchen Features
Kitchen IslandWalk-in PantryEat-In Kitchen
Porches and Exterior Features
Covered Front PorchSundeck
Master Suite Features
Main Floor MasterMaster BathroomWalk In ClosetPrivate DeckSplit Master Bedroom

What’s Included

Most plan sets include the following:

icon text-secondary-400 includedExterior elevations

icon text-secondary-400 includedMain Floor plan

icon text-secondary-400 includedArchitectural’ Foundation Plan

icon text-secondary-400 includedArchitectural’ Roof Plan

icon text-secondary-400 includedSections

icon text-secondary-400 includedMain Floor Electrical Plan

icon text-secondary-400 includedNo Framing

What’s Not Included

These items are  NOT included:

icon text-secondary-400 includedArchitectural or Engineering Stamp - handled locally if required.

icon text-secondary-400 includedSite Plan - handled locally when required.

icon text-secondary-400 includedPlumbing Drawings (drawings showing the actual plumbing pipe sizes and locations) - your subcontractors handle this.

icon text-secondary-400 includedEnergy calculations - handled locally when required.

Related House Plans

Plan Collection
Plan Collection
Plan Collection
Plan#161-1081
Starting at$1550
2037
Sq Ft
1
Story
1
Bed
1.5
Bath
3
Car
Plan Collection
Plan Collection
Plan Collection
Plan#161-1101
Starting at$1950
2815
Sq Ft
1
Story
1
Bed
1.5
Bath
3
Car
Plan Collection
Plan Collection
Plan Collection
Plan#194-1041
Starting at$1395
1897
Sq Ft
1
Story
1
Bed
1.5
Bath
1
Car
View All

Other Plans By This Designer

Plan Collection
Plan Collection
Plan Collection
Plan#161-1145
Starting at$2650
3907
Sq Ft
2
Story
4
Bed
3.5
Bath
3
Car
Plan Collection
Plan Collection
Plan Collection
Plan#161-1077
Starting at$4500
6563
Sq Ft
2
Story
5
Bed
5.5
Bath
5
Car
Plan Collection
Plan Collection
Plan Collection
Plan#161-1084
Starting at$4200
5170
Sq Ft
2
Story
5
Bed
5.5
Bath
3
Car