3-Bedroom, 2265 Sq Ft Mediterranean Plan with Dining Room

Front elevation of Mediterranean home (ThePlanCollection: House Plan #108-2065)

Images/Plans copyrighted by designer. Photos may reflect homeowner modifications.

About House Plan #108-2065

Sq Ft
2265
Sq Ft
Bedrooms
3
Bedrooms
Bathroom
2
Baths
Half Baths
0
Half Baths
Bedrooms
2
Cars
Bedrooms
1
Stories
Bedrooms
80' 3'
Width
Bedrooms
78
Depth
Starting at$1450.00What's included
STEP 1Bedrooms
STEP 2Bedrooms
STEP 3Bedrooms

Subtotal:$0
Plan Collection

How much will it cost to build?

Estimate your costs based on your location and materials.

Free Cost Instant Estimator

Floor Plans

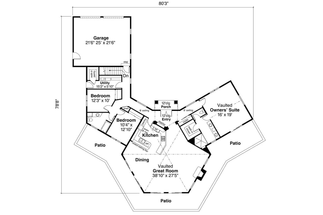
Main Level
Main Level
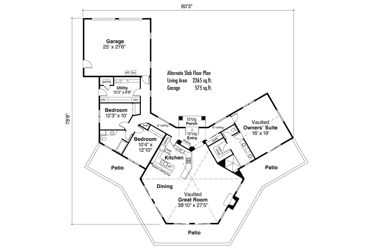
Alternative Main Level Layout
Alternative Main Level Layout
Plan Collection

Can I modify this plan?

Yes! This plan can be customized—contact us for a free quote.

Additional Notes from Designer

PLEASE NOTE!! For this designer, The PDF that comes with the PRINT Packages (5 set+PDF and 8 set+PDF) is NOT Modifiable - it is for printing ONLY! PLEASE NOTE!! Optional Foundations (foundations that cost extra money) will take 5-10 business days to complete.

This Single Family Mediterranean Style House Plan has 2265 square feet, 3 bedrooms, and 2 bathrooms.

House Plan Description

Experience the convenient lifestyle offered by this Mediterranean-style home with Spanish inspiration. The elegant 1-story home's floor plan has 2265 square feet of heated and cooled living space with special amenities that include: 

• Fireplace in the Great Room
• Utility room
• Walk-in kitchen pantry
• Vaulted ceiling
• Lots of storage space

Home Details

Summary
Plan #:108-2065
Starting at:$1450.00
Floors:1
Bedrooms:3
Full Baths:2
Half Baths:0
Garage:
Square Footage
Heated Area:2265 Sq. Ft.
First Floor:2265 Sq. Ft.
Unheated Area:
Garage:575 Sq. Ft.
Dimensions
Width:80' 3''
Depth:78' 8''
Architectural Styles
Exterior Wall Material
Stucco
Roofing Type
Hip
Roofing Material
Tiles
Roof Pitch
6/12
Ceiling Height
8 Foot Ceiling
Special Feature
FireplaceDining RoomMud RoomFamily RoomMain Level LaundrySplit BathroomStorageVaulted CeilingsOpen Floor Plan
Garage Type
Attached GarageRear Entry
Fireplaces
One Fireplace
Exterior Wall Framing
2x6
Kitchen Features
Walk-in PantryPeninsula/Eating Bar
Porches and Exterior Features
Patio
Master Suite Features
Main Floor MasterMaster BathroomWalk In ClosetSplit Master Bedroom

What’s Included

Most plan sets include the following:

icon text-secondary-400 included Artist’s rendering of the home,

icon text-secondary-400 included Front/Rear/Left and Right Elevations,

icon text-secondary-400 included Main floor plan, Second or Basement floor plans (if applicable),

icon text-secondary-400 included Foundation plan and detail,

icon text-secondary-400 included Floor framing plan,

icon text-secondary-400 included Roof framing plan, supporting details and

icon text-secondary-400 included Electric layout.

What’s Not Included

These items are  NOT included:

icon text-secondary-400 includedArchitectural or Engineering Stamp - handled locally if required.

icon text-secondary-400 includedSite Plan - handled locally when required.

icon text-secondary-400 includedMechanical Drawings (location of heating and air equipment and ductwork) - your subcontractors handle this.

icon text-secondary-400 includedPlumbing Drawings (drawings showing the actual plumbing pipe sizes and locations) - your subcontractors handle this.

icon text-secondary-400 includedEnergy calculations - handled locally when required.

Related House Plans

Plan Collection
Plan Collection
Plan Collection
Plan#136-1000
Starting at$1800
2184
Sq Ft
1
Story
3
Bed
2
Bath
2
Car
Plan Collection
Plan Collection
Plan Collection
Plan#150-1000
Starting at$1345
1784
Sq Ft
1
Story
3
Bed
2
Bath
2
Car
Plan Collection
Plan Collection
Plan Collection
Plan#117-1055
Starting at$895
1780
Sq Ft
1
Story
3
Bed
2
Bath
2
Car
View All

Other Plans By This Designer

Plan Collection
Plan Collection
Plan Collection
Plan#108-1923
Starting at$1150
2928
Sq Ft
1
Story
4
Bed
3
Bath
2
Car
Plan Collection
Plan Collection
Plan Collection
Plan#108-1538
Starting at$725
1216
Sq Ft
2
Story
2
Bed
2
Bath
0
Car
Plan Collection
Plan Collection
Plan Collection
Plan#108-2031
Starting at$450
1808
Sq Ft
2
Story
2
Bed
1
Bath
2
Car