3-Bedroom, 2243 Sq Ft Cottage Plan with Vaulted Ceilings

Cottage home (ThePlanCollection: Plan #198-1115)

Images/Plans copyrighted by designer. Photos may reflect homeowner modifications.

About House Plan #198-1115

Sq Ft
2243
Sq Ft
Bedrooms
3
Bedrooms
Bathroom
2
Baths
Half Baths
1
Half Baths
Bedrooms
2
Cars
Bedrooms
1
Stories
Bedrooms
82' 0'
Width
Bedrooms
74
Depth
Starting at$1945.00What's included
STEP 1Bedrooms
STEP 2Bedrooms
STEP 3Bedrooms

Subtotal:$0
Plan Collection

How much will it cost to build?

Estimate your costs based on your location and materials.

Free Cost Instant Estimator

Floor Plans

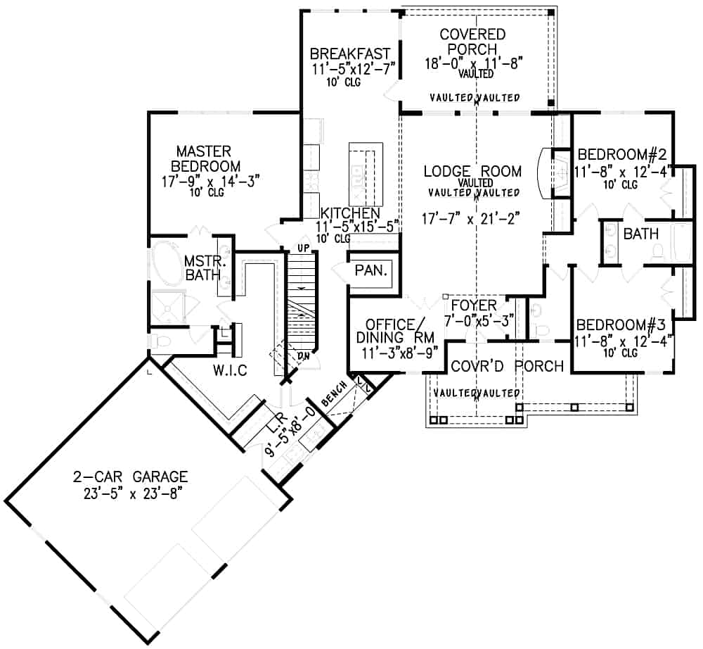
Floor Plan Main Level
Floor Plan Main Level
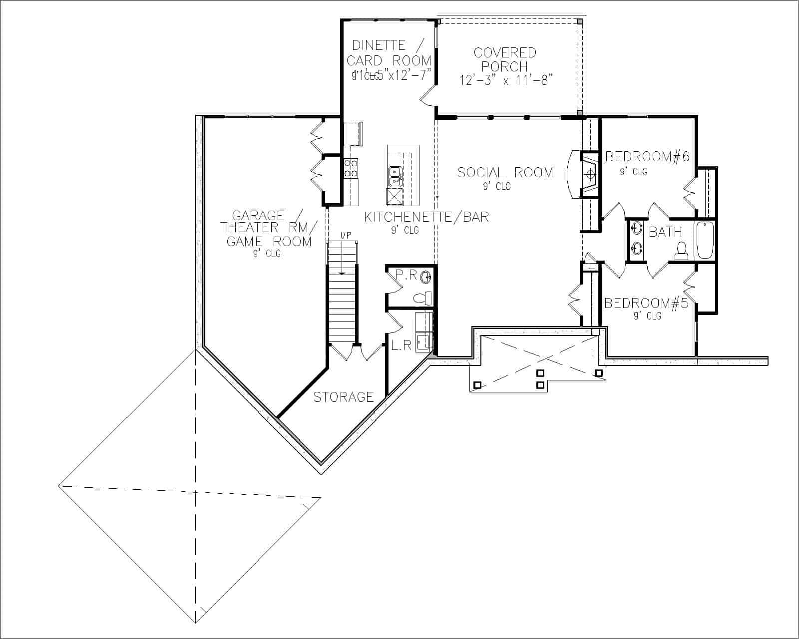
Floor Plan Basement
Floor Plan Basement
Floor Plan Bonus Room
Floor Plan Bonus Room
Plan Collection

Can I modify this plan?

Yes! This plan can be customized—contact us for a free quote.

Additional Notes from Designer

NO Material lists.

House Plan Description

A truly outstanding home, this 1-story Cottage-Farmhouse style home has a well-designed main-level floor plan, with an optional lower level that may be finished to add 2 additional bedrooms, a bathroom, a kitchenette and dinette, a social room with fireplace and large play room or home theater — all adding up to a great in-law suite. 

The different levels and shapes of the steep roof, combined with a well-balanced blend of materials, give the house a natural homey appeal and vibrancy. The impressive home has 2243 square feet of living space and...

Home Details

Summary
Plan #:198-1115
Starting at:$1945.00
Floors:1
Bedrooms:3
Full Baths:2
Half Baths:1
Garage:
Square Footage
Heated Area:2243 Sq. Ft.
First Floor:2243 Sq. Ft.
Unheated Area:
Garage:576 Sq. Ft.
Dimensions
Depth:74' 6''
Architectural Styles
Exterior Wall Material
Rock/StoneShakes
Roofing Type
GableHip
Roofing Material
Asphalt Shingles
Ceiling Height
10 Foot Ceiling9 Foot Ceiling8 Foot Ceiling
Special Feature
FireplaceDining RoomBonus RoomFamily RoomMain Level LaundrySplit BathroomVaulted CeilingsOpen Floor Plan
Garage Type
Attached GarageCourtyard Entry
Fireplaces
One Fireplace
Kitchen Features
Kitchen IslandNook/Breakfast AreaWalk-in PantryPeninsula/Eating BarEat-In Kitchen
Porches and Exterior Features
Covered Front PorchCovered Rear Porch
Master Suite Features
Main Floor MasterMaster BathroomWalk In ClosetSplit Master Bedroom

What’s Included

Most plan sets include the following:

icon text-secondary-400 includedExterior elevations

icon text-secondary-400 includedFoundation plan

icon text-secondary-400 includedDetailed floor plans

icon text-secondary-400 includedInterior details

icon text-secondary-400 includedRoof plan

icon text-secondary-400 includedCross-section details

icon text-secondary-400 includedElectrical layout

What’s Not Included

These items are  NOT included:

icon text-secondary-400 includedArchitectural or Engineering Stamp - handled locally if required.

icon text-secondary-400 includedSite Plan - handled locally when required.

icon text-secondary-400 includedMechanical Drawings (location of heating and air equipment and ductwork) - your subcontractors handle this.

icon text-secondary-400 includedPlumbing Drawings (drawings showing the actual plumbing pipe sizes and locations) - your subcontractors handle this.

icon text-secondary-400 includedEnergy calculations - handled locally when required.

Related House Plans

Plan Collection
Plan Collection
Plan Collection
Plan#142-1082
Starting at$1295
1834
Sq Ft
1
Story
3
Bed
2
Bath
2
Car
Plan Collection
Plan Collection
Plan Collection
Plan#142-1075
Starting at$1295
1769
Sq Ft
1
Story
3
Bed
2
Bath
2
Car
Plan Collection
Plan Collection
Plan Collection
Plan#153-1744
Starting at$800
1800
Sq Ft
1
Story
3
Bed
2
Bath
2
Car
View All

Other Plans By This Designer

Plan Collection
Plan Collection
Plan Collection
Plan#198-1053
Starting at$2195
2498
Sq Ft
1.5
Story
3
Bed
3
Bath
3
Car
Plan Collection
Plan Collection
Plan Collection
Plan#198-1054
Starting at$2630
4376
Sq Ft
2
Story
4
Bed
4.5
Bath
3
Car
Plan Collection
Plan Collection
Plan Collection
Plan#198-1060
Starting at$1985
3970
Sq Ft
2
Story
5
Bed
4.5
Bath
2
Car