2-Bedroom, 2191 Sq Ft Country Plan with Home Office

Front elevation of Country home (ThePlanCollection: House Plan #199-1008)

Images/Plans copyrighted by designer. Photos may reflect homeowner modifications.

About House Plan #199-1008

Sq Ft
2191
Sq Ft
Bedrooms
2
Bedrooms
Bathroom
2
Baths
Half Baths
1
Half Baths
Bedrooms
2
Cars
Bedrooms
1
Stories
Bedrooms
50' 8'
Width
Bedrooms
80
Depth
Starting at$482.02What's included
STEP 1Bedrooms
STEP 2Bedrooms
STEP 3Bedrooms

Subtotal:$0
Plan Collection

How much will it cost to build?

Estimate your costs based on your location and materials.

Free Cost Instant Estimator

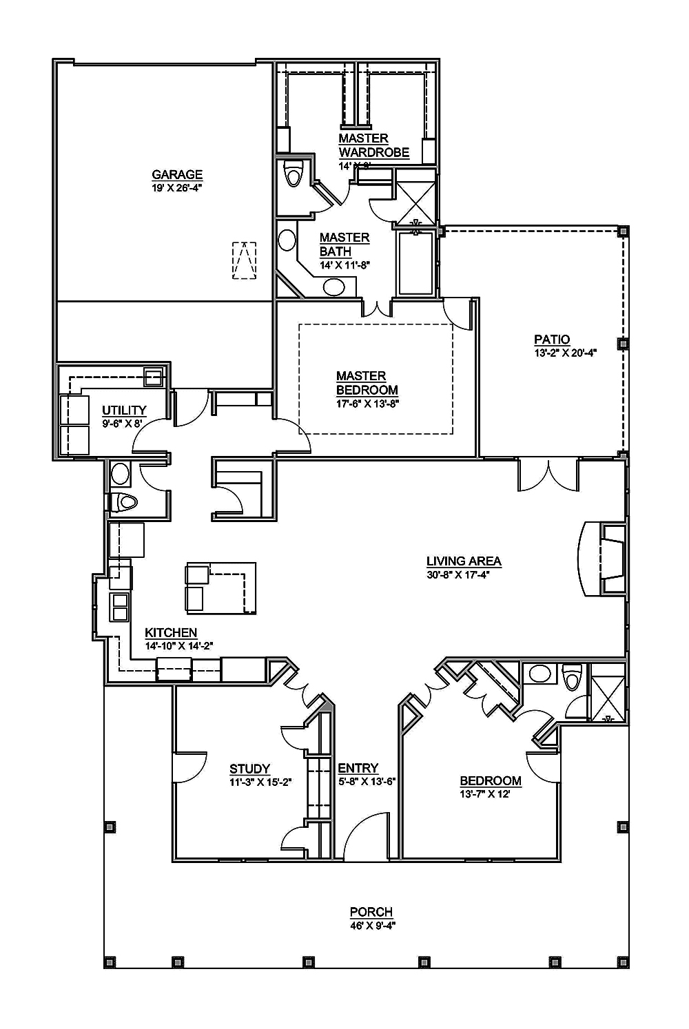
Floor Plans

Floor Plan Main Level
Floor Plan Main Level
Plan Collection

Can I modify this plan?

Yes! This plan can be customized—contact us for a free quote.

House Plan Description

This charming Country style home plan with Farmhouse influences (House Plan #199-1008) has 2191 square feet of living space. The 1 story floor plan includes 2 bedrooms.

Home Details

Summary
Plan #:199-1008
Starting at:$482.02
Floors:1
Bedrooms:2
Full Baths:2
Half Baths:1
Garage:
Square Footage
Heated Area:2191 Sq. Ft.
First Floor:2191 Sq. Ft.
Unheated Area:
Dimensions
Width:50' 8''
Architectural Styles
Exterior Wall Material
Vinyl SidingWood Siding
Roofing Type
GableHip
Roofing Material
Asphalt Shingles
Roof Pitch
3/126/129/12
Ceiling Height
10 Foot Ceiling
Special Feature
FireplaceHome OfficeFamily RoomMain Level LaundryOpen Floor Plan
Garage Type
Attached GarageRear Entry
Fireplaces
One Fireplace
Kitchen Features
Kitchen IslandPeninsula/Eating BarEat-In Kitchen
Porches and Exterior Features
Wrap Around PorchCovered Rear Patio
Master Suite Features
Main Floor MasterMaster BathroomWalk In ClosetSplit Master Bedroom

What’s Included

Most plan sets include the following:

icon text-secondary-400 includedFLOOR PLAN: Showing all dimensions, window and door locations, laminated beams, columns, floor materials, ceiling heights, fireplace size, and specifications.

icon text-secondary-400 includedFOUNDATION PLAN: Dimensioned plan detailing the location and size of footings, slabs, reinforcing steel, and other structural elements that are required to support the load of the upper floors.

icon text-secondary-400 includedROOF PLAN: Dimensioned plan showing the elements that make up the roof, including notation of spacing and schematics of peaks and valleys.

icon text-secondary-400 includedELECTRICAL LAYOUT:Specifications, notes, schedules, and plan defining the location of panels, service, lighting fixtures, switches, outlets, fans, etc. NOTE – PLEASE VERIFY

icon text-secondary-400 includedFRONT, REAR, AND SIDE ELEVATIONS:The front, rear, and side elevations of the house as drawn. Shows placement of doors & windows on exterior of house, as well as roof pitches, ridge heights, and locations of chimney, exterior vents, etc. The elevations show the positioning of the final grade of the lot, exterior finishes, and other details that are necessary to give the home exterior architectural styling.

icon text-secondary-400 includedCROSS SECTIONS AND INTERIOR DETAILS:Explain certain special conditions more appropriately. A cross section is basically a view of the home (or parts of the home) if it were sliced down the center. These details can be helpful for the contractor.

What’s Not Included

These items are  NOT included:

icon text-secondary-400 includedArchitectural or Engineering Stamp - handled locally if required.

icon text-secondary-400 includedSite Plan - handled locally when required.

icon text-secondary-400 includedMechanical Drawings (location of heating and air equipment and ductwork) - your subcontractors handle this.

icon text-secondary-400 includedPlumbing Drawings (drawings showing the actual plumbing pipe sizes and locations) - your subcontractors handle this.

icon text-secondary-400 includedEnergy calculations - handled locally when required.

Related House Plans

Plan Collection
Plan Collection
Plan Collection
Plan#194-1010
Starting at$1395
2605
Sq Ft
1
Story
2
Bed
2.5
Bath
3
Car
Plan Collection
Plan Collection
Plan Collection
Plan#161-1085
Starting at$1750
2593
Sq Ft
1
Story
2
Bed
2.5
Bath
3
Car
Plan Collection
Plan Collection
Plan Collection
Plan#138-1003
Starting at$1050
1922
Sq Ft
1
Story
2
Bed
2
Bath
1
Car
View All

Other Plans By This Designer

Plan Collection
Plan Collection
Plan Collection
Plan#199-1006
Starting at$0
3333
Sq Ft
1
Story
4
Bed
3.5
Bath
3
Car
Plan Collection
Plan Collection
Plan Collection
Plan#199-1002
Starting at$0
2549
Sq Ft
1
Story
3
Bed
3
Bath
2
Car
Plan Collection
Plan Collection
Plan Collection
Plan#199-1016
Starting at$0
3004
Sq Ft
1.5
Story
3
Bed
3
Bath
2
Car