4-Bedroom, 2087 Sq Ft Craftsman Plan with Bunk Room

Front elevation of Craftsman home (ThePlanCollection: House Plan #161-1230)

Images/Plans copyrighted by designer. Photos may reflect homeowner modifications.

About House Plan #161-1230

Sq Ft
2087
Sq Ft
Bedrooms
4
Bedrooms
Bathroom
3
Baths
Half Baths
0
Half Baths
Bedrooms
2
Cars
Bedrooms
2
Stories
Bedrooms
30' 0'
Width
Bedrooms
77
Depth
Starting at$1550.00What's included
STEP 1Bedrooms
STEP 2Bedrooms
STEP 3Bedrooms

Subtotal:$0
Plan Collection

How much will it cost to build?

Estimate your costs based on your location and materials.

Free Cost Instant Estimator

Floor Plans

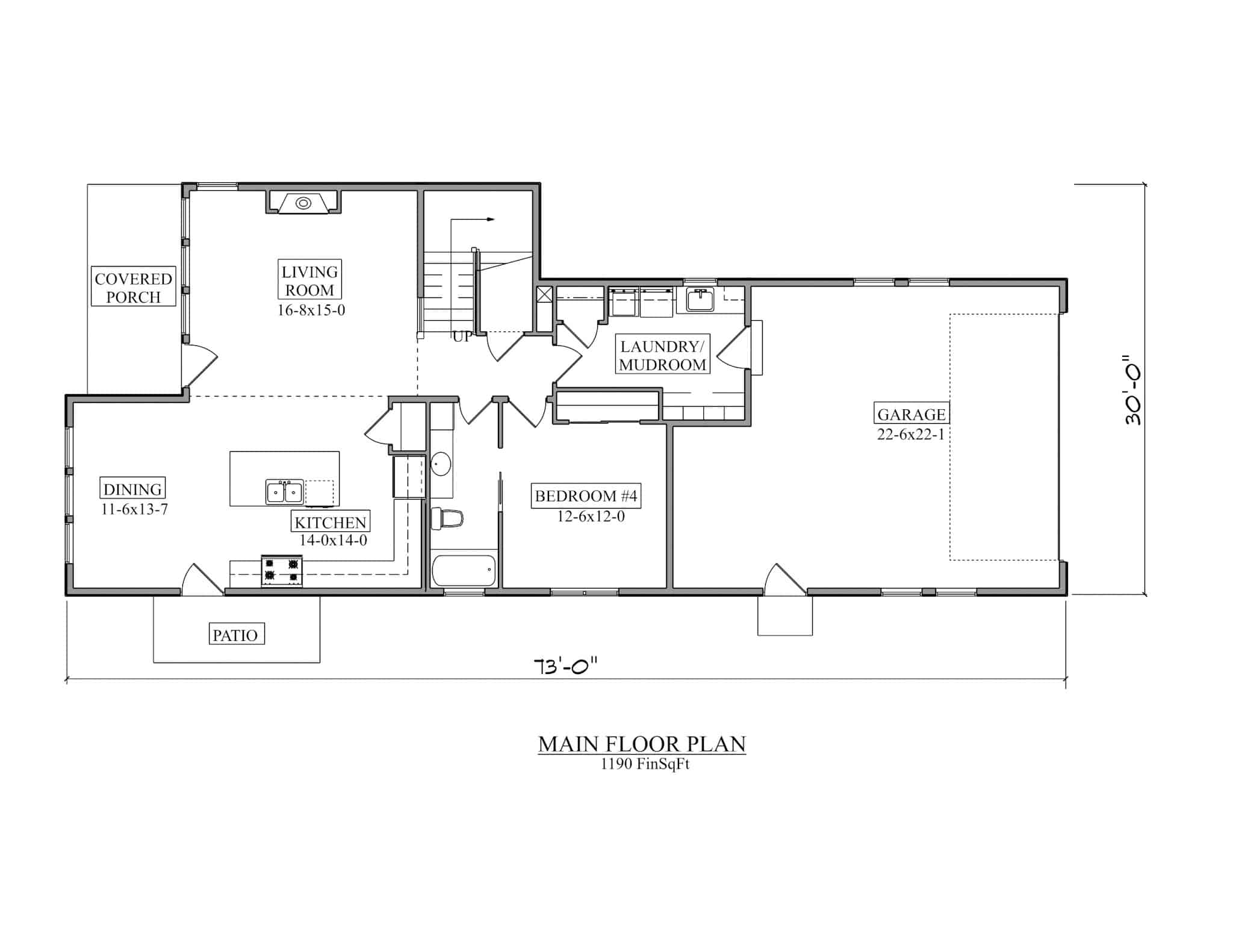
Main Level
Main Level
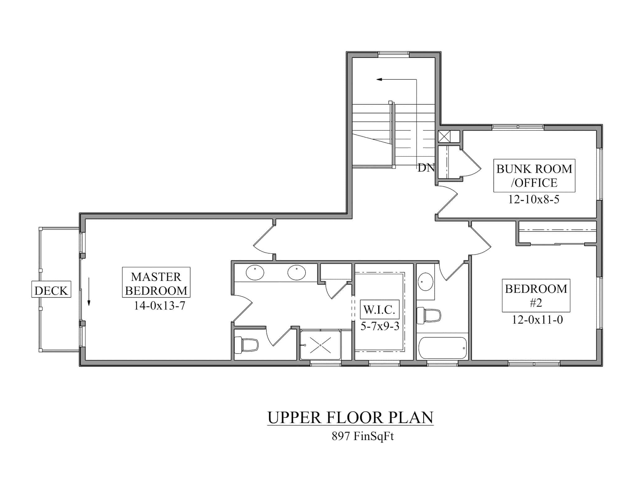
Upper Level
Upper Level
Plan Collection

Can I modify this plan?

Yes! This plan can be customized—contact us for a free quote.

Additional Notes from Designer

PLEASE NOTE! This designer's plans do NOT come with framing!

Note 1: Alternative foundations for this plan maybe available as a modification. Please complete and submit our "Modify this Plan" form to get a free quote.

Note 2: Porch sq ft figures may include any deck sq ft as well.

House Plan Description

This stunning Craftsman home, influenced by Country elements, boasts a total area of 2,087 square feet, offering 4 bedrooms, 3 baths, and a 2-car garage. The alluring features of this residence encompass:

  • Living Room, Bunk Room/Home Office
  • Master Bedroom with Walk-in Closet, Master Bathroom, Private Deck

Home Details

Summary
Plan #:161-1230
Starting at:$1550.00
Floors:2
Bedrooms:4
Full Baths:3
Half Baths:0
Garage:
Square Footage
Heated Area:2087 Sq. Ft.
First Floor:1190 Sq. Ft.
Second Floor:897 Sq. Ft.
Unheated Area:
Garage:599 Sq. Ft.
Porch:157 Sq. Ft.
Dimensions
Architectural Styles
Exterior Wall Material
Vinyl SidingWood SidingLap Siding
Roofing Type
Gable
Roofing Material
Asphalt Shingles
Roof Pitch
8/12
Ceiling Height
9 Foot Ceiling
Special Feature
FireplaceHome OfficeMud RoomFamily RoomMain Level LaundryOpen Floor Plan
Garage Type
Attached GarageSide Entry
Fireplaces
One Fireplace
Building Lot Type
Flat SiteNarrow Lot Design
Kitchen Features
Kitchen IslandEat-In Kitchen
Porches and Exterior Features
Covered Rear PorchSundeckPatio
Master Suite Features
Master BathroomWalk In ClosetPrivate DeckSecond Floor MasterSplit Master Bedroom

What’s Included

Most plan sets include the following:

icon text-secondary-400 includedExterior elevations

icon text-secondary-400 includedMain Floor plan

icon text-secondary-400 includedArchitectural’ Foundation Plan

icon text-secondary-400 includedArchitectural’ Roof Plan

icon text-secondary-400 includedSections

icon text-secondary-400 includedMain Floor Electrical Plan

icon text-secondary-400 includedNo Framing

What’s Not Included

These items are  NOT included:

icon text-secondary-400 includedArchitectural or Engineering Stamp - handled locally if required.

icon text-secondary-400 includedSite Plan - handled locally when required.

icon text-secondary-400 includedPlumbing Drawings (drawings showing the actual plumbing pipe sizes and locations) - your subcontractors handle this.

icon text-secondary-400 includedEnergy calculations - handled locally when required.

Related House Plans

Plan Collection
Plan Collection
Plan Collection
Plan#153-1020
Starting at$1200
2373
Sq Ft
2
Story
4
Bed
3
Bath
3
Car
Plan Collection
Plan Collection
Plan Collection
Plan#153-1786
Starting at$1200
2363
Sq Ft
2
Story
4
Bed
3
Bath
2
Car
Plan Collection
Plan Collection
Plan Collection
Plan#178-1096
Starting at$1055
2252
Sq Ft
2
Story
4
Bed
3
Bath
3
Car
View All

Other Plans By This Designer

Plan Collection
Plan Collection
Plan Collection
Plan#161-1145
Starting at$2650
3907
Sq Ft
2
Story
4
Bed
3.5
Bath
3
Car
Plan Collection
Plan Collection
Plan Collection
Plan#161-1077
Starting at$4500
6563
Sq Ft
2
Story
5
Bed
5.5
Bath
5
Car
Plan Collection
Plan Collection
Plan Collection
Plan#161-1084
Starting at$4200
5170
Sq Ft
2
Story
5
Bed
5.5
Bath
3
Car