2-Bedroom, 2029 Sq Ft European Plan with Peninsula/Eating Bar

Front view of European home (ThePlanCollection: House Plan #146-2497)

Images/Plans copyrighted by designer. Photos may reflect homeowner modifications.

About House Plan #146-2497

Sq Ft
2029
Sq Ft
Bedrooms
2
Bedrooms
Bathroom
2
Baths
Half Baths
1
Half Baths
Bedrooms
3
Cars
Bedrooms
1
Stories
Bedrooms
76' 0'
Width
Bedrooms
72
Depth
Starting at$1015.00What's included
STEP 1Bedrooms
STEP 2Bedrooms
STEP 3Bedrooms

Subtotal:$0
Plan Collection

How much will it cost to build?

Estimate your costs based on your location and materials.

Free Cost Instant Estimator

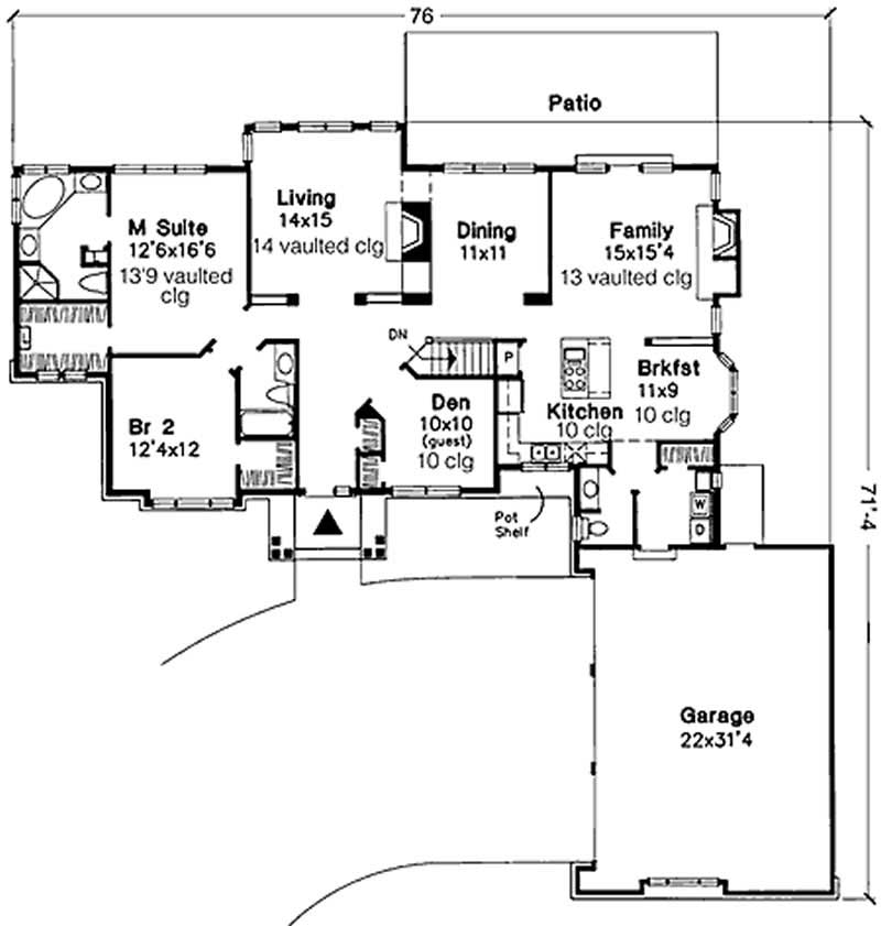
Floor Plans

Floor Plan First Story
Floor Plan First Story
Plan Collection

Can I modify this plan?

Yes! This plan can be customized—contact us for a free quote.

House Plan Description

A stunning columned porch and bright stucco adorn the exterior of this attractive one-story home. The bold foyer leads to the formal living room, which is set off with decorative half-walls and a high plant shelf. The room is further enhanced by a 14-ft. vaulted ceiling and an energy-efficient fireplace. A 36-in.-high counter to the right of the fireplace is open to the adjoining dining room. The spacious kitchen, which includes a space-saving island cooktop, merges with the cheery bayed breakfast nook. The nearby family room boasts a 13-ft. vaulted ceiling, a nice fireplace and a French door...

Home Details

Summary
Plan #:146-2497
Starting at:$1015.00
Floors:1
Bedrooms:2
Full Baths:2
Half Baths:1
Garage:
Square Footage
Heated Area:2029 Sq. Ft.
First Floor:2029 Sq. Ft.
Unheated Area:
Dimensions
Ridge Height:23' 0''
Architectural Styles
Exterior Wall Material
Stucco
Roofing Type
Hip
Roofing Material
Asphalt Shingles
Special Feature
FireplaceDining RoomMud RoomFamily RoomMain Level LaundrySplit BathroomDenVaulted Ceilings
Garage Type
Attached GarageCourtyard Entry
Fireplaces
One Fireplace
Exterior Wall Framing
2x6
Building Lot Type
Flat Site
Kitchen Features
Nook/Breakfast AreaPeninsula/Eating BarEat-In Kitchen
Porches and Exterior Features
Covered Front PorchSundeck
Master Suite Features
Main Floor MasterMaster BathroomWalk In Closet

What’s Included

Most plan sets include the following:

What’s Not Included

These items are  NOT included:

icon text-secondary-400 includedArchitectural or Engineering Stamp - handled locally if required.

icon text-secondary-400 includedSite Plan - handled locally when required.

icon text-secondary-400 includedMechanical Drawings (location of heating and air equipment and ductwork) - your subcontractors handle this.

icon text-secondary-400 includedPlumbing Drawings (drawings showing the actual plumbing pipe sizes and locations) - your subcontractors handle this.

icon text-secondary-400 includedEnergy calculations - handled locally when required.

Related House Plans

Plan Collection
Plan Collection
Plan Collection
Plan#138-1003
Starting at$1050
1922
Sq Ft
1
Story
2
Bed
2
Bath
1
Car
Plan Collection
Plan Collection
Plan Collection
Plan#161-1097
Starting at$1750
2422
Sq Ft
1
Story
2
Bed
2.5
Bath
3
Car
Plan Collection
Plan Collection
Plan Collection
Plan#101-1336
Starting at$1040
2049
Sq Ft
1
Story
2
Bed
2
Bath
3
Car
View All

Other Plans By This Designer

Plan Collection
Plan Collection
Plan Collection
Plan#146-2806
Starting at$980
1933
Sq Ft
2
Story
3
Bed
2
Bath
0
Car
Plan Collection
Plan Collection
Plan Collection
Plan#146-2810
Starting at$1285
3594
Sq Ft
2
Story
4
Bed
3.5
Bath
2
Car
Plan Collection
Plan Collection
Plan Collection
Plan#146-1917
Starting at$1120
2525
Sq Ft
2
Story
4
Bed
2.5
Bath
3
Car