Estimate your costs based on your location and materials.
Yes! This plan can be customized—contact us for a free quote.
Yes! This plan can be customized—contact us for a free quote.
PLEASE NOTE! On some plans, alternate foundations could take up to ONE WEEK to produce. NOTE FROM DESIGNER: If you purchase a CAD, you will automatically receive the unlimited build license!
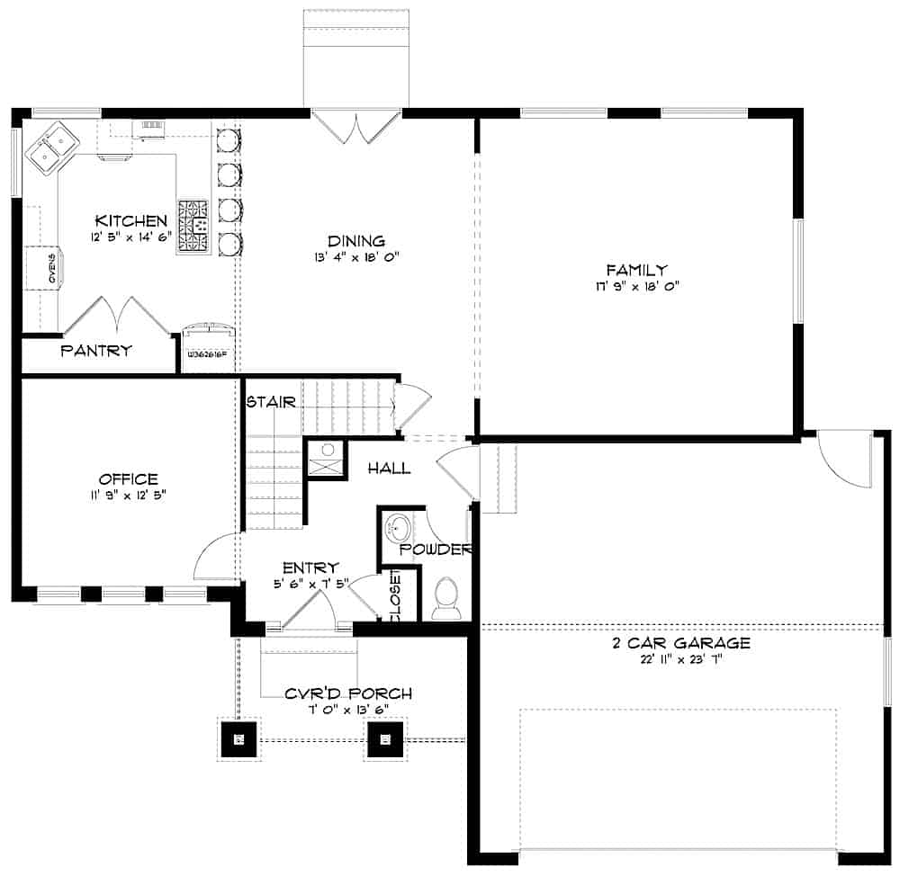
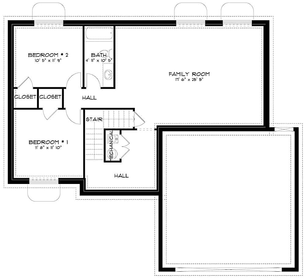
Note: The main level has 1126 living sq ft; the upper level has 900 living sq ft; the optional finished basement adds 1110 sq ft.
This Contemporary Craftsman style home is dynamic and vibrant in design both on its exterior and in the interior spaces. The house covers a heated-cooled area of 2,026 square feet on the main and upper level, with a 1,110-square-foot unfinished basement that may be finished according to the floor plan at a future date.
The 582-square-foot 2-car garage located at the front of the house is large enough to offer space for a workbench and off-season storage. A few steps from the garage is the front entrance to the house via the front porch. The entry...
Estimate your costs based on your location and materials.
All sales of house plans, modifications, and other products found on this site are final. No refunds or exchanges can be given once your order has begun the fulfillment process. Please see our Policies for additional information.
All plans offered on ThePlanCollection.com are designed to conform to the local building codes when and where the original plan was drawn.
The homes as shown in photographs and renderings may differ from the actual blueprints. For more detailed information, please review the floor plan images herein carefully.
Estimate your costs based on your location and materials.