3-5 Bedroom, 2025-3030 Sq Ft Country Plan with Jack & Jill Bathroom

Front elevation of Country home (ThePlanCollection: House Plan #187-1181)

Images/Plans copyrighted by designer. Photos may reflect homeowner modifications.

About House Plan #187-1181

Sq Ft
2025
Sq Ft
Bedrooms
3
Bedrooms
Bathroom
2
Baths
Half Baths
1
Half Baths
Bedrooms
2
Cars
Bedrooms
2
Stories
Bedrooms
52' 4'
Width
Bedrooms
31
Depth
Starting at$1250.00What's included
STEP 1Bedrooms
STEP 2Bedrooms
STEP 3Bedrooms

Subtotal:$0
Plan Collection

How much will it cost to build?

Estimate your costs based on your location and materials.

Free Cost Instant Estimator

Floor Plans

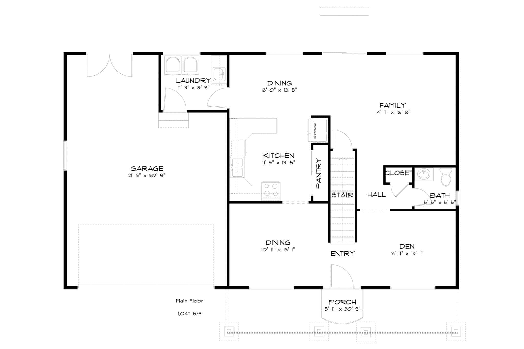
Main Level
Main Level
Upper Level
Upper Level
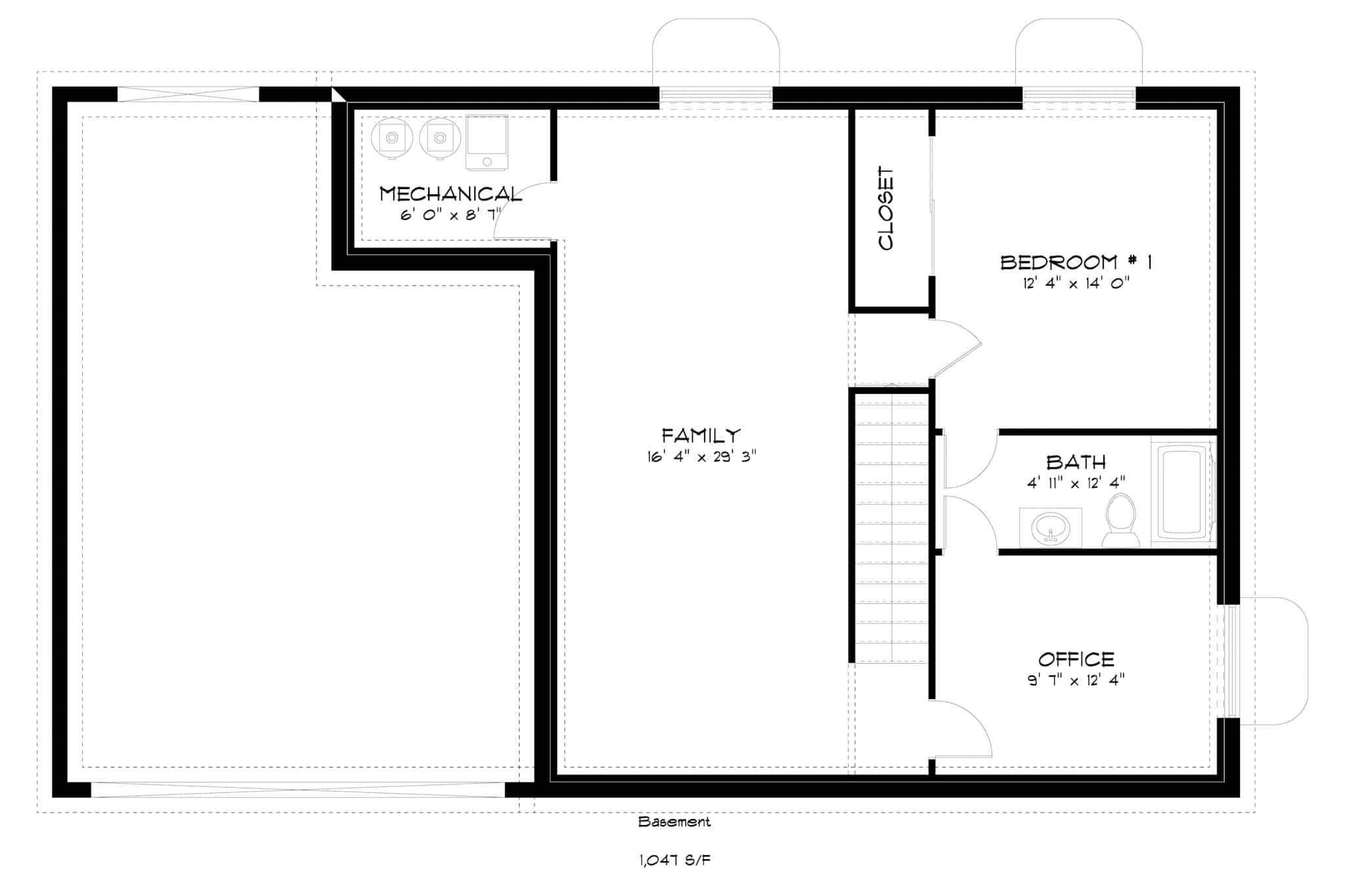
Basement
Basement
Plan Collection

Can I modify this plan?

Yes! This plan can be customized—contact us for a free quote.

Additional Notes from Designer

PLEASE NOTE! On some plans, alternate foundations could take up to ONE WEEK to produce. NOTE FROM DESIGNER: If you purchase a CAD, you will automatically receive the unlimited build license!

Note: Porch sq ft figures may include any deck sq ft as well.

House Plan Description

This striking Country home with Craftsman elements is 2,025 square feet with 3 bedrooms, 2.5 baths, and a 2-car garage. As part of this beautiful home, you will also find the following fantastic amenities:

  • Family Room, Dining Room, Home Office, Den
  • Kitchen with Pantry
  • Master Bedroom with Walk-in Closet, Master Bathroom
  • Jack & Jill Bathroom

The optional finished basement includes an additional 1,005 square feet, 1 more bedroom, 1 more bath, and a home office.

Home Details

Summary
Plan #:187-1181
Starting at:$1250.00
Floors:2
Bedrooms:3
Full Baths:2
Half Baths:1
Garage:
Square Footage
Heated Area:2025 Sq. Ft.
First Floor:1047 Sq. Ft.
Second Floor:978 Sq. Ft.
Unheated Area:
Basement:1005 Sq. Ft.
Garage:699 Sq. Ft.
Porch:180 Sq. Ft.
Dimensions
Width:52' 4''
Depth:31' 4''
Architectural Styles
Exterior Wall Material
Vinyl SidingWood SidingBoard and Batten
Roofing Type
Gable
Roofing Material
Asphalt Shingles
Roof Pitch
6/12
Ceiling Height
9 Foot Ceiling8 Foot Ceiling
Special Feature
Dining RoomHome OfficeFamily RoomGame RoomMain Level LaundrySplit BathroomStorageDenOpen Floor Plan
Garage Type
Attached GarageFront Entry
Exterior Wall Framing
2x6
Building Lot Type
Down Site
Kitchen Features
Peninsula/Eating BarEat-In Kitchen
Porches and Exterior Features
Covered Front Porch
Master Suite Features
Master BathroomWalk In ClosetSecond Floor Master

What’s Included

Most plan sets include the following:

icon text-secondary-400 includedFloor plans

icon text-secondary-400 includedFloor framing plans

icon text-secondary-400 includedRoof framing plan

icon text-secondary-400 includedAll 4 elevations

icon text-secondary-400 includedCross-sections

icon text-secondary-400 includedElectrical layout

icon text-secondary-400 included3-4 sheets of details

What’s Not Included

These items are  NOT included:

icon text-secondary-400 includedMechanical Drawings (location of heating and air equipment and ductwork) - your subcontractors handle this.

icon text-secondary-400 includedSite Plan - handled locally when required. Architectural or Engineering Stamp - handled locally if required.

icon text-secondary-400 includedPlumbing Drawings (drawings showing the actual plumbing pipe sizes and locations) - your subcontractors handle this.

icon text-secondary-400 includedEnergy calculations - handled locally when required.

Related House Plans

Plan Collection
Plan Collection
Plan Collection
Plan#126-1297
Starting at$1715
2257
Sq Ft
2
Story
3
Bed
2.5
Bath
2
Car
Plan Collection
Plan Collection
Plan Collection
Plan#169-1146
Starting at$720
1664
Sq Ft
2
Story
3
Bed
2.5
Bath
2
Car
Plan Collection
Plan Collection
Plan Collection
Plan#116-1007
Starting at$0
1586
Sq Ft
2
Story
3
Bed
2.5
Bath
0
Car
View All

Other Plans By This Designer

Plan Collection
Plan Collection
Plan Collection
Plan#187-1210
Starting at$650
900
Sq Ft
1
Story
2
Bed
1.5
Bath
2
Car
Plan Collection
Plan Collection
Plan Collection
Plan#187-1206
Starting at$1150
1096
Sq Ft
2
Story
2
Bed
2
Bath
6
Car
Plan Collection
Plan Collection
Plan Collection
Plan#187-1069
Starting at$1050
1595
Sq Ft
1
Story
3
Bed
2
Bath
4
Car