3–7-Bedroom, 1992–4497 Sq Ft Traditional Plan with Office

Traditional style Ranch home (ThePlanCollection: Plan #187-1124)

Images/Plans copyrighted by designer. Photos may reflect homeowner modifications.

About House Plan #187-1124

Sq Ft
1992
Sq Ft
Bedrooms
3
Bedrooms
Bathroom
2
Baths
Half Baths
1
Half Baths
Bedrooms
4
Cars
Bedrooms
1
Stories
Bedrooms
74' 2'
Width
Bedrooms
53
Depth
Starting at$1150.00What's included
STEP 1Bedrooms
STEP 2Bedrooms
STEP 3Bedrooms

Subtotal:$0
Plan Collection

How much will it cost to build?

Estimate your costs based on your location and materials.

Free Cost Instant Estimator

Floor Plans

Floor Plan Main Level
Floor Plan Main Level
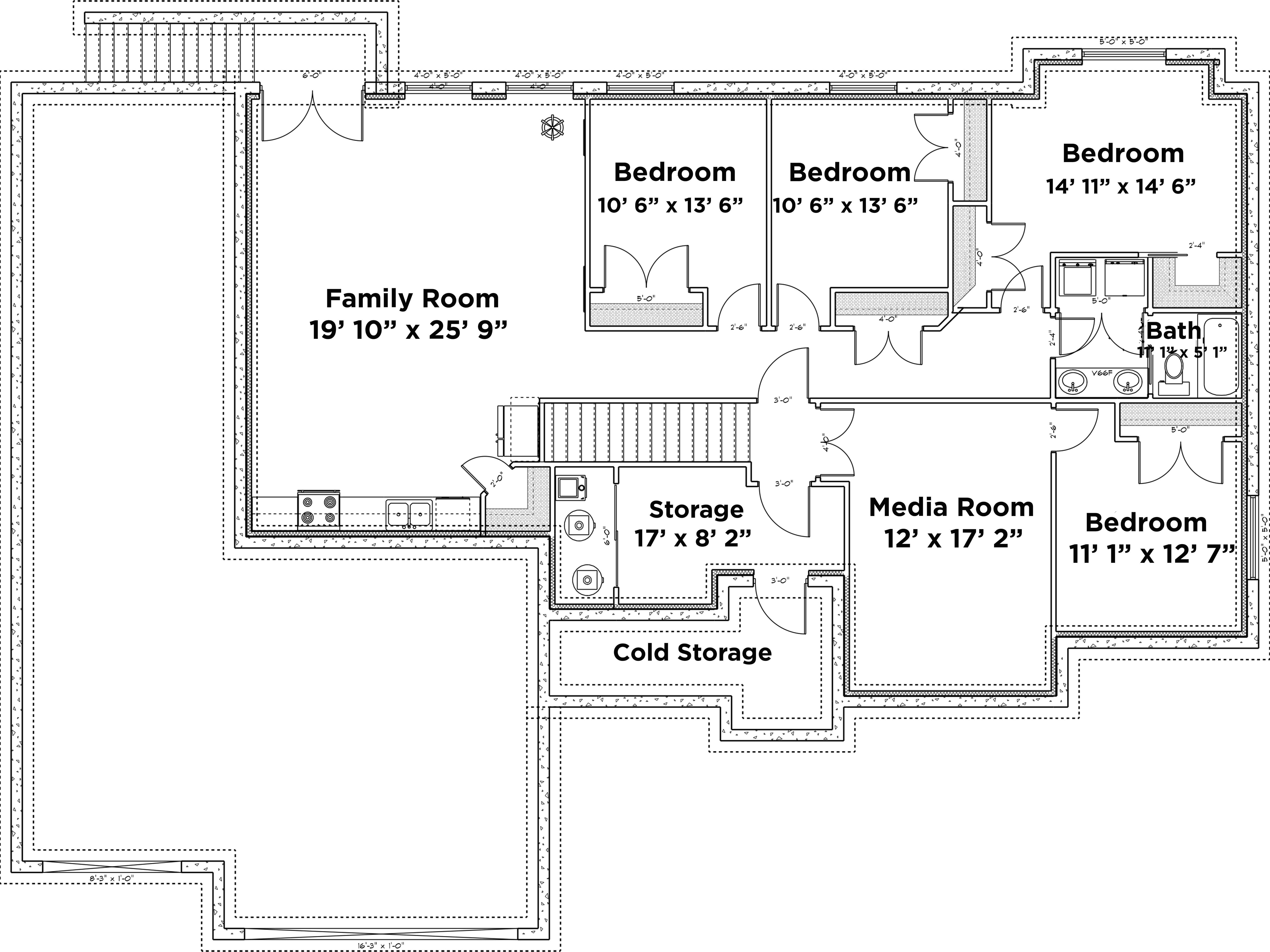
Floor Plan Basement
Floor Plan Basement
Floor Plan Bonus Room
Floor Plan Bonus Room
Plan Collection

Can I modify this plan?

Yes! This plan can be customized—contact us for a free quote.

Additional Notes from Designer

PLEASE NOTE! On some plans, alternate foundations could take up to ONE WEEK to produce. NOTE FROM DESIGNER: If you purchase a CAD, you will automatically receive the unlimited build license!

Note: The main floor has 1992 living sq ft; the optional bonus room adds 408 living sq ft; the finished basement adds 2097 living sq ft. In all, there are 4497 total living square feet with the optional square footage.

House Plan Description

This beautiful traditional home has 1,992 square feet of above-grade living space plus an optional bonus room of 408 square feet. With the finished basement – if you choose to finish it now or in the future – there are 4,497 total conditioned square feet. The one-story floor plan includes 3 bedrooms and 2.5 bathrooms – 7 bedrooms and 3.5 bathrooms with the finished basement included.

Home Details

Summary
Plan #:187-1124
Starting at:$1150.00
Floors:1
Bedrooms:3
Full Baths:2
Half Baths:1
Garage:
Square Footage
Heated Area:1992 Sq. Ft.
First Floor:1992 Sq. Ft.
Unheated Area:
Basement:2097 Sq. Ft.
Bonus Room:408 Sq. Ft.
Dimensions
Width:74' 2''
Depth:53' 4''
Ridge Height:24' 0''
Architectural Styles
Exterior Wall Material
Vinyl SidingRock/StoneWood Siding
Roofing Type
GableHip
Roofing Material
Asphalt Shingles
Roof Pitch
10/12
Ceiling Height
9 Foot Ceiling
Special Feature
Home OfficeMud RoomBonus RoomFamily RoomMain Level LaundryColor PhotosSplit BathroomStorageDenOpen Floor PlanL-Shaped
Garage Type
Attached GarageFront Entry
Exterior Wall Framing
2x6
Kitchen Features
Kitchen IslandNook/Breakfast AreaPeninsula/Eating Bar
Porches and Exterior Features
Covered Front PorchPatio
Master Suite Features
Main Floor MasterMaster BathroomWalk In ClosetSplit Master Bedroom

What’s Included

Most plan sets include the following:

icon text-secondary-400 includedFloor plans

icon text-secondary-400 includedFloor framing plans

icon text-secondary-400 includedRoof framing plan

icon text-secondary-400 includedAll 4 elevations

icon text-secondary-400 includedCross-sections

icon text-secondary-400 includedElectrical layout

icon text-secondary-400 included3-4 sheets of details

What’s Not Included

These items are  NOT included:

icon text-secondary-400 includedMechanical Drawings (location of heating and air equipment and ductwork) - your subcontractors handle this.

icon text-secondary-400 includedSite Plan - handled locally when required. Architectural or Engineering Stamp - handled locally if required.

icon text-secondary-400 includedPlumbing Drawings (drawings showing the actual plumbing pipe sizes and locations) - your subcontractors handle this.

icon text-secondary-400 includedEnergy calculations - handled locally when required.

Related House Plans

Plan Collection
Plan Collection
Plan Collection
Plan#117-1092
Starting at$1095
2091
Sq Ft
1
Story
3
Bed
2.5
Bath
2
Car
Plan Collection
Plan Collection
Plan Collection
Plan#106-1276
Starting at$1295
2344
Sq Ft
1
Story
3
Bed
2.5
Bath
2
Car
Plan Collection
Plan Collection
Plan Collection
Plan#141-1243
Starting at$1485
1640
Sq Ft
1
Story
3
Bed
2
Bath
2
Car
View All

Other Plans By This Designer

Plan Collection
Plan Collection
Plan Collection
Plan#187-1210
Starting at$650
900
Sq Ft
1
Story
2
Bed
1.5
Bath
2
Car
Plan Collection
Plan Collection
Plan Collection
Plan#187-1206
Starting at$1150
1096
Sq Ft
2
Story
2
Bed
2
Bath
6
Car
Plan Collection
Plan Collection
Plan Collection
Plan#187-1069
Starting at$1050
1595
Sq Ft
1
Story
3
Bed
2
Bath
4
Car