Estimate your costs based on your location and materials.
Yes! This plan can be customized—contact us for a free quote.
Yes! This plan can be customized—contact us for a free quote.
Optional Foundations are considered modifications so please send us a modification request if you would like a free quote. Thank you! PLEASE NOTE! Any options that are ordered such as RRR or 2x6 conversion will each take 4-7 business days to complete BEFORE the plans are sent. Materials Lists can take up to 14 business days to complete BEFORE plans are sent.
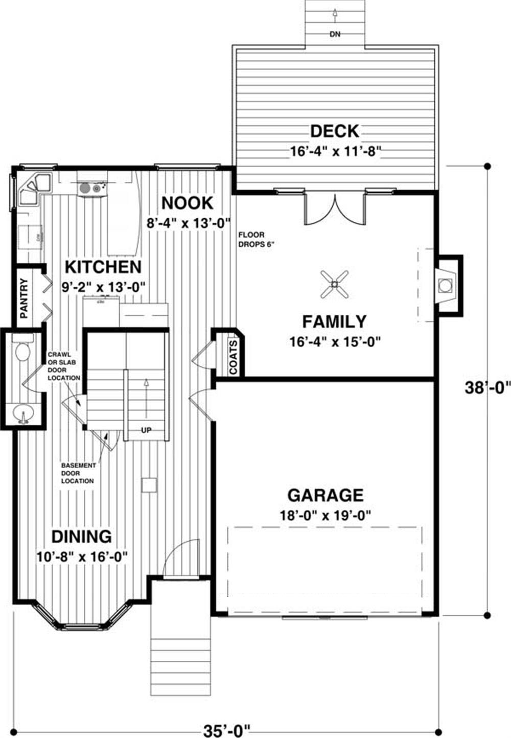
This attractive European-inspired home is designed especially for todays narrow lots. But don't be fooled by the compact dimensions of this home! This design offers a well-planned interior. Upon entering the front door, a stately column separates the foyer from the spacious dining room. Continue down the hallway to a gourmet kitchen with a breakfast bar for dining or food preparation. The sunny eating nook overlooks the backyard. Privately tucked in the back corner of this home is a family room with double French doors that lead onto a deck. A cozy fireplace can be enjoyed from the family...
Estimate your costs based on your location and materials.
All sales of house plans, modifications, and other products found on this site are final. No refunds or exchanges can be given once your order has begun the fulfillment process. Please see our Policies for additional information.
All plans offered on ThePlanCollection.com are designed to conform to the local building codes when and where the original plan was drawn.
The homes as shown in photographs and renderings may differ from the actual blueprints. For more detailed information, please review the floor plan images herein carefully.
Estimate your costs based on your location and materials.