3-Bedroom, 1731 Sq Ft Country Plan with Master Bathroom

Front view of Country home (ThePlanCollection: House Plan #146-2983)

Images/Plans copyrighted by designer. Photos may reflect homeowner modifications.

About House Plan #146-2983

Sq Ft
1731
Sq Ft
Bedrooms
3
Bedrooms
Bathroom
2
Baths
Half Baths
1
Half Baths
Bedrooms
2
Cars
Bedrooms
2
Stories
Bedrooms
35' 0'
Width
Bedrooms
48
Depth
Starting at$980.00What's included
STEP 1Bedrooms
STEP 2Bedrooms
STEP 3Bedrooms

Subtotal:$0
Plan Collection

How much will it cost to build?

Estimate your costs based on your location and materials.

Free Cost Instant Estimator

Floor Plans

Floor Plan First Story
Floor Plan First Story
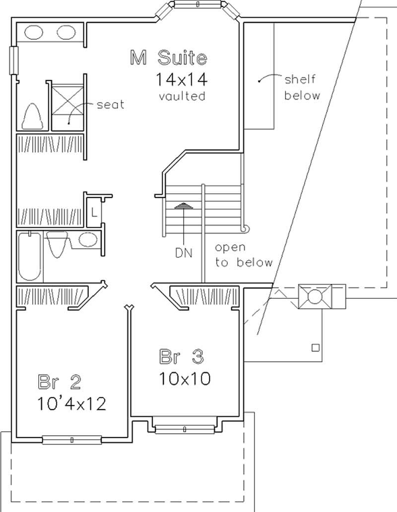
Floor Plan Second Story
Floor Plan Second Story
Plan Collection

Can I modify this plan?

Yes! This plan can be customized—contact us for a free quote.

House Plan Description

Space-efficient and cost-effective, this stylish, feature-filled home is designed with comfort in mind. An angled entrance off the inviting covered porch opens to the 17-ft.-high foyer, which is brightened by a half-round clerestory window. The dramatic 17-ft. vaulted ceiling extends into the adjoining formal living areas. The living room features a stone fireplace, while the dining room is highlighted by an overhead plant shelf. A bay window brings great outdoor views into the eat-in kitchen, which serves the family room over a long snack bar. An atrium door in the family room offers access...

Home Details

Summary
Plan #:146-2983
Starting at:$980.00
Floors:2
Bedrooms:3
Full Baths:2
Half Baths:1
Garage:
Square Footage
Heated Area:1731 Sq. Ft.
First Floor:932 Sq. Ft.
Second Floor:799 Sq. Ft.
Unheated Area:
Dimensions
Ridge Height:24' 0''
Architectural Styles
Exterior Wall Material
Wood Siding
Roofing Type
Gable
Roofing Material
Asphalt Shingles
Special Feature
FireplaceSwimming PoolDining RoomMud RoomFamily RoomMain Level LaundryVaulted Ceilings
Garage Type
Attached GarageFront Entry
Fireplaces
One Fireplace
Exterior Wall Framing
2x6
Building Lot Type
Flat SiteNarrow Lot Design
Kitchen Features
Nook/Breakfast AreaEat-In Kitchen
Porches and Exterior Features
Covered Front PorchSundeck
Master Suite Features
Master BathroomWalk In ClosetSecond Floor Master

What’s Included

Most plan sets include the following:

What’s Not Included

These items are  NOT included:

icon text-secondary-400 includedArchitectural or Engineering Stamp - handled locally if required.

icon text-secondary-400 includedSite Plan - handled locally when required.

icon text-secondary-400 includedMechanical Drawings (location of heating and air equipment and ductwork) - your subcontractors handle this.

icon text-secondary-400 includedPlumbing Drawings (drawings showing the actual plumbing pipe sizes and locations) - your subcontractors handle this.

icon text-secondary-400 includedEnergy calculations - handled locally when required.

Related House Plans

Plan Collection
Plan Collection
Plan Collection
Plan#109-1029
Starting at$1195
1334
Sq Ft
2
Story
3
Bed
2.5
Bath
0
Car
Plan Collection
Plan Collection
Plan Collection
Plan#169-1146
Starting at$720
1664
Sq Ft
2
Story
3
Bed
2.5
Bath
2
Car
Plan Collection
Plan Collection
Plan Collection
Plan#116-1007
Starting at$0
1586
Sq Ft
2
Story
3
Bed
2.5
Bath
0
Car
View All

Other Plans By This Designer

Plan Collection
Plan Collection
Plan Collection
Plan#146-2806
Starting at$980
1933
Sq Ft
2
Story
3
Bed
2
Bath
0
Car
Plan Collection
Plan Collection
Plan Collection
Plan#146-2810
Starting at$1285
3594
Sq Ft
2
Story
4
Bed
3.5
Bath
2
Car
Plan Collection
Plan Collection
Plan Collection
Plan#146-1917
Starting at$1120
2525
Sq Ft
2
Story
4
Bed
2.5
Bath
3
Car