3-Bedroom, 1721 Sq Ft Small House Plans Plan with Second Floor Master

Front elevation of Small House Plans home (ThePlanCollection: House Plan #136-1007)

Images/Plans copyrighted by designer. Photos may reflect homeowner modifications.

About House Plan #136-1007

Sq Ft
1721
Sq Ft
Bedrooms
3
Bedrooms
Bathroom
2
Baths
Half Baths
0
Half Baths
Bedrooms
2
Cars
Bedrooms
1
Stories
Bedrooms
55' 0'
Width
Bedrooms
57
Depth
Starting at$1500.00What's included
STEP 1Bedrooms
STEP 2Bedrooms
STEP 3Bedrooms

Subtotal:$0
Plan Collection

How much will it cost to build?

Estimate your costs based on your location and materials.

Free Cost Instant Estimator

Floor Plans

First Floor Plan
First Floor Plan
Floor Plan Basement
Floor Plan Basement
Plan Collection

Can I modify this plan?

Yes! This plan can be customized—contact us for a free quote.

Additional Notes from Designer

PLEASE NOTE: This plan may take 1-2 weeks to prepare prior to shipment.

House Plan Description

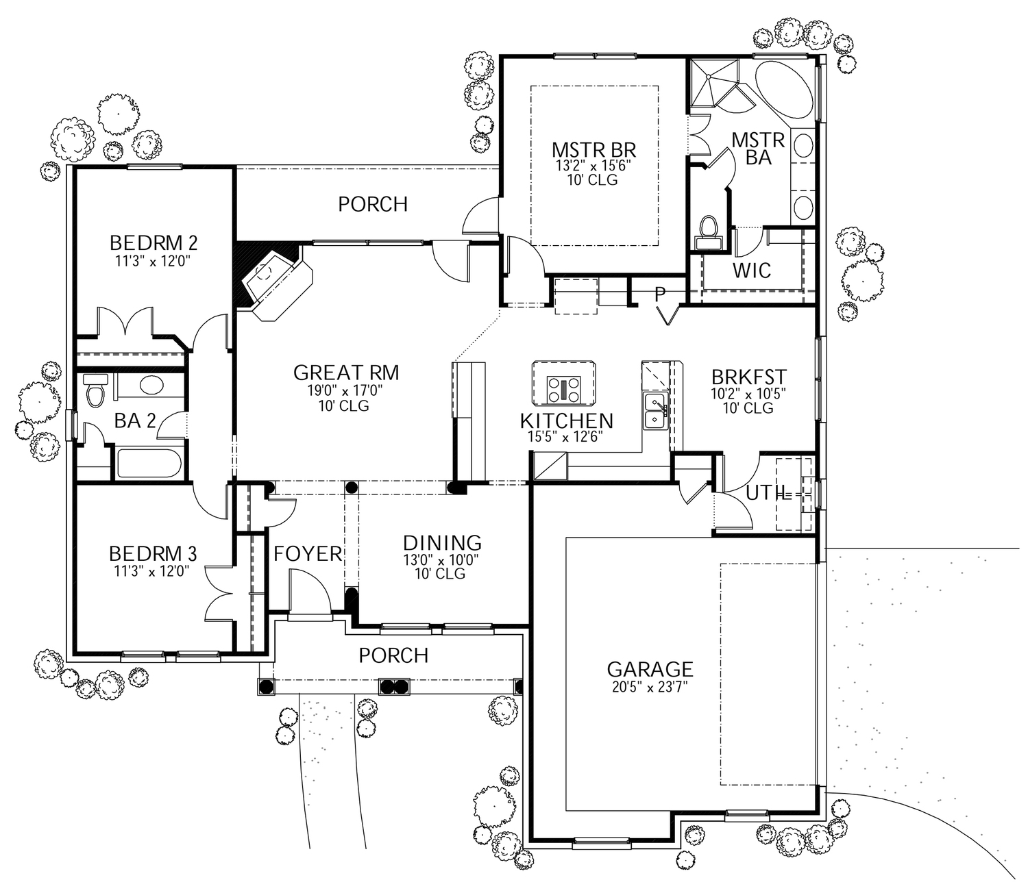
A traditional brick and stucco home with a large kitchen with an island opens to the great room on one side, and to the breakfast area on the other. Round tapered columns with arches above separate the great room from the dining room and the foyer. A side entry two-car garage with a storage / workshop area can be modified into a front entry and also can serve as an access to an optional basement.

Home Details

Summary
Plan #:136-1007
Starting at:$1500.00
Floors:1
Bedrooms:3
Full Baths:2
Half Baths:0
Garage:
Square Footage
Heated Area:1721 Sq. Ft.
First Floor:1721 Sq. Ft.
Unheated Area:
Dimensions
Depth:57' 6''
Architectural Styles
Exterior Wall Material
BrickStucco
Special Feature
FireplaceDining RoomMain Level LaundrySplit Bathroom
Garage Type
Side Entry
Fireplaces
One Fireplace
Kitchen Features
Kitchen IslandPeninsula/Eating Bar
Porches and Exterior Features
Covered Front PorchCovered Rear Porch
Master Suite Features
Main Floor MasterMaster BathroomWalk In Closet

What’s Included

Most plan sets include the following:

icon text-secondary-400 includedCover Sheet

icon text-secondary-400 includedFloor Plans

icon text-secondary-400 includedExterior Elevations

icon text-secondary-400 includedInterior Elevations

icon text-secondary-400 includedElectrical Layout

icon text-secondary-400 includedSchematic Framing Plan

icon text-secondary-400 includedRoof Plan

icon text-secondary-400 includedFoundation Plan (non-engineered)

icon text-secondary-400 includedGeneric wall sections & details​

What’s Not Included

These items are  NOT included:

icon text-secondary-400 includedArchitectural or Engineering Stamp - handled locally if required.

icon text-secondary-400 includedSite Plan - handled locally when required.

icon text-secondary-400 includedMechanical Drawings (location of heating and air equipment and ductwork) - your subcontractors handle this.

icon text-secondary-400 includedPlumbing Drawings (drawings showing the actual plumbing pipe sizes and locations) - your subcontractors handle this.

icon text-secondary-400 includedEnergy calculations - handled locally when required.

Related House Plans

Plan Collection
Plan Collection
Plan Collection
Plan#117-1092
Starting at$1095
2091
Sq Ft
1
Story
3
Bed
2.5
Bath
2
Car
Plan Collection
Plan Collection
Plan Collection
Plan#142-1041
Starting at$1245
1300
Sq Ft
1
Story
3
Bed
2
Bath
2
Car
Plan Collection
Plan Collection
Plan Collection
Plan#141-1243
Starting at$1485
1640
Sq Ft
1
Story
3
Bed
2
Bath
2
Car
View All

Other Plans By This Designer

Plan Collection
Plan Collection
Plan Collection
Plan#136-1036
Starting at$1800
2002
Sq Ft
1
Story
3
Bed
2.5
Bath
2
Car
Plan Collection
Plan Collection
Plan Collection
Plan#136-1037
Starting at$1950
2772
Sq Ft
1
Story
4
Bed
3.5
Bath
2
Car
Plan Collection
Plan Collection
Plan Collection
Plan#136-1030
Starting at$2250
3716
Sq Ft
2
Story
4
Bed
4.5
Bath
3
Car