3-Bedroom, 1939 Sq Ft Ranch Plan with Sundeck

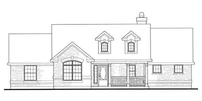
Front elevation of Ranch home (ThePlanCollection: House Plan #136-1026)

Images/Plans copyrighted by designer. Photos may reflect homeowner modifications.

About House Plan #136-1026

Sq Ft
1939
Sq Ft
Bedrooms
3
Bedrooms
Bathroom
2
Baths
Half Baths
1
Half Baths
Bedrooms
0
Cars
Bedrooms
1
Stories
Bedrooms
59' 0'
Width
Bedrooms
46
Depth
Starting at$1500.00What's included
STEP 1Bedrooms
STEP 2Bedrooms
STEP 3Bedrooms

Subtotal:$0
Plan Collection

How much will it cost to build?

Estimate your costs based on your location and materials.

Free Cost Instant Estimator

Floor Plans

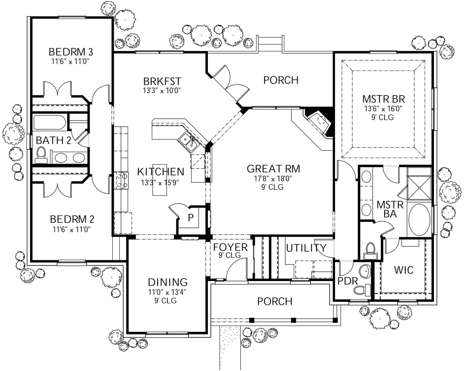
Floor Plan Main Level
Floor Plan Main Level
Plan Collection

Can I modify this plan?

Yes! This plan can be customized—contact us for a free quote.

Additional Notes from Designer

PLEASE NOTE: This plan may take 1-2 weeks to prepare prior to shipment.

House Plan Description

A covered front porch with boxed wood columns and wood rail as well as two dormers above give this house plan a distinctive country look. A spacious great room is separated from a large kitchen and a breakfast area by columns with arches above. The kitchen features an island, a walk-in pantry, and a desk area. A powder bath and a large utility room are located near a master suite with a 9' coffered ceiling and a large walk-in closet.

Home Details

Summary
Plan #:136-1026
Starting at:$1500.00
Floors:1
Bedrooms:3
Full Baths:2
Half Baths:1
Garage:
Square Footage
Heated Area:1939 Sq. Ft.
First Floor:1939 Sq. Ft.
Unheated Area:
Dimensions
Depth:46' 3''
Architectural Styles
Exterior Wall Material
Brick
Special Feature
Dining RoomMain Level Laundry
Fireplaces
One Fireplace
Kitchen Features
Walk-in Pantry
Porches and Exterior Features
Covered Front PorchSundeck
Master Suite Features
Main Floor MasterMaster BathroomSplit Master Bedroom

What’s Included

Most plan sets include the following:

icon text-secondary-400 includedCover Sheet

icon text-secondary-400 includedFloor Plans

icon text-secondary-400 includedExterior Elevations

icon text-secondary-400 includedInterior Elevations

icon text-secondary-400 includedElectrical Layout

icon text-secondary-400 includedSchematic Framing Plan

icon text-secondary-400 includedRoof Plan

icon text-secondary-400 includedFoundation Plan (non-engineered)

icon text-secondary-400 includedGeneric wall sections & details​

What’s Not Included

These items are  NOT included:

icon text-secondary-400 includedArchitectural or Engineering Stamp - handled locally if required.

icon text-secondary-400 includedSite Plan - handled locally when required.

icon text-secondary-400 includedMechanical Drawings (location of heating and air equipment and ductwork) - your subcontractors handle this.

icon text-secondary-400 includedPlumbing Drawings (drawings showing the actual plumbing pipe sizes and locations) - your subcontractors handle this.

icon text-secondary-400 includedEnergy calculations - handled locally when required.

Related House Plans

Plan Collection
Plan Collection
Plan Collection
Plan#117-1092
Starting at$1095
2091
Sq Ft
1
Story
3
Bed
2.5
Bath
2
Car
Plan Collection
Plan Collection
Plan Collection
Plan#106-1276
Starting at$1295
2344
Sq Ft
1
Story
3
Bed
2.5
Bath
2
Car
Plan Collection
Plan Collection
Plan Collection
Plan#141-1243
Starting at$1485
1640
Sq Ft
1
Story
3
Bed
2
Bath
2
Car
View All

Other Plans By This Designer

Plan Collection
Plan Collection
Plan Collection
Plan#136-1036
Starting at$1800
2002
Sq Ft
1
Story
3
Bed
2.5
Bath
2
Car
Plan Collection
Plan Collection
Plan Collection
Plan#136-1037
Starting at$1950
2772
Sq Ft
1
Story
4
Bed
3.5
Bath
2
Car
Plan Collection
Plan Collection
Plan Collection
Plan#136-1030
Starting at$2250
3716
Sq Ft
2
Story
4
Bed
4.5
Bath
3
Car