3-Bedroom, 1500 Sq Ft Farmhouse Plan with Home Office

Front elevation of Farmhouse home (ThePlanCollection: House Plan #203-1028)

Images/Plans copyrighted by designer. Photos may reflect homeowner modifications.

About House Plan #203-1028

Sq Ft
1500
Sq Ft
Bedrooms
3
Bedrooms
Bathroom
2
Baths
Half Baths
0
Half Baths
Bedrooms
0
Cars
Bedrooms
2
Stories
Bedrooms
27' 2'
Width
Bedrooms
48
Depth
Starting at$600.00What's included
STEP 1Bedrooms
STEP 2Bedrooms
STEP 3Bedrooms

Subtotal:$0
Plan Collection

How much will it cost to build?

Estimate your costs based on your location and materials.

Free Cost Instant Estimator

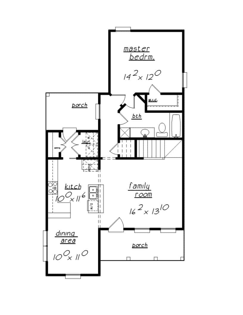
Floor Plans

Floor Plan Main Level
Floor Plan Main Level
Floor Plan Upper Level
Floor Plan Upper Level
Plan Collection

Can I modify this plan?

Yes! This plan can be customized—contact us for a free quote.

Additional Notes from Designer

Please Note: The designer of this plan, is currently away from the office until 4/22/2024. Any requests for this designer's plans will be processed when the architect resumes office.

House Plan Description

This lovely  designed Farmhouse-Country style home is given some country charm with its simple styling and clapboard siding, forwarded gables,  all of which contribute to a natural, homey curb appeal in rural or suburban surroundings. The elegant 2-story floor plan has 1500 square feet of living space and includes 3  bedrooms.

Home Details

Summary
Plan #:203-1028
Starting at:$600.00
Floors:2
Bedrooms:3
Full Baths:2
Half Baths:0
Garage:
Square Footage
Heated Area:1500 Sq. Ft.
First Floor:932 Sq. Ft.
Second Floor:568 Sq. Ft.
Unheated Area:
Porch:175 Sq. Ft.
Dimensions
Width:27' 2''
Depth:48' 2''
Architectural Styles
Exterior Wall Material
Vinyl SidingWood Siding
Roofing Type
GableHip
Roofing Material
Asphalt Shingles
Roof Pitch
12/12
Ceiling Height
8 Foot Ceiling
Special Feature
Home OfficeFamily RoomMain Level LaundryL-Shaped
Exterior Wall Framing
2x4
Building Lot Type
Flat SiteNarrow Lot Design
Kitchen Features
Walk-in PantryPeninsula/Eating Bar
Porches and Exterior Features
Covered Front PorchCovered Rear Porch
Master Suite Features
Main Floor MasterMaster BathroomWalk In ClosetSplit Master Bedroom

What’s Included

Most plan sets include the following:

icon text-secondary-400 includedArchitectural or Engineering Stamp - handled locally if required.

icon text-secondary-400 includedSite Plan - handled locally when required.

icon text-secondary-400 includedMechanical Drawings (location of heating and air equipment and ductwork) - your subcontractors handle this.

icon text-secondary-400 includedPlumbing Drawings (drawings showing the actual plumbing pipe sizes and locations) - your subcontractors handle this.

icon text-secondary-400 includedEnergy calculations - handled locally when required.

What’s Not Included

These items are  NOT included:

icon text-secondary-400 includedArchitectural or Engineering Stamp - handled locally if required.

icon text-secondary-400 includedSite Plan - handled locally when required.

icon text-secondary-400 includedMechanical Drawings (location of heating and air equipment and ductwork) - your subcontractors handle this.

icon text-secondary-400 includedPlumbing Drawings (drawings showing the actual plumbing pipe sizes and locations) - your subcontractors handle this.

icon text-secondary-400 includedEnergy calculations - handled locally when required.

Related House Plans

Plan Collection
Plan Collection
Plan Collection
Plan#160-1009
Starting at$945
1235
Sq Ft
2
Story
3
Bed
2
Bath
0
Car
Plan Collection
Plan Collection
Plan Collection
Plan#117-1104
Starting at$895
1421
Sq Ft
2
Story
3
Bed
2
Bath
2
Car
Plan Collection
Plan Collection
Plan Collection
Plan#109-1029
Starting at$1195
1334
Sq Ft
2
Story
3
Bed
2.5
Bath
0
Car
View All

Other Plans By This Designer

Plan Collection
Plan Collection
Plan Collection
Plan#203-1040
Starting at$850
1988
Sq Ft
1.5
Story
4
Bed
3
Bath
2
Car
Plan Collection
Plan Collection
Plan Collection
Plan#203-1043
Starting at$700
1522
Sq Ft
1
Story
3
Bed
2
Bath
2
Car
Plan Collection
Plan Collection
Plan Collection
Plan#203-1038
Starting at$600
1251
Sq Ft
1
Story
3
Bed
2
Bath
2
Car