4-Bedroom, 1988 Sq Ft European Plan with Corner Fireplace

European home (ThePlanCollection: Plan #203-1040)

Images/Plans copyrighted by designer. Photos may reflect homeowner modifications.

About House Plan #203-1040

Sq Ft
1988
Sq Ft
Bedrooms
4
Bedrooms
Bathroom
3
Baths
Half Baths
0
Half Baths
Bedrooms
2
Cars
Bedrooms
1.5
Stories
Bedrooms
44' 0'
Width
Bedrooms
57
Depth
Starting at$850.00What's included
STEP 1Bedrooms
STEP 2Bedrooms
STEP 3Bedrooms

Subtotal:$0
Plan Collection

How much will it cost to build?

Estimate your costs based on your location and materials.

Free Cost Instant Estimator

Floor Plans

Floor Plan Main Level
Floor Plan Main Level
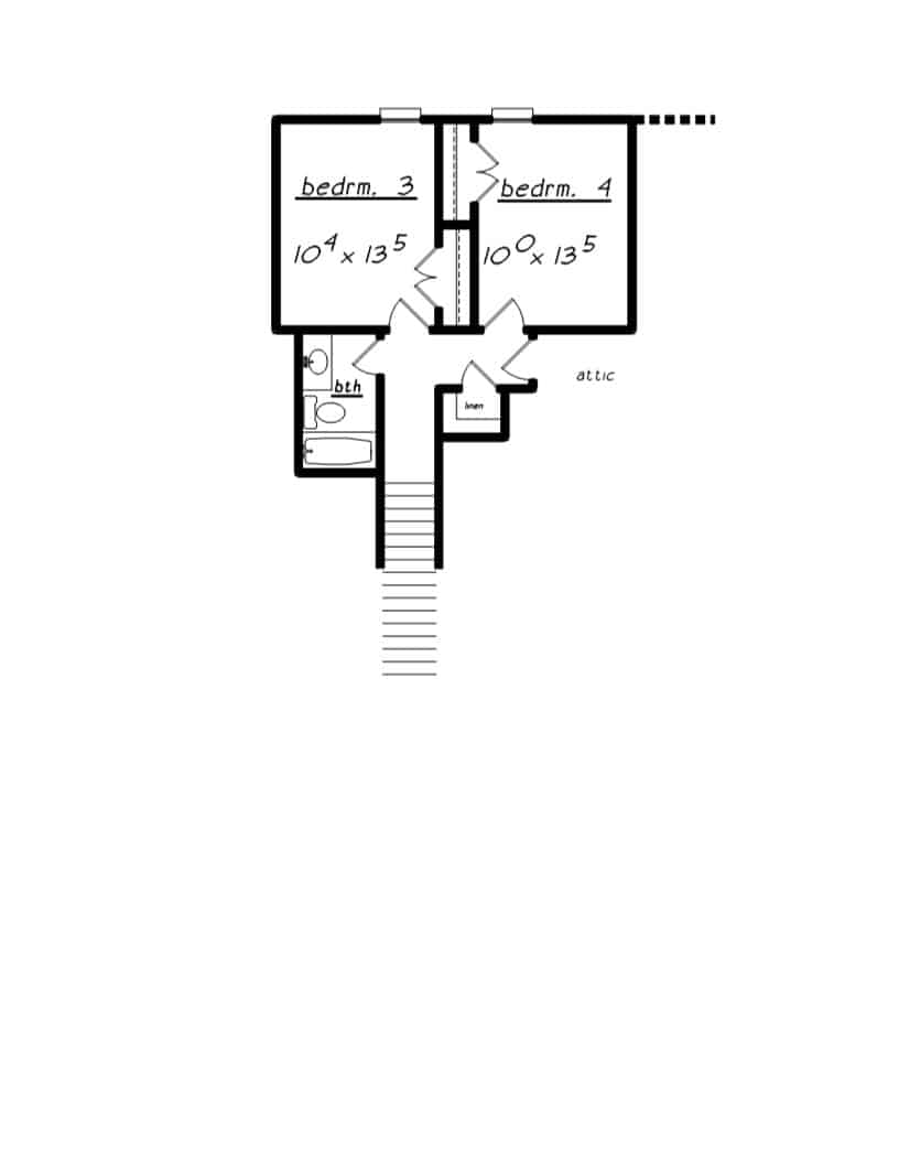
Floor Plan Upper Level
Floor Plan Upper Level
Plan Collection

Can I modify this plan?

Yes! This plan can be customized—contact us for a free quote.

Additional Notes from Designer

Please Note: The designer of this plan, is currently away from the office until 4/22/2024. Any requests for this designer's plans will be processed when the architect resumes office.

House Plan Description

Looking for a wonderful, spacious design with amenities that will surely satisfy the family? This European / French Country style home may be just what you're looking for! There is definitely no wasted space in this house, which provides amenities that are sure to satisfy all members of the family. The forward-facing gables, steep roof slope, and covered front entry portico with double doors give the lovely four-bedroom house a pleasant and interesting appeal. The inspiring home's 1.5-story floor plan has 1988...

Home Details

Summary
Plan #:203-1040
Starting at:$850.00
Floors:1.5
Bedrooms:4
Full Baths:3
Half Baths:0
Garage:
Square Footage
Heated Area:1988 Sq. Ft.
First Floor:1527 Sq. Ft.
Second Floor:461 Sq. Ft.
Unheated Area:
Garage:438 Sq. Ft.
Porch:183 Sq. Ft.
Dimensions
Depth:57' 2''
Architectural Styles
Exterior Wall Material
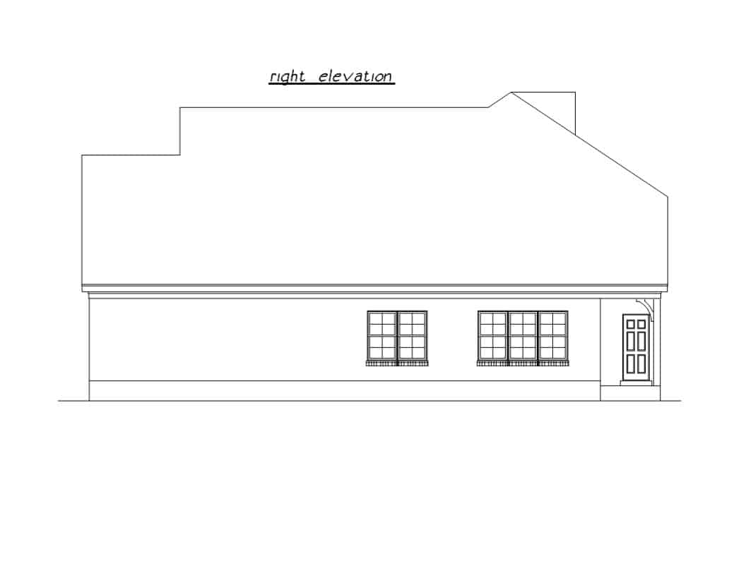
Vinyl SidingBrick
Roofing Type
GableHip
Roofing Material
Asphalt Shingles
Roof Pitch
8/1214/12
Ceiling Height
9 Foot Ceiling8 Foot Ceiling
Special Feature
FireplaceFamily RoomMain Level LaundrySplit BathroomStorageOpen Floor Plan
Garage Type
Attached GarageFront Entry
Fireplaces
One Fireplace
Building Lot Type
Flat Site
Kitchen Features
Peninsula/Eating BarEat-In Kitchen
Porches and Exterior Features
Covered Rear PorchPortico
Master Suite Features
Main Floor MasterMaster BathroomWalk In Closet

What’s Included

Most plan sets include the following:

icon text-secondary-400 includedArchitectural or Engineering Stamp - handled locally if required.

icon text-secondary-400 includedSite Plan - handled locally when required.

icon text-secondary-400 includedMechanical Drawings (location of heating and air equipment and ductwork) - your subcontractors handle this.

icon text-secondary-400 includedPlumbing Drawings (drawings showing the actual plumbing pipe sizes and locations) - your subcontractors handle this.

icon text-secondary-400 includedEnergy calculations - handled locally when required.

What’s Not Included

These items are  NOT included:

icon text-secondary-400 includedArchitectural or Engineering Stamp - handled locally if required.

icon text-secondary-400 includedSite Plan - handled locally when required.

icon text-secondary-400 includedMechanical Drawings (location of heating and air equipment and ductwork) - your subcontractors handle this.

icon text-secondary-400 includedPlumbing Drawings (drawings showing the actual plumbing pipe sizes and locations) - your subcontractors handle this.

icon text-secondary-400 includedEnergy calculations - handled locally when required.

Related House Plans

Plan Collection
Plan Collection
Plan Collection
Plan#142-1231
Starting at$1345
2390
Sq Ft
1.5
Story
4
Bed
3
Bath
2
Car
Plan Collection
Plan Collection
Plan Collection
Plan#153-1351
Starting at$1350
2261
Sq Ft
1.5
Story
4
Bed
3.5
Bath
2
Car
Plan Collection
Plan Collection
Plan Collection
Plan#142-1098
Starting at$1345
2400
Sq Ft
1.5
Story
4
Bed
3
Bath
2
Car
View All

Other Plans By This Designer

Plan Collection
Plan Collection
Plan Collection
Plan#203-1043
Starting at$700
1522
Sq Ft
1
Story
3
Bed
2
Bath
2
Car
Plan Collection
Plan Collection
Plan Collection
Plan#203-1038
Starting at$600
1251
Sq Ft
1
Story
3
Bed
2
Bath
2
Car
Plan Collection
Plan Collection
Plan Collection
Plan#203-1041
Starting at$1175
2862
Sq Ft
2
Story
5
Bed
4
Bath
2
Car