Estimate your costs based on your location and materials.
Yes! This plan can be customized—contact us for a free quote.
Yes! This plan can be customized—contact us for a free quote.
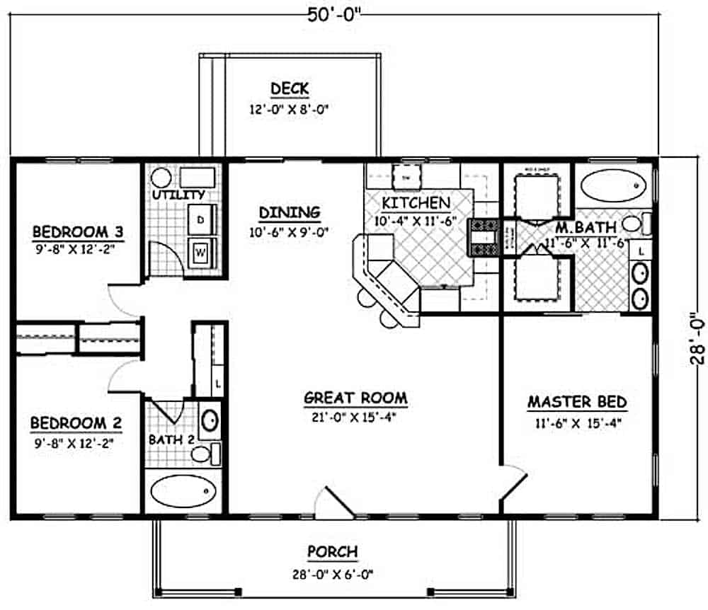
Don't miss the opportunity to live in this stately Country Ranch style home designed for the comfort of your family. As you enter the door you will be greeted by the Great Room leading to the self-contained kitchen and the dining area in a warm and inviting open floor plan. The dining area has access to the sun deck out back for alfresco dining in the warmer months. The comfortable 1-story floor plan has 1400 square feet of living space and includes 3 bedrooms and 2 bathrooms.
Estimate your costs based on your location and materials.
All sales of house plans, modifications, and other products found on this site are final. No refunds or exchanges can be given once your order has begun the fulfillment process. Please see our Policies for additional information.
All plans offered on ThePlanCollection.com are designed to conform to the local building codes when and where the original plan was drawn.
The homes as shown in photographs and renderings may differ from the actual blueprints. For more detailed information, please review the floor plan images herein carefully.
Estimate your costs based on your location and materials.