Estimate your costs based on your location and materials.
Yes! This plan can be customized—contact us for a free quote.
Yes! This plan can be customized—contact us for a free quote.
The CAD File formats are drawn in SoftPlan. PLEASE NOTE: Plans by this designer do NOT come with FRAMING! This designer does not do ICF.
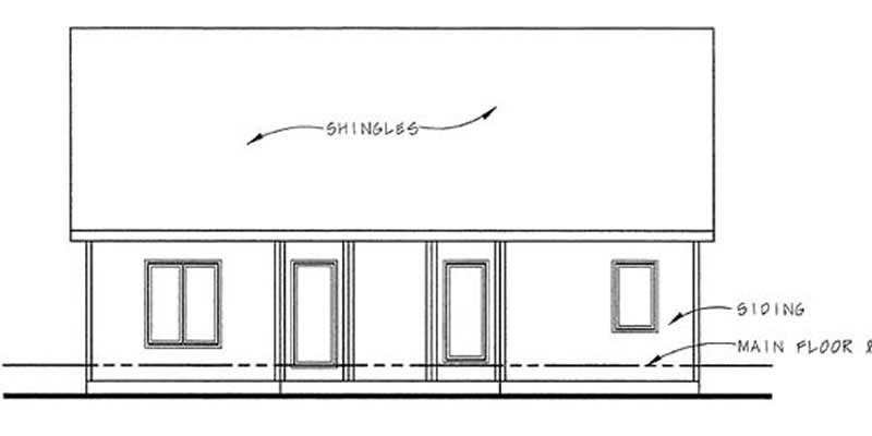
This home plan is a single story, Traditional, Ranch Style house plan with 1304 total living square feet. This home plan has 3 bedrooms, 2 bathrooms, and a 2 car garage. The great room is the center of focus of the main floor plan. To the left of the great room is the master bedroom and bath, as well as the kitchen and dining room. To the right of the great room are 2 other bedrooms. This plan has beautiful Traditional, Ranch style.
Estimate your costs based on your location and materials.
All sales of house plans, modifications, and other products found on this site are final. No refunds or exchanges can be given once your order has begun the fulfillment process. Please see our Policies for additional information.
All plans offered on ThePlanCollection.com are designed to conform to the local building codes when and where the original plan was drawn.
The homes as shown in photographs and renderings may differ from the actual blueprints. For more detailed information, please review the floor plan images herein carefully.
Estimate your costs based on your location and materials.