1-Bedroom, 1072 Sq Ft Modern Plan with Living Room

Front elevation of Modern home (ThePlanCollection: House Plan #120-2797)

Images/Plans copyrighted by designer. Photos may reflect homeowner modifications.

About House Plan #120-2797

Sq Ft
1072
Sq Ft
Bedrooms
1
Bedrooms
Bathroom
1
Baths
Half Baths
0
Half Baths
Bedrooms
0
Cars
Bedrooms
2
Stories
Bedrooms
21' 8'
Width
Bedrooms
38
Depth
Starting at$1055.00What's included
STEP 1Bedrooms
STEP 2Bedrooms
STEP 3Bedrooms

Subtotal:$0
Plan Collection

How much will it cost to build?

Estimate your costs based on your location and materials.

Free Cost Instant Estimator

Floor Plans

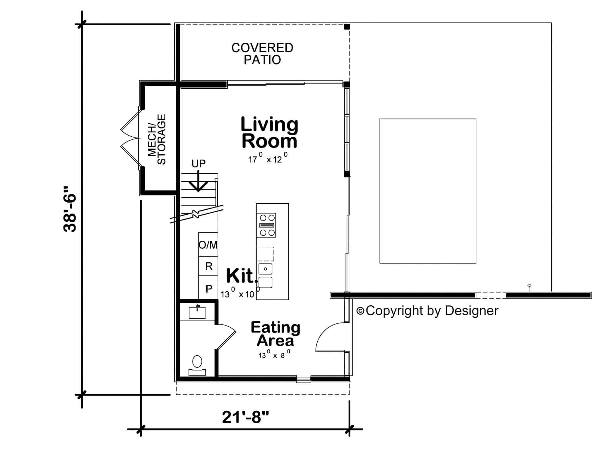
Main Level
Main Level
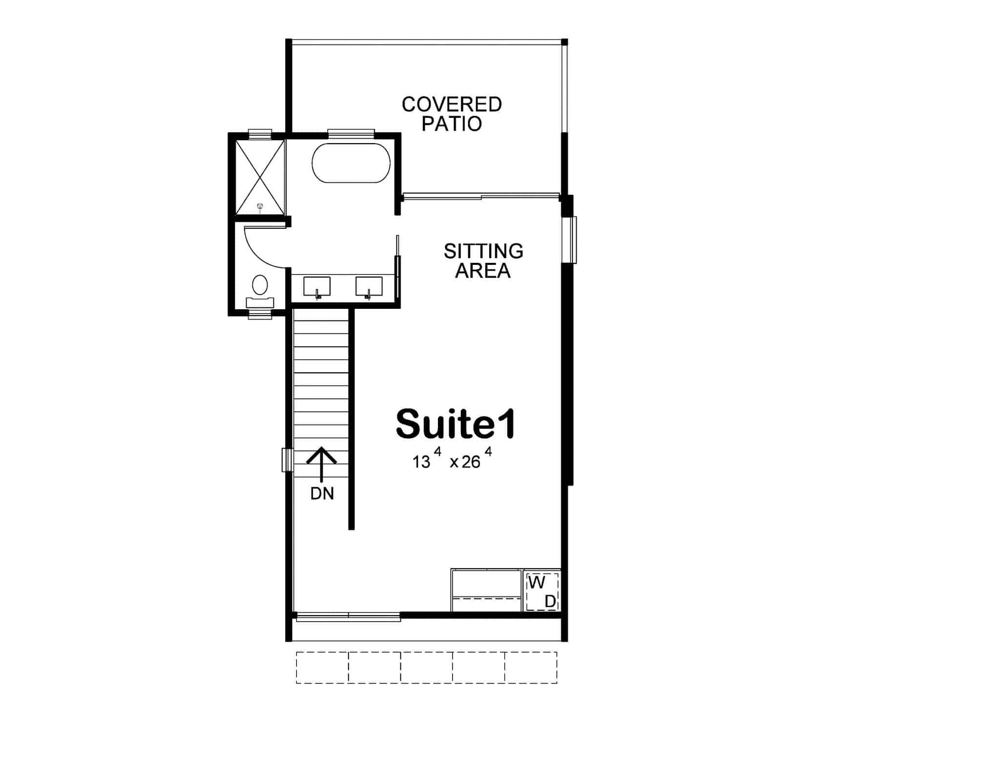
Upper Level
Upper Level
Plan Collection

Can I modify this plan?

Yes! This plan can be customized—contact us for a free quote.

Additional Notes from Designer

PLEASE NOTE! If you order an optional foundation and a materials list, the materials list will NOT include the optional foundation, only the standard foundation. The designer can provide an updated materials list for a fee, so please ask for a quote!

Note: Porch sq ft figures may include any deck sq ft as well.

House Plan Description

With Modern aesthetics at the forefront, this 1,072 square feet Rustic style home encompasses 1 bedrooms, and 1.5 baths. It also offers a multitude of wonderful amenities for your enjoyment:

  • Living Room, Eating Area
  • Master Bedroom with Master Bathroom, Sitting Area

Home Details

Summary
Plan #:120-2797
Starting at:$1055.00
Floors:2
Bedrooms:1
Full Baths:1
Half Baths:0
Garage:
Square Footage
Heated Area:1072 Sq. Ft.
First Floor:558 Sq. Ft.
Second Floor:514 Sq. Ft.
Unheated Area:
Porch:259 Sq. Ft.
Dimensions
Width:21' 8''
Depth:38' 6''
Architectural Styles
Exterior Wall Material
Rock/StoneWood SidingLap Siding
Roofing Type
Flat
Roofing Material
Other Composites
Ceiling Height
10 Foot Ceiling9 Foot Ceiling
Special Feature
Family RoomColor PhotosStorageSecond Level LaundryOpen Floor PlanInterior Photos
Exterior Wall Framing
2x4
Building Lot Type
Narrow Lot Design
Kitchen Features
Kitchen IslandNook/Breakfast Area
Porches and Exterior Features
Covered Rear Patio
Master Suite Features
Master BathroomSitting AreaSecond Floor Master

What’s Included

Most plan sets include the following:

icon text-secondary-400 includedCover Page. Each home plan features the front elevation and informative reference sections including, general notes and design criteria*, abbreviations, and symbols for your plan.

icon text-secondary-400 includedElevations. Scaled elevations for the front, rear, and sides are provided. All elevations are detailed and an aerial view of the roof is provided.

icon text-secondary-400 includedFoundations. Foundations are fully engineered for each design, whether slab or basement.

icon text-secondary-400 includedMain Level Floor Plan

icon text-secondary-400 includedSecond Level Floor Plan

icon text-secondary-400 includedElectrical layout

icon text-secondary-400 includedWall & Stair Sections

What’s Not Included

These items are  NOT included:

icon text-secondary-400 includedArchitectural or Engineering Stamp - handled locally if required.

icon text-secondary-400 includedSite Plan - handled locally when required.

icon text-secondary-400 includedMechanical Drawings (location of heating and air equipment and ductwork) - your subcontractors handle this.

icon text-secondary-400 includedPlumbing Drawings (drawings showing the actual plumbing pipe sizes and locations) - your subcontractors handle this.

icon text-secondary-400 includedEnergy calculations - handled locally when required.

Related House Plans

Plan Collection
Plan Collection
Plan Collection
Plan#196-1049
Starting at$695
820
Sq Ft
2
Story
1
Bed
1
Bath
2
Car
Plan Collection
Plan Collection
Plan Collection
Plan#196-1174
Starting at$810
1309
Sq Ft
2
Story
1
Bed
1.5
Bath
2
Car
Plan Collection
Plan Collection
Plan Collection
Plan#126-1236
Starting at$1395
1324
Sq Ft
2
Story
1
Bed
1.5
Bath
0
Car
View All

Other Plans By This Designer

Plan Collection
Plan Collection
Plan Collection
Plan#120-2655
Starting at$1005
800
Sq Ft
1
Story
2
Bed
1
Bath
0
Car
Plan Collection
Plan Collection
Plan Collection
Plan#120-2696
Starting at$1105
1642
Sq Ft
1
Story
3
Bed
2.5
Bath
2
Car
Plan Collection
Plan Collection
Plan Collection
Plan#120-1117
Starting at$1105
1699
Sq Ft
2
Story
3
Bed
2.5
Bath
2
Car