1-Bedroom, 1220 Sq Ft Modern Plan with Second Level Laundry

Front elevation of Modern home (ThePlanCollection: House Plan #196-1173)

Images/Plans copyrighted by designer. Photos may reflect homeowner modifications.

About House Plan #196-1173

Sq Ft
1220
Sq Ft
Bedrooms
1
Bedrooms
Bathroom
1
Baths
Half Baths
1
Half Baths
Bedrooms
2
Cars
Bedrooms
2
Stories
Bedrooms
36' 0'
Width
Bedrooms
30
Depth
Starting at$1025.00What's included
STEP 1Bedrooms
STEP 2Bedrooms
STEP 3Bedrooms

Subtotal:$0
Plan Collection

How much will it cost to build?

Estimate your costs based on your location and materials.

Free Cost Instant Estimator

Floor Plans

Floor Plan Main Level
Floor Plan Main Level
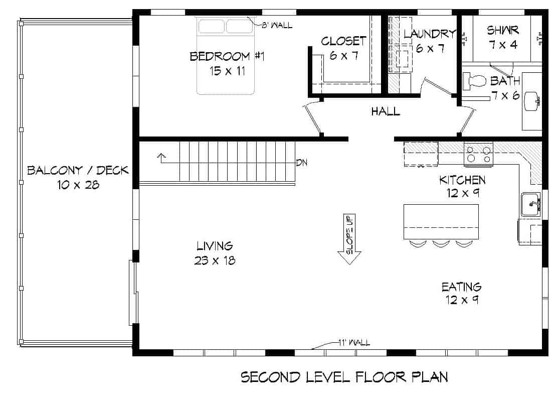
Floor Plan Upper Level
Floor Plan Upper Level
Plan Collection

Can I modify this plan?

Yes! This plan can be customized—contact us for a free quote.

Additional Notes from Designer

NOTE FROM DESIGNER REGARDING PLAN PURCHASES: 80% of a 5 set purchase price can be applied to any PDF or CAD license upgrade. Additionally, 80% of PDF Study purchase price can be applied to any CAD or PDF license upgrade.

House Plan Description

This Modern style house would be the perfect home for retirement, vacation getaway or a starter home! There is definitely no wasted space in this cutie home. This 2-story floor plan has 1220 square feet of living space and includes 1 bedroom. 

Home Details

Summary
Plan #:196-1173
Starting at:$1025.00
Floors:2
Bedrooms:1
Full Baths:1
Half Baths:1
Garage:
Square Footage
Heated Area:1220 Sq. Ft.
First Floor:140 Sq. Ft.
Second Floor:1080 Sq. Ft.
Unheated Area:
Garage:940 Sq. Ft.
Dimensions
Architectural Styles
Exterior Wall Material
Stucco
Roofing Type
Flat
Roof Pitch
Other
Ceiling Height
10 Foot Ceiling8 Foot Ceiling11 Foot Ceiling
Special Feature
Family RoomBalconySecond Level LaundryOpen Floor Plan
Garage Type
Attached GarageFront Entry
Exterior Wall Framing
2x6
Kitchen Features
Kitchen IslandNook/Breakfast AreaPeninsula/Eating BarEat-In Kitchen

What’s Included

Most plan sets include the following:

What’s Not Included

These items are  NOT included:

Related House Plans

Plan Collection
Plan Collection
Plan Collection
Plan#138-1274
Starting at$700
1086
Sq Ft
2
Story
1
Bed
1.5
Bath
2
Car
Plan Collection
Plan Collection
Plan Collection
Plan#138-1275
Starting at$700
1091
Sq Ft
2
Story
1
Bed
1
Bath
2
Car
Plan Collection
Plan Collection
Plan Collection
Plan#158-1094
Starting at$755
976
Sq Ft
2
Story
1
Bed
1
Bath
0
Car
View All

Other Plans By This Designer

Plan Collection
Plan Collection
Plan Collection
Plan#196-1211
Starting at$695
650
Sq Ft
2
Story
1
Bed
1
Bath
2
Car
Plan Collection
Plan Collection
Plan Collection
Plan#196-1196
Starting at$810
1500
Sq Ft
1
Story
2
Bed
2
Bath
3
Car
Plan Collection
Plan Collection
Plan Collection
Plan#196-1216
Starting at$845
1727
Sq Ft
2
Story
2
Bed
2
Bath
2
Car