Barn/Barndominium with 5700 Unfinished Sq Ft and Sundeck

Front elevation of Barn Style home (ThePlanCollection: House Plan #161-1168)

Images/Plans copyrighted by designer. Photos may reflect homeowner modifications.

About House Plan #161-1168

Sq Ft
1
Sq Ft
Bedrooms
0
Bedrooms
Bathroom
0
Baths
Half Baths
0
Half Baths
Bedrooms
0
Cars
Bedrooms
2
Stories
Bedrooms
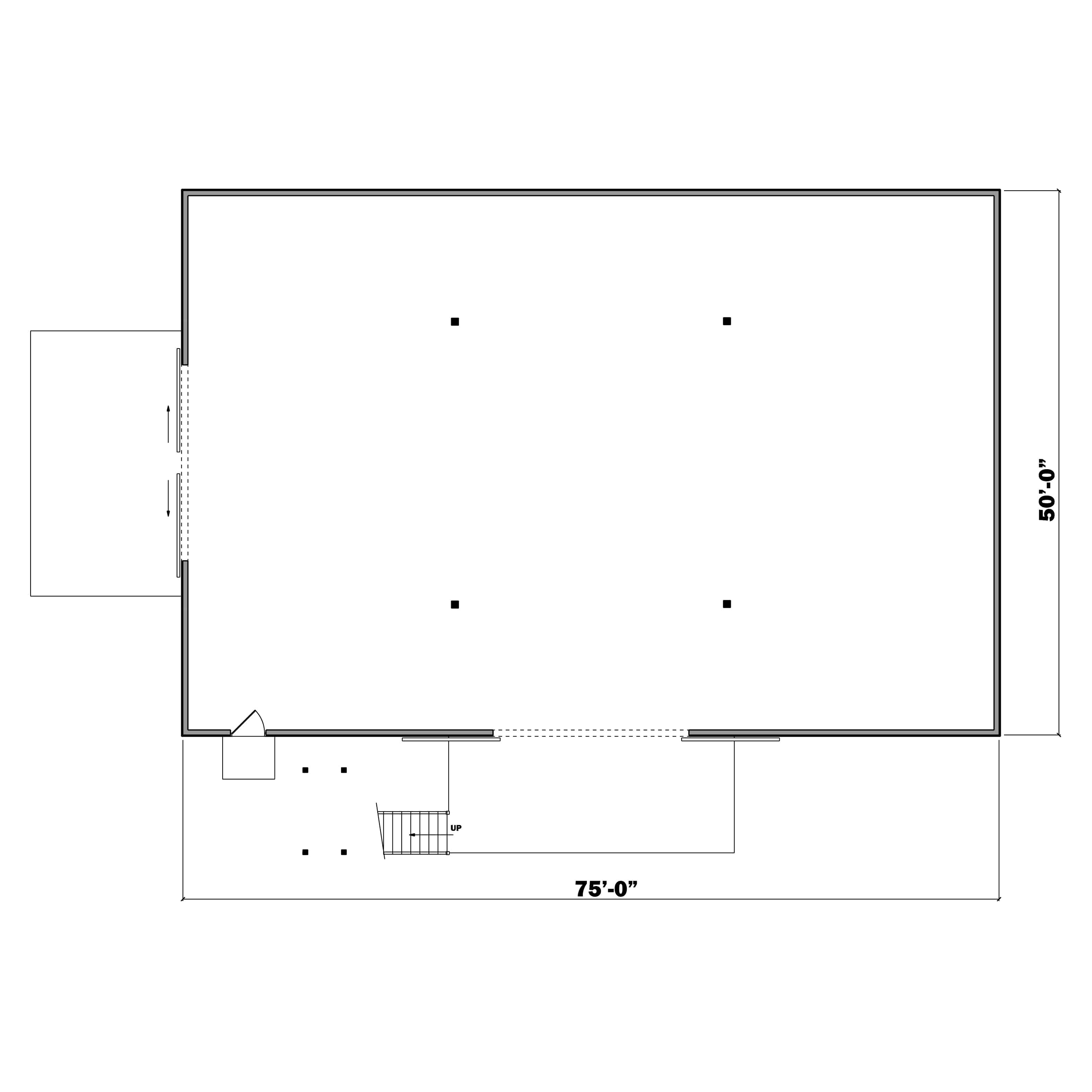
75' 0'
Width
Bedrooms
61
Depth
Starting at$1100.00What's included
STEP 1Bedrooms
STEP 2Bedrooms
STEP 3Bedrooms

Subtotal:$0
Plan Collection

How much will it cost to build?

Estimate your costs based on your location and materials.

Free Cost Instant Estimator

Floor Plans

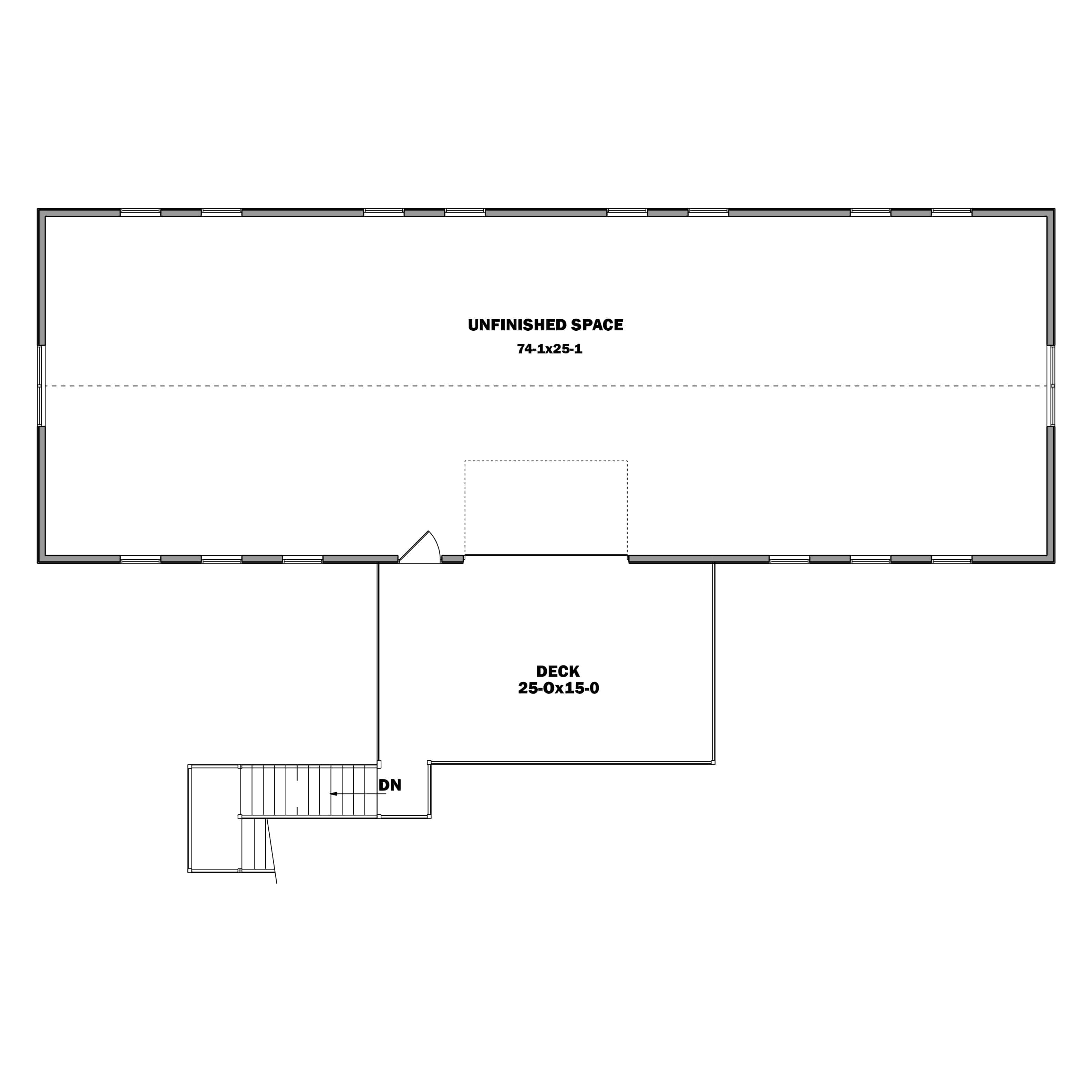
Main Level
Main Level
Upper Level
Upper Level
Plan Collection

Can I modify this plan?

Yes! This plan can be customized—contact us for a free quote.

Additional Notes from Designer

PLEASE NOTE! This designer's plans do NOT come with framing!

Deck has 375 sq ft.

House Plan Description

This stylish 2-story barndominium is worth a closer look! With 5700 square feet of unfinished space, you can truly make this your own. The first floor has 2 large barn doors, easy for tractor equipment, cars, or horses to get in and out. Or maybe you want the first floor for a workshop? The second floor is just waiting for you to finish it as your own - keep it as storage or make it your home above your workshop. With a lovely deck off the second floor, it would be a great place to relax. The first floor has 14'3" ceiling height and the second floor has 8'.

Home Details

Summary
Plan #:161-1168
Starting at:$1100.00
Floors:2
Bedrooms:0
Full Baths:0
Half Baths:0
Garage:
Square Footage
Heated Area:1 Sq. Ft.
Unheated Area:
First Floor:3750 Sq. Ft.
Second Floor:1950 Sq. Ft.
Dimensions
Architectural Styles
Exterior Wall Material
Vinyl SidingBrickWood Siding
Roofing Type
Gable
Roofing Material
Metal
Roof Pitch
8/12
Ceiling Height
8 Foot Ceiling
Exterior Wall Framing
2x6
Porches and Exterior Features
Sundeck

What’s Included

Most plan sets include the following:

icon text-secondary-400 includedExterior elevations

icon text-secondary-400 includedMain Floor plan

icon text-secondary-400 includedArchitectural’ Foundation Plan

icon text-secondary-400 includedArchitectural’ Roof Plan

icon text-secondary-400 includedSections

icon text-secondary-400 includedMain Floor Electrical Plan

icon text-secondary-400 includedNo Framing

What’s Not Included

These items are  NOT included:

icon text-secondary-400 includedArchitectural or Engineering Stamp - handled locally if required.

icon text-secondary-400 includedSite Plan - handled locally when required.

icon text-secondary-400 includedPlumbing Drawings (drawings showing the actual plumbing pipe sizes and locations) - your subcontractors handle this.

icon text-secondary-400 includedEnergy calculations - handled locally when required.

Related House Plans

Plan Collection
Plan Collection
Plan Collection
Plan#108-2092
Starting at$350
1
Sq Ft
2
Story
0
Bed
0
Bath
2
Car
View All

Other Plans By This Designer

Plan Collection
Plan Collection
Plan Collection
Plan#161-1145
Starting at$2650
3907
Sq Ft
2
Story
4
Bed
3.5
Bath
3
Car
Plan Collection
Plan Collection
Plan Collection
Plan#161-1077
Starting at$4500
6563
Sq Ft
2
Story
5
Bed
5.5
Bath
5
Car
Plan Collection
Plan Collection
Plan Collection
Plan#161-1084
Starting at$4200
5170
Sq Ft
2
Story
5
Bed
5.5
Bath
3
Car