4-Bedroom, 4381 Sq Ft Colonial Plan with Huge Walk-in Kitchen Pantry

Colonial home (ThePlanCollection: Plan #206-1016)

Images/Plans copyrighted by designer. Photos may reflect homeowner modifications.

About House Plan #206-1016

Sq Ft
4381
Sq Ft
Bedrooms
4
Bedrooms
Bathroom
4
Baths
Half Baths
1
Half Baths
Bedrooms
3
Cars
Bedrooms
1
Stories
Bedrooms
99' 7'
Width
Bedrooms
95
Depth
Starting at$2195.00What's included
STEP 1Bedrooms
STEP 2Bedrooms
STEP 3Bedrooms

Subtotal:$0
Plan Collection

How much will it cost to build?

Estimate your costs based on your location and materials.

Free Cost Instant Estimator

Floor Plans

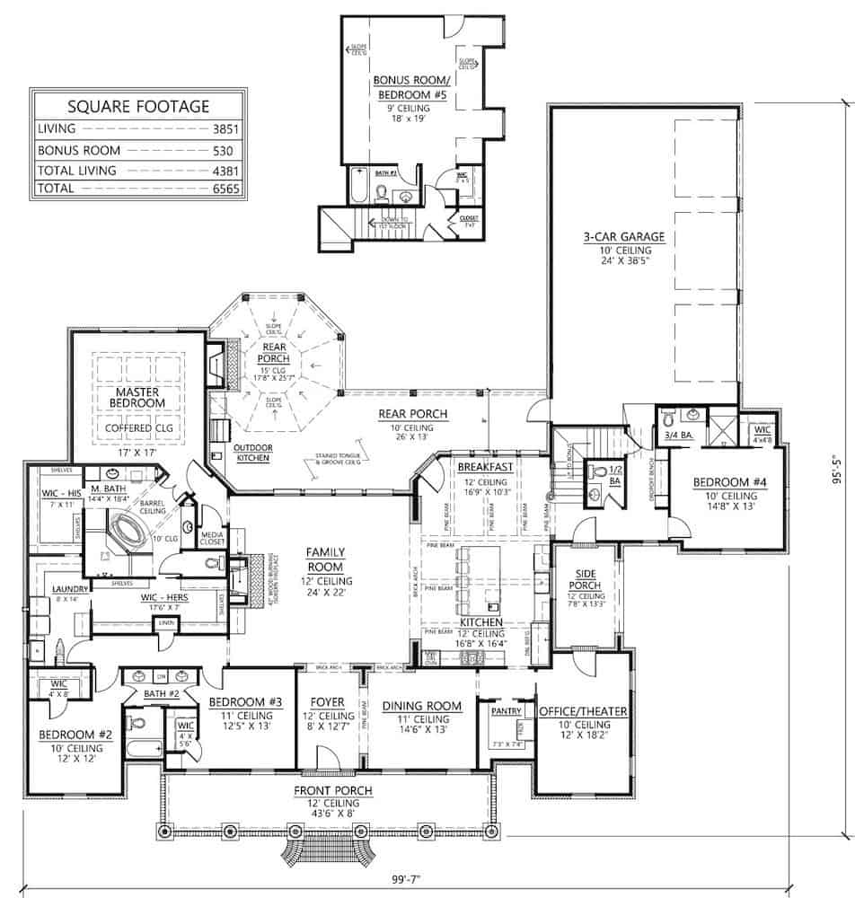
Floor Plan Main Level
Floor Plan Main Level
Plan Collection

Can I modify this plan?

Yes! This plan can be customized—contact us for a free quote.

House Plan Description

You're sure to  be very impressed as you approach this luxurious Southern Colonial style home, which will surely satisfy all members of the family with its thoughtful design. The traditionally styled home has 4381 square feet of heated and cooled living space with 4 bedrooms and 4.5 bathrooms.

Home Details

Summary
Plan #:206-1016
Starting at:$2195.00
Floors:1
Bedrooms:4
Full Baths:4
Half Baths:1
Garage:
Square Footage
Heated Area:4381 Sq. Ft.
First Floor:3851 Sq. Ft.
Bonus Room:530 Sq. Ft.
Unheated Area:
Garage:1037 Sq. Ft.
Dimensions
Width:99' 7''
Depth:95' 5''
Architectural Styles
Exterior Wall Material
Brick
Roofing Type
Hip
Roofing Material
Asphalt Shingles
Roof Pitch
9/12
Ceiling Height
10 Foot Ceiling9 Foot Ceiling11 Foot Ceiling12 Foot Ceiling
Special Feature
FireplaceDining RoomHome OfficeMud RoomBonus RoomFamily RoomMain Level LaundrySplit BathroomStorageOpen Floor PlanL-Shaped
Garage Type
Attached GarageSide Entry
Fireplaces
One Fireplace
Exterior Wall Framing
2x4
Building Lot Type
Corner Lot
Kitchen Features
Kitchen IslandNook/Breakfast AreaWalk-in PantryOutdoor KitchenPeninsula/Eating BarEat-In Kitchen
Porches and Exterior Features
Covered Front PorchCovered Rear PorchFriend's Entry
Master Suite Features
Main Floor MasterMaster BathroomWalk In Closet

What’s Included

Most plan sets include the following:

icon text-secondary-400 includedFloor plan(s)

icon text-secondary-400 includedWindow & door schedules

icon text-secondary-400 includedElectrical layout

icon text-secondary-400 includedExterior elevations

icon text-secondary-400 includedFoundation plan

icon text-secondary-400 includedTypical wall section

icon text-secondary-400 includedFoundation section details

icon text-secondary-400 includedRoof plans

icon text-secondary-400 includedMiscellaneous details

icon text-secondary-400 includedKitchen & bath cabinet elevations

icon text-secondary-400 includedBuilding Cross-Section

What’s Not Included

These items are  NOT included:

icon text-secondary-400 includedArchitectural or Engineering Stamp - handled locally if required.

icon text-secondary-400 includedSite Plan - handled locally when required.

icon text-secondary-400 includedMechanical Drawings (location of heating and air equipment and duct work) - your subcontractors handle this.

icon text-secondary-400 includedPlumbing Drawings (drawings showing the actual plumbing pipe sizes and locations) - your subcontractors handle this.

icon text-secondary-400 includedEnergy calculations - handled locally when required.

Related House Plans

Plan Collection
Plan Collection
Plan Collection
Plan#153-1095
Starting at$1650
3766
Sq Ft
1
Story
4
Bed
4
Bath
3
Car
Plan Collection
Plan Collection
Plan Collection
Plan#139-1089
Starting at$755
3388
Sq Ft
1
Story
4
Bed
4
Bath
3
Car
Plan Collection
Plan Collection
Plan Collection
Plan#175-1086
Starting at$1900
3800
Sq Ft
1
Story
4
Bed
4
Bath
3
Car
View All

Other Plans By This Designer

Plan Collection
Plan Collection
Plan Collection
Plan#206-1039
Starting at$1245
2230
Sq Ft
1
Story
3
Bed
2.5
Bath
2
Car
Plan Collection
Plan Collection
Plan Collection
Plan#206-1046
Starting at$1195
1817
Sq Ft
1
Story
3
Bed
2
Bath
2
Car
Plan Collection
Plan Collection
Plan Collection
Plan#206-1035
Starting at$1295
2716
Sq Ft
1
Story
4
Bed
3
Bath
3
Car