2-4 Bedroom, 1378 - 2306 Sq Ft Ranch Plan with Fireplace

Prairie-Inspired Contemporary Ranch home (ThePlanCollection: Plan #211-1006)

Images/Plans copyrighted by designer. Photos may reflect homeowner modifications.

About House Plan #211-1006

Sq Ft
2306
Sq Ft
Bedrooms
4
Bedrooms
Bathroom
3
Baths
Half Baths
0
Half Baths
Bedrooms
2
Cars
Bedrooms
1
Stories
Bedrooms
38' 6'
Width
Bedrooms
58
Depth
Starting at$900.00What's included
STEP 1Bedrooms
STEP 2Bedrooms
STEP 3Bedrooms

Subtotal:$0
Plan Collection

How much will it cost to build?

Estimate your costs based on your location and materials.

Free Cost Instant Estimator

Floor Plans

Floor Plan Main Level
Floor Plan Main Level
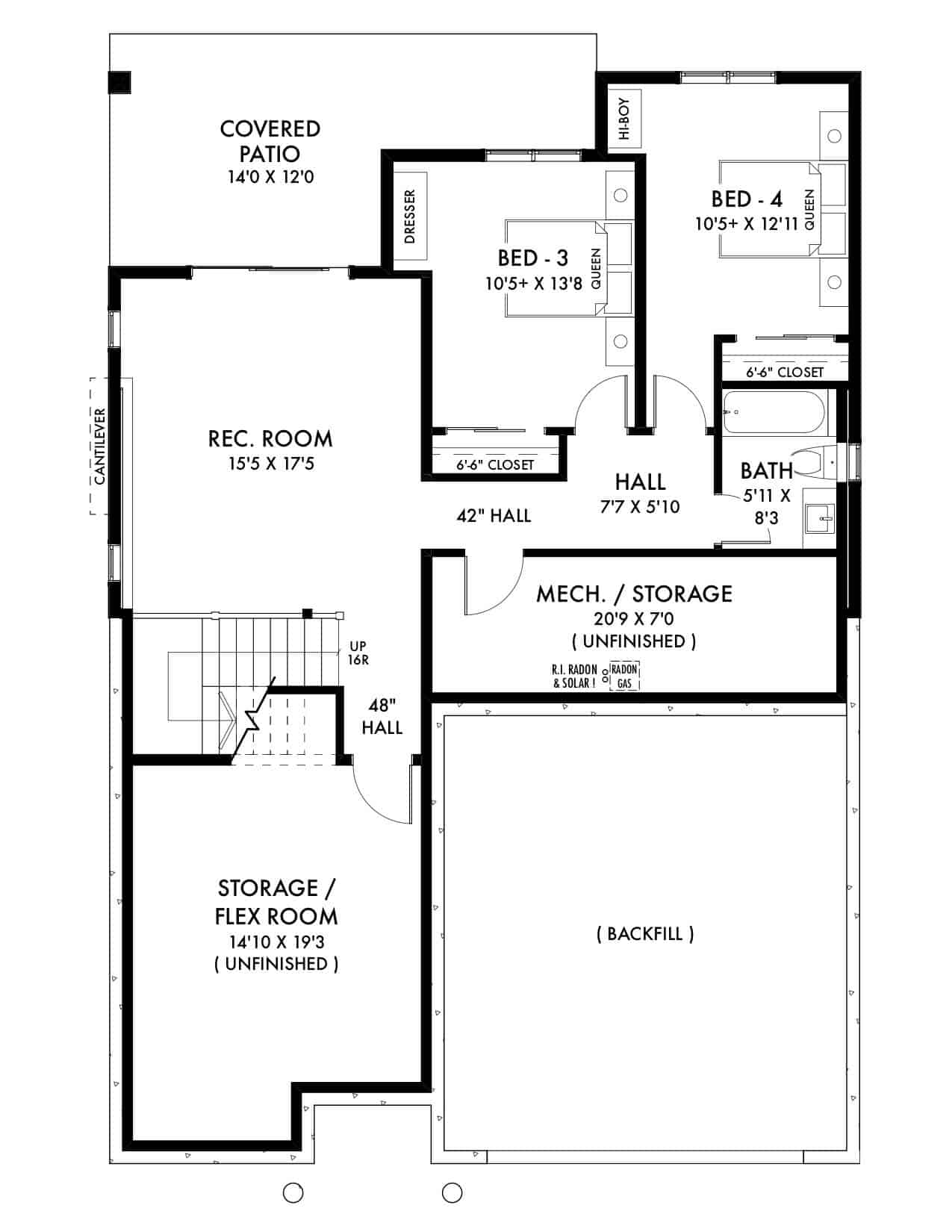
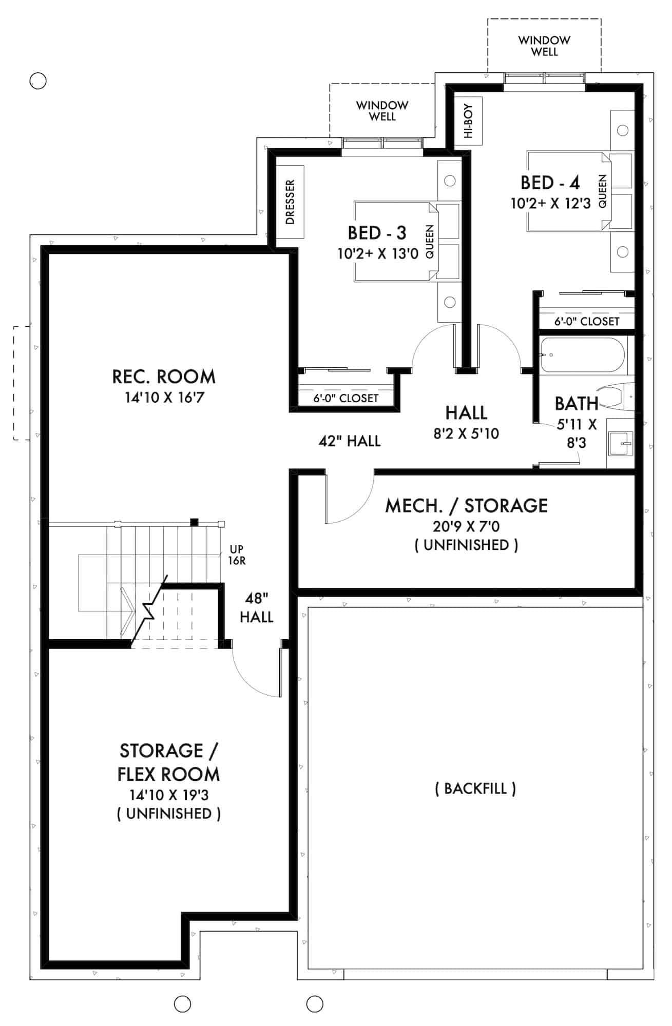
Basement Option Layout
Basement Option Layout
Floor Plan Basement
Floor Plan Basement
Plan Collection

Can I modify this plan?

Yes! This plan can be customized—contact us for a free quote.

Additional Notes from Designer

When ordering RRR, please know that it could take an additional 3-5 business days to complete BEFORE your order is sent out, regardless of the package ordered. Some of the plans with a RRR will requite drafting and for these specific plans, they will be available and completed March 20th, 2023

Was formerly listed as Plan # 177-1053.

House Plan Description

If you have an eye for an excellent design you'll love this ranch with Prairie Style-inspired details. Upon stepping up to the front of the house, a small covered porch really a portico shelters the main entrance door. Enter the house, and straight back you'll come to its open floor plan of the family room, dining area, and kitchen, providing a wide-open feeling. Enter through the garage, and you'll find a cozy mudroom with cubbies. Truly a comfortable house design both inside out and a must-have for a small...

Home Details

Summary
Plan #:211-1006
Starting at:$900.00
Floors:1
Bedrooms:4
Full Baths:3
Half Baths:0
Garage:
Square Footage
Heated Area:2306 Sq. Ft.
Basement:928 Sq. Ft.
First Floor:1378 Sq. Ft.
Unheated Area:
Basement:431 Sq. Ft.
Dimensions
Width:38' 6''
Architectural Styles
Exterior Wall Material
Vinyl SidingStuccoRock/StoneWood Siding
Roofing Type
Hip
Roofing Material
Asphalt Shingles
Roof Pitch
5/12
Ceiling Height
9 Foot Ceiling
Special Feature
FireplaceMud RoomFamily RoomMain Level LaundryStorageDenOpen Floor Plan
Garage Type
Attached GarageFront Entry
Fireplaces
One Fireplace
Exterior Wall Framing
2x6
Building Lot Type
Narrow Lot Design
Kitchen Features
Kitchen Island
Porches and Exterior Features
Covered Rear PorchPortico
Master Suite Features
Main Floor MasterMaster BathroomWalk In ClosetSplit Master Bedroom

What’s Included

Most plan sets include the following:

icon text-secondary-400 includedFillable site plan, rendering, and general notations page

icon text-secondary-400 includedFloor plans

icon text-secondary-400 includedFoundation plan

icon text-secondary-400 includedRoof plan

icon text-secondary-400 includedElevations

icon text-secondary-400 includedminimum of 2 sections + 1 typical wall section

icon text-secondary-400 includedElectrical plan

What’s Not Included

These items are  NOT included:

icon text-secondary-400 includedArchitectural or Engineering Stamp - handled locally if required.

icon text-secondary-400 includedSite Plan - handled locally when required.

icon text-secondary-400 includedMechanical Drawings (location of heating and air equipment and ductwork) - your subcontractors handle this.

icon text-secondary-400 includedPlumbing Drawings (drawings showing the actual plumbing pipe sizes and locations) - your subcontractors handle this.

icon text-secondary-400 includedEnergy Calculations - handled locally when required.

icon text-secondary-400 includedNo Framing

Related House Plans

Plan Collection
Plan Collection
Plan Collection
Plan#142-1102
Starting at$1395
2639
Sq Ft
1
Story
4
Bed
3
Bath
2
Car
Plan Collection
Plan Collection
Plan Collection
Plan#146-2173
Starting at$1015
2464
Sq Ft
1
Story
4
Bed
3
Bath
3
Car
Plan Collection
Plan Collection
Plan Collection
Plan#142-1005
Starting at$1395
2500
Sq Ft
1
Story
4
Bed
3
Bath
2
Car
View All

Other Plans By This Designer

Plan Collection
Plan Collection
Plan Collection
Plan#211-1001
Starting at$850
967
Sq Ft
1
Story
3
Bed
2
Bath
0
Car
Plan Collection
Plan Collection
Plan Collection
Plan#211-1053
Starting at$950
1626
Sq Ft
1
Story
3
Bed
2.5
Bath
2
Car
Plan Collection
Plan Collection
Plan Collection
Plan#211-1038
Starting at$900
1543
Sq Ft
1
Story
3
Bed
2
Bath
2
Car