4-Bedroom, 2156 Sq Ft Country Plan with Kitchen Island

Front elevation of Country home (ThePlanCollection: House Plan #123-1039)

Images/Plans copyrighted by designer. Photos may reflect homeowner modifications.

About House Plan #123-1039

Sq Ft
2156
Sq Ft
Bedrooms
4
Bedrooms
Bathroom
3
Baths
Half Baths
0
Half Baths
Bedrooms
2
Cars
Bedrooms
1
Stories
Bedrooms
62' 0'
Width
Bedrooms
72
Depth
Starting at$1050.00What's included
STEP 1Bedrooms
STEP 2Bedrooms
STEP 3Bedrooms

Subtotal:$0
Plan Collection

How much will it cost to build?

Estimate your costs based on your location and materials.

Free Cost Instant Estimator

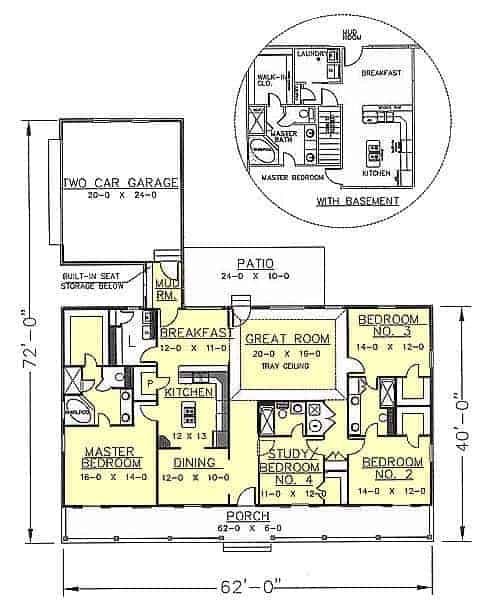
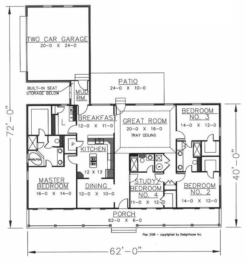
Floor Plans

Floor Plan Main Level
Floor Plan Main Level
Basement Option Stair Location
Basement Option Stair Location
Plan Collection

Can I modify this plan?

Yes! This plan can be customized—contact us for a free quote.

Additional Notes from Designer

PLEASE NOTE! When ordering options such as an optional foundation, RRR or 2x4 or 2x6 conversions, the designer may require an additional 2-5 business days to create it. Please keep this in mind when ordering.

House Plan Description

This attractive farmhouse-style home with classic country detailing (Plan #123-1039) has 2156 square feet of living space. The spacious 1-story floor plan includes 4 bedrooms. Enjoy the formal dining room, optional study or office, and large, covered porch. The optional basement plan gives you the flexibility of more room should you need it.  

 

Home Details

Summary
Plan #:123-1039
Starting at:$1050.00
Floors:1
Bedrooms:4
Full Baths:3
Half Baths:0
Garage:
Square Footage
Heated Area:2156 Sq. Ft.
First Floor:2156 Sq. Ft.
Unheated Area:
Garage:480 Sq. Ft.
Dimensions
Architectural Styles
Exterior Wall Material
Wood Siding
Roofing Type
Gable/Dormer
Roofing Material
Asphalt Shingles
Ceiling Height
8 Foot Ceiling
Special Feature
Dining RoomHome OfficeMud RoomMain Level LaundryColor PhotosSplit BathroomOpen Floor Plan
Garage Type
Attached GarageSide Entry
Exterior Wall Framing
2x4
Building Lot Type
Flat Site
Kitchen Features
Kitchen IslandNook/Breakfast AreaWalk-in PantryPeninsula/Eating Bar
Porches and Exterior Features
Covered Front PorchPatio
Master Suite Features
Main Floor MasterMaster BathroomWalk In ClosetSplit Master Bedroom

What’s Included

Most plan sets include the following:

icon text-secondary-400 includedFloor plans - Included with your plans will be a detailed floor plan at 1/4" scale with a window and door schedule.

icon text-secondary-400 includedFoundation

icon text-secondary-400 includedElectrical Layout

icon text-secondary-400 includedExterior and Interior Elevations

icon text-secondary-400 includedBuilding Sections

icon text-secondary-400 includedDetails and Typical Specifications

icon text-secondary-400 includedSheet

What’s Not Included

These items are  NOT included:

icon text-secondary-400 includedArchitectural or Engineering Stamp - handled locally if required.

icon text-secondary-400 includedSite Plan - handled locally when required.

icon text-secondary-400 includedMechanical Drawings (location of heating and air equipment and ductwork) - your subcontractors handle this.

icon text-secondary-400 includedPlumbing Drawings (drawings showing the actual plumbing pipe sizes and locations) - your subcontractors handle this.

icon text-secondary-400 includedEnergy calculations - handled locally when required.

Related House Plans

Plan Collection
Plan Collection
Plan Collection
Plan#142-1102
Starting at$1395
2639
Sq Ft
1
Story
4
Bed
3
Bath
2
Car
Plan Collection
Plan Collection
Plan Collection
Plan#146-2173
Starting at$1015
2464
Sq Ft
1
Story
4
Bed
3
Bath
3
Car
Plan Collection
Plan Collection
Plan Collection
Plan#142-1005
Starting at$1395
2500
Sq Ft
1
Story
4
Bed
3
Bath
2
Car
View All

Other Plans By This Designer

Plan Collection
Plan Collection
Plan Collection
Plan#123-1112
Starting at$980
1611
Sq Ft
1
Story
3
Bed
2
Bath
2
Car
Plan Collection
Plan Collection
Plan Collection
Plan#123-1100
Starting at$850
1311
Sq Ft
1
Story
3
Bed
2
Bath
0
Car
Plan Collection
Plan Collection
Plan Collection
Plan#123-1116
Starting at$850
1035
Sq Ft
1
Story
3
Bed
2
Bath
0
Car