4-Bedroom, 2763 Sq Ft Farmhouse Plan with Walk-in Kitchen Pantry

Farmhouse style home (ThePlanCollection: Plan #142-1224)

Images/Plans copyrighted by designer. Photos may reflect homeowner modifications.

About House Plan #142-1224

Sq Ft
2763
Sq Ft
Bedrooms
4
Bedrooms
Bathroom
3
Baths
Half Baths
1
Half Baths
Bedrooms
3
Cars
Bedrooms
1
Stories
Bedrooms
89' 8'
Width
Bedrooms
68
Depth
Starting at$1395.00What's included
STEP 1Bedrooms
STEP 2Bedrooms
STEP 3Bedrooms

Subtotal:$0
Plan Collection

How much will it cost to build?

Estimate your costs based on your location and materials.

Free Cost Instant Estimator

Floor Plans

Floor Plan Main Level
Floor Plan Main Level
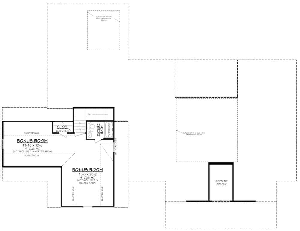
Floor Plan Bonus Room
Floor Plan Bonus Room
Basement Option Stair Location
Basement Option Stair Location
Plan Collection

Can I modify this plan?

Yes! This plan can be customized—contact us for a free quote.

Additional Notes from Designer

On some plans, Basement Foundations, Walkout Basement Foundations & 2x6 Conversions could take up to ONE WEEK to produce. Materials Lists could take up to FOUR WEEKS to produce and they will be for the ORIGINAL plan! Any modifications will NOT be reflected on the Materials List. NOTE FROM DESIGNER: If you purchase a CAD, you will automatically receive the unlimited build license - no need to purchase separately!

House Plan Description

This country farmhouse-inspired home is a great example of a well-designed, roomy house. The open floor plan with defined spaces includes the foyer, Great Room, dining area, kitchen, and keeping room. The impressive master suite boasts an ensuite bath with his-and-her sink vanities, a water closet, soaking tub, and custom shower — plus, there is a wardrobe room-sized closet! Additional perks include a spacious mudroom, large walk-in kitchen pantry, junior bedroom-bath suite with walk-in closet, roomy laundry room, and 3-car garage. In all, the 1-story plan...

Home Details

Summary
Plan #:142-1224
Starting at:$1395.00
Floors:1
Bedrooms:4
Full Baths:3
Half Baths:1
Garage:
Square Footage
Heated Area:2763 Sq. Ft.
First Floor:2763 Sq. Ft.
Unheated Area:
Bonus Room:685 Sq. Ft.
Garage:978 Sq. Ft.
Porch:491 Sq. Ft.
Dimensions
Width:89' 8''
Depth:68' 8''
Architectural Styles
Exterior Wall Material
Vinyl SidingBrickWood Siding
Roofing Type
Gable
Roofing Material
Asphalt Shingles
Roof Pitch
12/124/129/12
Ceiling Height
10 Foot Ceiling9 Foot Ceiling
Special Feature
FireplaceDining RoomMud RoomBonus RoomFamily RoomMain Level LaundryStorageOpen Floor PlanL-Shaped
Garage Type
Attached GarageFront Entry
Fireplaces
One Fireplace
Exterior Wall Framing
2x4
Kitchen Features
Kitchen IslandNook/Breakfast AreaWalk-in PantryPeninsula/Eating Bar
Porches and Exterior Features
Covered Front PorchCovered Rear Porch
Master Suite Features
Main Floor MasterMaster BathroomWalk In ClosetSplit Master Bedroom

What’s Included

Most plan sets include the following:

icon text-secondary-400 includedCover sheet

icon text-secondary-400 includedFoundation plan

icon text-secondary-400 includedDimensional floor plan

icon text-secondary-400 includedExterior views

icon text-secondary-400 includedRoof plan

icon text-secondary-400 includedElectrical layout

icon text-secondary-400 includedWall section(s)

icon text-secondary-400 includedBuilding section(s)

icon text-secondary-400 includedCabinet elevations

What’s Not Included

These items are  NOT included:

icon text-secondary-400 includedArchitectural or Engineering Stamp - handled locally if required.

icon text-secondary-400 includedSite Plan - handled locally when required.

icon text-secondary-400 includedMechanical Drawings (location of heating and air equipment and ductwork) - your subcontractors handle this.

icon text-secondary-400 includedPlumbing Drawings (drawings showing the actual plumbing pipe sizes and locations) - your subcontractors handle this.

icon text-secondary-400 includedEnergy calculations - handled locally when required.

icon text-secondary-400 includedNo Framing

Related House Plans

Plan Collection
Plan Collection
Plan Collection
Plan#142-1102
Starting at$1395
2639
Sq Ft
1
Story
4
Bed
3
Bath
2
Car
Plan Collection
Plan Collection
Plan Collection
Plan#146-2173
Starting at$1015
2464
Sq Ft
1
Story
4
Bed
3
Bath
3
Car
Plan Collection
Plan Collection
Plan Collection
Plan#142-1005
Starting at$1395
2500
Sq Ft
1
Story
4
Bed
3
Bath
2
Car
View All

Other Plans By This Designer

Plan Collection
Plan Collection
Plan Collection
Plan#142-1244
Starting at$1545
3086
Sq Ft
1
Story
4
Bed
3.5
Bath
3
Car
Plan Collection
Plan Collection
Plan Collection
Plan#142-1256
Starting at$1295
1599
Sq Ft
1
Story
3
Bed
2.5
Bath
2
Car
Plan Collection
Plan Collection
Plan Collection
Plan#142-1265
Starting at$1245
1448
Sq Ft
1
Story
2
Bed
2
Bath
1
Car