6-Bedroom, 5130 Sq Ft Cottage Plan with Main Floor Master

Front elevation of Cottage home (ThePlanCollection: House Plan #198-1066)

Images/Plans copyrighted by designer. Photos may reflect homeowner modifications.

About House Plan #198-1066

Sq Ft
5130
Sq Ft
Bedrooms
6
Bedrooms
Bathroom
5
Baths
Half Baths
1
Half Baths
Bedrooms
3
Cars
Bedrooms
2
Stories
Bedrooms
100' 9'
Width
Bedrooms
83
Depth
Starting at$2995.00What's included
STEP 1Bedrooms
STEP 2Bedrooms
STEP 3Bedrooms

Subtotal:$0
Plan Collection

How much will it cost to build?

Estimate your costs based on your location and materials.

Free Cost Instant Estimator

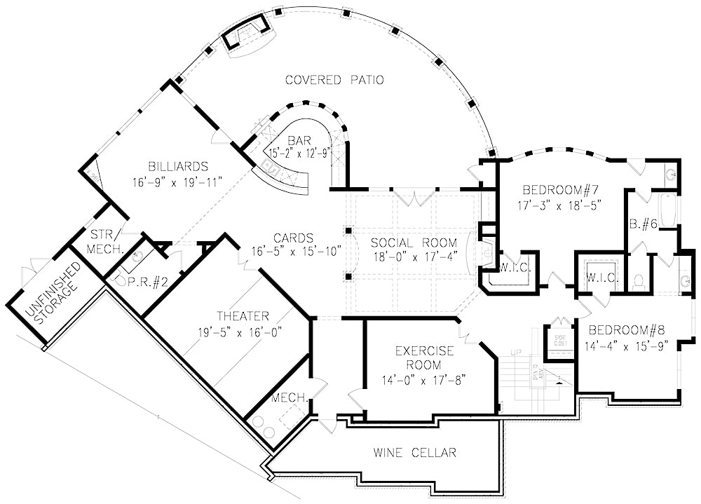
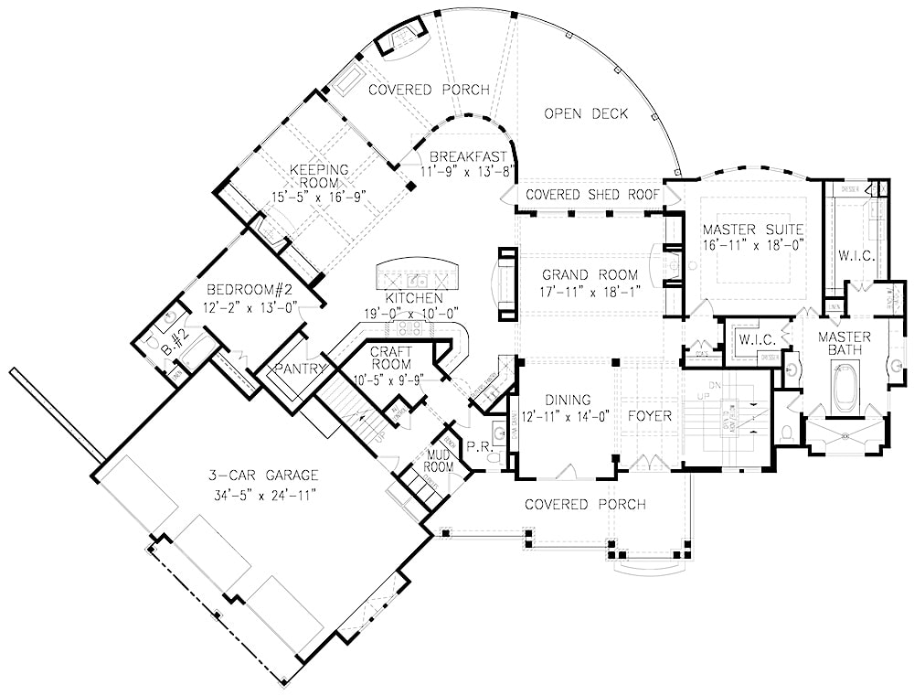
Floor Plans

Floor Plan Main Level
Floor Plan Main Level
Floor Plan Upper Level
Floor Plan Upper Level
Floor Plan Basement
Floor Plan Basement
Plan Collection

Can I modify this plan?

Yes! This plan can be customized—contact us for a free quote.

Additional Notes from Designer

NO Material lists.

House Plan Description

This lovely Cottage style home with Traditional influences (House Plan #198-1066) has 5130 square feet of living space. The 2 story floor plan includes 6 bedrooms.

Home Details

Summary
Plan #:198-1066
Starting at:$2995.00
Floors:2
Bedrooms:6
Full Baths:5
Half Baths:1
Garage:
Square Footage
Heated Area:5130 Sq. Ft.
First Floor:2962 Sq. Ft.
Second Floor:2168 Sq. Ft.
Unheated Area:
Dimensions
Width:100' 9''
Depth:83' 9''
Architectural Styles
Exterior Wall Material
Rock/StoneShakes
Roofing Type
GableHip
Roofing Material
Asphalt Shingles
Ceiling Height
10 Foot Ceiling9 Foot Ceiling
Special Feature
FireplaceDining RoomMud RoomFamily RoomGame RoomColor PhotosSplit BathroomSecond Level LaundryOpen Floor Plan
Garage Type
Attached GarageSide Entry
Fireplaces
Three Fireplaces
Building Lot Type
Corner Lot
Kitchen Features
Kitchen IslandNook/Breakfast AreaWalk-in PantryPeninsula/Eating BarEat-In Kitchen
Porches and Exterior Features
Covered Front PorchCovered Rear Porch
Master Suite Features
Main Floor MasterMaster BathroomWalk In ClosetSplit Master Bedroom

What’s Included

Most plan sets include the following:

icon text-secondary-400 includedExterior elevations

icon text-secondary-400 includedFoundation plan

icon text-secondary-400 includedDetailed floor plans

icon text-secondary-400 includedInterior details

icon text-secondary-400 includedRoof plan

icon text-secondary-400 includedCross-section details

icon text-secondary-400 includedElectrical layout

What’s Not Included

These items are  NOT included:

icon text-secondary-400 includedArchitectural or Engineering Stamp - handled locally if required.

icon text-secondary-400 includedSite Plan - handled locally when required.

icon text-secondary-400 includedMechanical Drawings (location of heating and air equipment and ductwork) - your subcontractors handle this.

icon text-secondary-400 includedPlumbing Drawings (drawings showing the actual plumbing pipe sizes and locations) - your subcontractors handle this.

icon text-secondary-400 includedEnergy calculations - handled locally when required.

Related House Plans

Plan Collection
Plan Collection
Plan Collection
Plan#163-1047
Starting at$1540
3983
Sq Ft
2
Story
6
Bed
5.5
Bath
3
Car
Plan Collection
Plan Collection
Plan Collection
Plan#153-2022
Starting at$3050
6024
Sq Ft
2
Story
6
Bed
5.5
Bath
3
Car
Plan Collection
Plan Collection
Plan Collection
Plan#153-1942
Starting at$2450
6363
Sq Ft
2
Story
6
Bed
5
Bath
5
Car
View All

Other Plans By This Designer

Plan Collection
Plan Collection
Plan Collection
Plan#198-1053
Starting at$2195
2498
Sq Ft
1.5
Story
3
Bed
3
Bath
3
Car
Plan Collection
Plan Collection
Plan Collection
Plan#198-1054
Starting at$2630
4376
Sq Ft
2
Story
4
Bed
4.5
Bath
3
Car
Plan Collection
Plan Collection
Plan Collection
Plan#198-1060
Starting at$1985
3970
Sq Ft
2
Story
5
Bed
4.5
Bath
2
Car