4-Bedroom, 3162 Sq Ft Cottage Plan with Split Master Bedroom

Cottage style vacation home plan (ThePlanCollection: House Plan #160-1036)

Images/Plans copyrighted by designer. Photos may reflect homeowner modifications.

About House Plan #160-1036

Sq Ft
3162
Sq Ft
Bedrooms
4
Bedrooms
Bathroom
3
Baths
Half Baths
0
Half Baths
Bedrooms
0
Cars
Bedrooms
2
Stories
Bedrooms
44' 0'
Width
Bedrooms
46
Depth
Starting at$945.00What's included
STEP 1Bedrooms
STEP 2Bedrooms
STEP 3Bedrooms

Subtotal:$0
Plan Collection

How much will it cost to build?

Estimate your costs based on your location and materials.

Free Cost Instant Estimator

Floor Plans

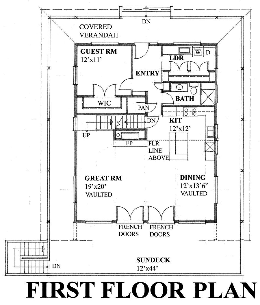
Floor Plan Main Level
Floor Plan Main Level
Floor Plan Upper Level
Floor Plan Upper Level
Lower Level
Lower Level
Plan Collection

Can I modify this plan?

Yes! This plan can be customized—contact us for a free quote.

Additional Notes from Designer

For our Ontario customers - BCIN is available for this designer's plans. Please submit a modification request to receive a free quote.

House Plan Description

This charming Cottage style home plan with Vacation Homes influences (House Plan #160-1036) has 3162 square feet of living space. The 2 story floor plan includes 4 bedrooms.

Home Details

Summary
Plan #:160-1036
Starting at:$945.00
Floors:2
Bedrooms:4
Full Baths:3
Half Baths:0
Garage:
Square Footage
Heated Area:3162 Sq. Ft.
Basement:1280 Sq. Ft.
First Floor:1280 Sq. Ft.
Second Floor:602 Sq. Ft.
Unheated Area:
Porch:528 Sq. Ft.
Dimensions
Architectural Styles
Exterior Wall Material
Vinyl SidingWood Siding
Roofing Type
GableHip
Roofing Material
Metal
Roof Pitch
4/129/12
Ceiling Height
8 Foot Ceiling11 Foot Ceiling
Special Feature
FireplaceGuest RoomGame RoomMain Level LaundryVaulted CeilingsOpen Floor Plan
Fireplaces
One Fireplace
Exterior Wall Framing
2x6
Building Lot Type
Narrow Lot Design
Kitchen Features
Kitchen IslandWalk-in PantryPeninsula/Eating Bar
Porches and Exterior Features
Sundeck
Master Suite Features
Master BathroomWalk In ClosetSecond Floor MasterSplit Master Bedroom

What’s Included

Most plan sets include the following:

icon text-secondary-400 includedCover sheet with rendering and art floor plans.

icon text-secondary-400 includedGeneral notes and specifications.

icon text-secondary-400 includedFoundation plan

icon text-secondary-400 includedMain floor plan

icon text-secondary-400 includedSecond-floor plan (if applicable)

icon text-secondary-400 includedStructural floor/Roof information

icon text-secondary-400 includedElectrical layout

icon text-secondary-400 includedMinimum of two cross-sectionsDetails

icon text-secondary-400 includedExterior ElevationsGeneric detail sheet

What’s Not Included

These items are  NOT included:

icon text-secondary-400 includedArchitectural or Engineering Stamp - handled locally if required.

icon text-secondary-400 includedSite Plan - handled locally when required.

icon text-secondary-400 includedMechanical Drawings (location of heating and air equipment and ductwork) - your subcontractors handle this.

icon text-secondary-400 includedPlumbing Drawings (drawings showing the actual plumbing pipe sizes and locations) - your subcontractors handle this.

icon text-secondary-400 includedEnergy calculations - handled locally when required.

Related House Plans

Plan Collection
Plan Collection
Plan Collection
Plan#153-1020
Starting at$1200
2373
Sq Ft
2
Story
4
Bed
3
Bath
3
Car
Plan Collection
Plan Collection
Plan Collection
Plan#116-1080
Starting at$0
3885
Sq Ft
2
Story
4
Bed
3.5
Bath
3
Car
Plan Collection
Plan Collection
Plan Collection
Plan#161-1067
Starting at$2400
3897
Sq Ft
2
Story
4
Bed
3.5
Bath
3
Car
View All

Other Plans By This Designer

Plan Collection
Plan Collection
Plan Collection
Plan#160-1015
Starting at$945
1370
Sq Ft
2
Story
3
Bed
2
Bath
0
Car
Plan Collection
Plan Collection
Plan Collection
Plan#160-1007
Starting at$945
1154
Sq Ft
2
Story
2
Bed
2
Bath
0
Car
Plan Collection
Plan Collection
Plan Collection
Plan#160-1011
Starting at$945
1333
Sq Ft
2
Story
2
Bed
2
Bath
0
Car