3-Bedroom, 1920 Sq Ft Ranch Plan with Eat-In Kitchen

Main image for house plan # 20425

Images/Plans copyrighted by designer. Photos may reflect homeowner modifications.

About House Plan #161-1009

Sq Ft
1920
Sq Ft
Bedrooms
3
Bedrooms
Bathroom
1
Baths
Half Baths
0
Half Baths
Bedrooms
2
Cars
Bedrooms
1
Stories
Bedrooms
60' 0'
Width
Bedrooms
30
Depth
Starting at$1450.00What's included
STEP 1Bedrooms
STEP 2Bedrooms
STEP 3Bedrooms

Subtotal:$0
Plan Collection

How much will it cost to build?

Estimate your costs based on your location and materials.

Free Cost Instant Estimator

Floor Plans

Main Level
Main Level
Plan Collection

Can I modify this plan?

Yes! This plan can be customized—contact us for a free quote.

Additional Notes from Designer

PLEASE NOTE! This designer's plans do NOT come with framing!

House Plan Description

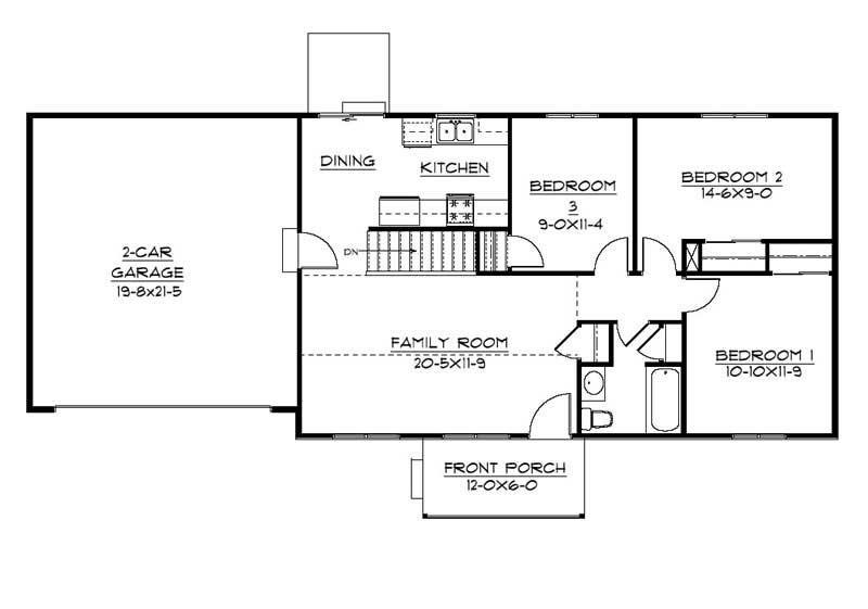
This house plan features a long family room with lots of space. It has a quaint kitchen and dining room. The bedrooms also boast large square footage.

Home Details

Summary
Plan #:161-1009
Starting at:$1450.00
Floors:1
Bedrooms:3
Full Baths:1
Half Baths:0
Garage:
Square Footage
Heated Area:1920 Sq. Ft.
First Floor:960 Sq. Ft.
Unheated Area:
Basement:960 Sq. Ft.
Garage:440 Sq. Ft.
Dimensions
Ridge Height:14-9' 0''
Architectural Styles
Exterior Wall Material
Wood Siding
Roofing Type
Hip
Roof Pitch
6/12
Ceiling Height
8 Foot Ceiling
Special Feature
Dining RoomFamily Room
Garage Type
Attached GarageFront Entry
Exterior Wall Framing
2x4

What’s Included

Most plan sets include the following:

icon text-secondary-400 includedExterior elevations

icon text-secondary-400 includedMain Floor plan

icon text-secondary-400 includedArchitectural’ Foundation Plan

icon text-secondary-400 includedArchitectural’ Roof Plan

icon text-secondary-400 includedSections

icon text-secondary-400 includedMain Floor Electrical Plan

icon text-secondary-400 includedNo Framing

What’s Not Included

These items are  NOT included:

icon text-secondary-400 includedArchitectural or Engineering Stamp - handled locally if required.

icon text-secondary-400 includedSite Plan - handled locally when required.

icon text-secondary-400 includedPlumbing Drawings (drawings showing the actual plumbing pipe sizes and locations) - your subcontractors handle this.

icon text-secondary-400 includedEnergy calculations - handled locally when required.

Related House Plans

Plan Collection
Plan Collection
Plan Collection
Plan#100-1202
Starting at$1400
1895
Sq Ft
1
Story
3
Bed
1.5
Bath
2
Car
Plan Collection
Plan Collection
Plan Collection
Plan#101-1060
Starting at$975
1694
Sq Ft
1
Story
3
Bed
1.5
Bath
3
Car
Plan Collection
Plan Collection
Plan Collection
Plan#101-1870
Starting at$975
1694
Sq Ft
1
Story
3
Bed
1.5
Bath
3
Car
View All

Other Plans By This Designer

Plan Collection
Plan Collection
Plan Collection
Plan#161-1145
Starting at$2650
3907
Sq Ft
2
Story
4
Bed
3.5
Bath
3
Car
Plan Collection
Plan Collection
Plan Collection
Plan#161-1077
Starting at$4500
6563
Sq Ft
2
Story
5
Bed
5.5
Bath
5
Car
Plan Collection
Plan Collection
Plan Collection
Plan#161-1084
Starting at$4200
5170
Sq Ft
2
Story
5
Bed
5.5
Bath
3
Car