4-Bedroom, 2274 Sq Ft Traditional Plan with Eat-In Kitchen

Main image for house plan # 19506

Images/Plans copyrighted by designer. Photos may reflect homeowner modifications.

About House Plan #101-1316

Sq Ft
2274
Sq Ft
Bedrooms
4
Bedrooms
Bathroom
2
Baths
Half Baths
1
Half Baths
Bedrooms
3
Cars
Bedrooms
2
Stories
Bedrooms
58' 4'
Width
Bedrooms
41
Depth
Starting at$1075.00What's included
STEP 1Bedrooms
STEP 2Bedrooms
STEP 3Bedrooms

Subtotal:$0
Plan Collection

How much will it cost to build?

Estimate your costs based on your location and materials.

Free Cost Instant Estimator

Floor Plans

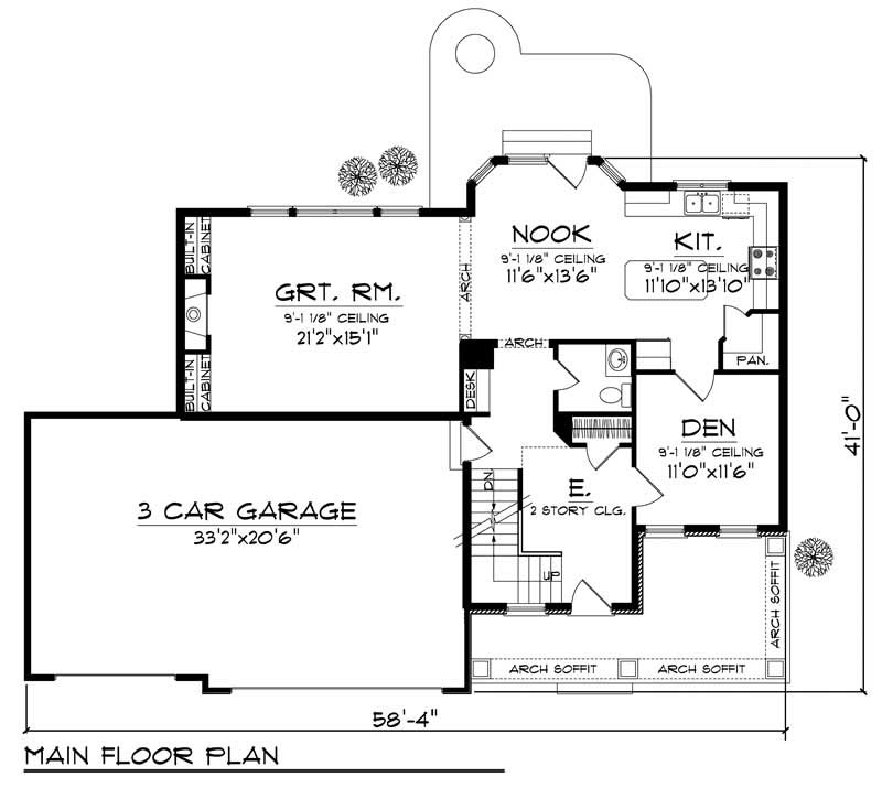
MAIN FLOOR PLAN
MAIN FLOOR PLAN
SECOND FLOOR PLAN
SECOND FLOOR PLAN
Plan Collection

Can I modify this plan?

Yes! This plan can be customized—contact us for a free quote.

House Plan Description

A spacious front porch is the perfect place to enjoy a warm summer evening with your family. A two-story ceiling greets you in the entry and leads you through an arched opening leading to the kitchen and nook area at the back of the home. The kitchen features a center island, walk-in pantry and access to the den at the front of the home. The adjacent great room flows easily into the kitchen and nook areas and is graced with a wall of windows and fireplace flanked by built-in cabinets. Four bedrooms are located upstairs including a master suite with step ceilings in the bedroom, large walk-in...

Home Details

Summary
Plan #:101-1316
Starting at:$1075.00
Floors:2
Bedrooms:4
Full Baths:2
Half Baths:1
Garage:
Square Footage
Heated Area:2274 Sq. Ft.
First Floor:1109 Sq. Ft.
Second Floor:1165 Sq. Ft.
Unheated Area:
Garage:702 Sq. Ft.
Dimensions
Width:58' 4''
Architectural Styles
Exterior Wall Material
Aluminum SidingVinyl SidingStuccoRock/StoneWood Siding
Roof Pitch
8/1210/12
Ceiling Height
9 Foot Ceiling8 Foot Ceiling
Special Feature
Fireplace
Garage Type
Front Entry
Fireplaces
One Fireplace
Kitchen Features
Walk-in Pantry

What’s Included

Most plan sets include the following:

icon text-secondary-400 includedFront, Back & Side Elevations

icon text-secondary-400 includedFloor Plans

icon text-secondary-400 includedElectrical Layout (location of outlets, switches, etc. - it does not have wiring schematics)

icon text-secondary-400 includedRoof Plan (Birdseye view)

icon text-secondary-400 includedFoundation Layout

icon text-secondary-400 includedWall & Stair Sections

icon text-secondary-400 includedCross Section

icon text-secondary-400 includedKitchen Layout

icon text-secondary-400 includedGeneral Notes

What’s Not Included

These items are  NOT included:

icon text-secondary-400 includedArchitectural or Engineering Stamp - handled locally if required.

icon text-secondary-400 includedSite Plan - handled locally when required.

icon text-secondary-400 includedMechanical Drawings (location of heating and air equipment and ductwork) - your subcontractors handle this.

icon text-secondary-400 includedPlumbing Drawings (drawings showing the actual plumbing pipe sizes and locations) - your subcontractors handle this.

icon text-secondary-400 includedFraming layouts with beam sizes and locations.

icon text-secondary-400 includedEnergy calculations - handled locally when required.

Related House Plans

Plan Collection
Plan Collection
Plan Collection
Plan#163-1001
Starting at$1230
2757
Sq Ft
2
Story
4
Bed
2.5
Bath
2
Car
Plan Collection
Plan Collection
Plan Collection
Plan#178-1080
Starting at$1005
1980
Sq Ft
2
Story
4
Bed
2.5
Bath
2
Car
Plan Collection
Plan Collection
Plan Collection
Plan#126-1132
Starting at$2035
2528
Sq Ft
2
Story
4
Bed
2.5
Bath
2
Car
View All

Other Plans By This Designer

Plan Collection
Plan Collection
Plan Collection
Plan#101-2006
Starting at$0
4724
Sq Ft
2
Story
4
Bed
4.5
Bath
4
Car
Plan Collection
Plan Collection
Plan Collection
Plan#101-2024
Starting at$1180
3235
Sq Ft
1
Story
5
Bed
3.5
Bath
3
Car
Plan Collection
Plan Collection
Plan Collection
Plan#101-2028
Starting at$0
4406
Sq Ft
2
Story
4
Bed
3.5
Bath
4
Car

By Architectural Style