Estimate your costs based on your location and materials.
Yes! This plan can be customized—contact us for a free quote.
Yes! This plan can be customized—contact us for a free quote.
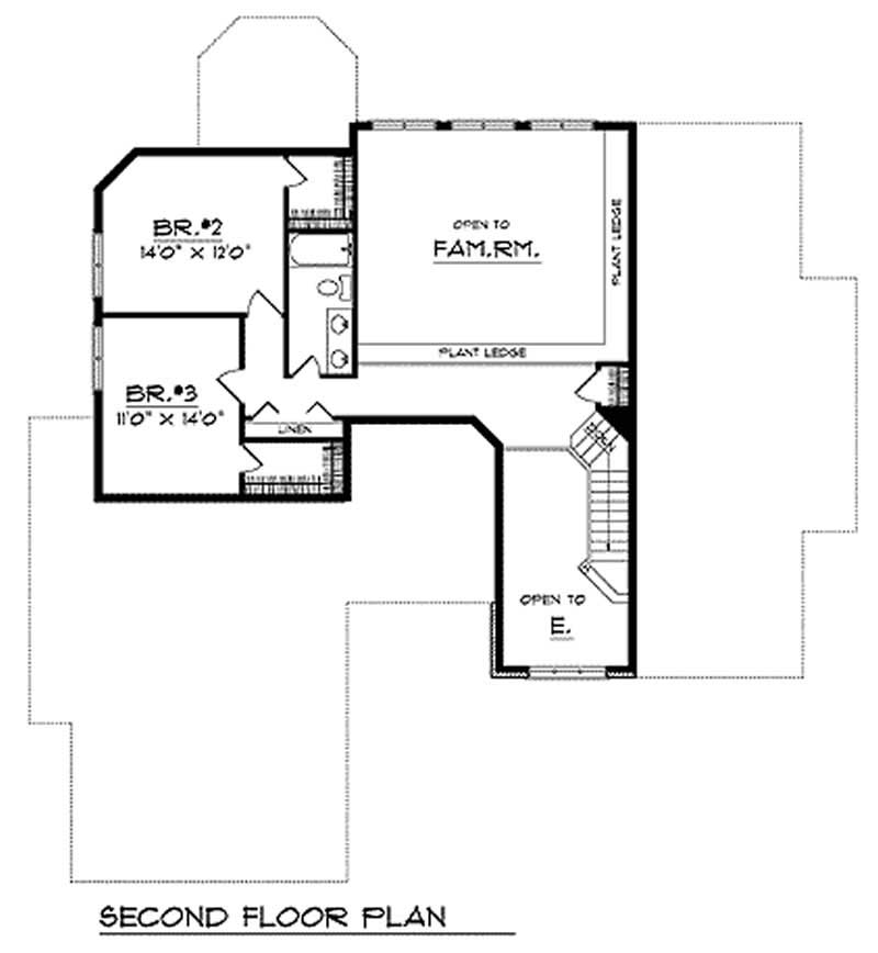
The façade of this beautiful two-story home features a delightful combination of brick, stone and siding. The kitchen has an island great for serving a quick meal and opens into a spacious nook. The great room is large, with huge windows that allow in an abundance of light and a two-story ceiling. To the left of the great room is the sunroom, or den, a great atmosphere for relaxing or for after-hours work. The master bedroom is located on the main floor and offers a walk-in closet with full bathroom. As you walk upstairs, you will be thrilled by the breathtaking view of the great room and the...
Estimate your costs based on your location and materials.
All sales of house plans, modifications, and other products found on this site are final. No refunds or exchanges can be given once your order has begun the fulfillment process. Please see our Policies for additional information.
All plans offered on ThePlanCollection.com are designed to conform to the local building codes when and where the original plan was drawn.
The homes as shown in photographs and renderings may differ from the actual blueprints. For more detailed information, please review the floor plan images herein carefully.
Estimate your costs based on your location and materials.