5-Bedroom, 5813 Sq Ft Luxury Plan with Master Bathroom

Main image for luxury house plan # 16357

Images/Plans copyrighted by designer. Photos may reflect homeowner modifications.

About House Plan #156-1324

Sq Ft
5813
Sq Ft
Bedrooms
5
Bedrooms
Bathroom
5
Baths
Half Baths
0
Half Baths
Bedrooms
4
Cars
Bedrooms
2
Stories
Bedrooms
94' 0'
Width
Bedrooms
85
Depth
Starting at$1450.00What's included
STEP 1Bedrooms
STEP 2Bedrooms
STEP 3Bedrooms

Subtotal:$0
Plan Collection

How much will it cost to build?

Estimate your costs based on your location and materials.

Free Cost Instant Estimator

Floor Plans

First Floor Plan
First Floor Plan
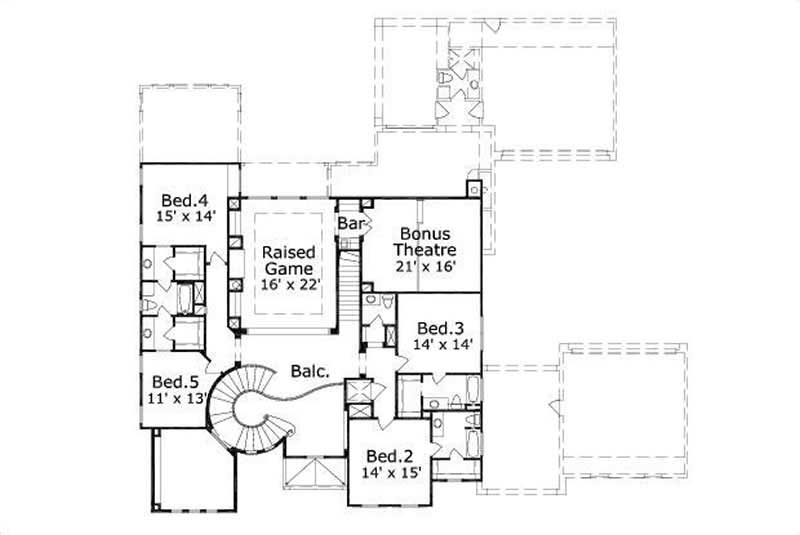
Second Floor Plan
Second Floor Plan
Plan Collection

Can I modify this plan?

Yes! This plan can be customized—contact us for a free quote.

Additional Notes from Designer

CAD files may take up to 3 business days to receive - please contact us for availability.

House Plan Description

Luxury House Plans #30664 are two story mediterranean style of the home as well as the stucco exterior and 5813 total living square feet. It has 5 bedrooms, 5 baths, and a split front load 4 car garage. This house plan also has 2 living areas, 2 dining areas, a bar, a butler pantry, a covered pavillion, a master with sitting area, an optional pool bath, a porte cochere, and a wine closet.

Home Details

Summary
Plan #:156-1324
Starting at:$1450.00
Floors:2
Bedrooms:5
Full Baths:5
Half Baths:0
Garage:
Square Footage
Heated Area:5813 Sq. Ft.
First Floor:3652 Sq. Ft.
Second Floor:2161 Sq. Ft.
Unheated Area:
Dimensions
Ridge Height:35' 0''
Architectural Styles
Exterior Wall Material
Stucco
Ceiling Height
9 Foot Ceiling
Special Feature
Dining RoomHome OfficeBonus RoomGame RoomMain Level LaundryLibraryHome TheaterBalcony
Garage Type
Attached GarageCourtyard EntrySide Entry
Kitchen Features
Nook/Breakfast AreaOutdoor Kitchen
Porches and Exterior Features
Covered Rear PorchPortico
Master Suite Features
Main Floor MasterMaster BathroomWalk In Closet

What’s Included

Most plan sets include the following:

icon text-secondary-400 includedExterior,

icon text-secondary-400 includedElevations

icon text-secondary-400 includedFloor Plans

icon text-secondary-400 includedElectrical Layout

icon text-secondary-400 includedBuilding Sections

icon text-secondary-400 includedRoofing Plan

icon text-secondary-400 includedInterior Elevations

icon text-secondary-400 includedGeneral Details

icon text-secondary-400 includedWall Sections

What’s Not Included

These items are  NOT included:

icon text-secondary-400 includedArchitectural or Engineering Stamp - handled locally if required.

icon text-secondary-400 includedSite Plan - handled locally when required.

icon text-secondary-400 includedMechanical Drawings (location of heating and air equipment and ductwork) - your subcontractors handle this.

icon text-secondary-400 includedPlumbing Drawings (drawings showing the actual plumbing pipe sizes and locations) - your subcontractors handle this.

icon text-secondary-400 includedEnergy calculations - handled locally when required.

Related House Plans

Plan Collection
Plan Collection
Plan Collection
Plan#116-1106
Starting at$0
5165
Sq Ft
2
Story
5
Bed
5.5
Bath
3
Car
Plan Collection
Plan Collection
Plan Collection
Plan#161-1077
Starting at$4500
6563
Sq Ft
2
Story
5
Bed
5.5
Bath
5
Car
Plan Collection
Plan Collection
Plan Collection
Plan#161-1048
Starting at$2950
6495
Sq Ft
2
Story
5
Bed
5.5
Bath
3
Car
View All

Other Plans By This Designer

Plan Collection
Plan Collection
Plan Collection
Plan#156-1607
Starting at$1450
5509
Sq Ft
3
Story
6
Bed
6.5
Bath
3
Car
Plan Collection
Plan Collection
Plan Collection
Plan#156-1085
Starting at$1100
3900
Sq Ft
2
Story
4
Bed
3.5
Bath
3
Car
Plan Collection
Plan Collection
Plan Collection
Plan#156-1734
Starting at$1700
6775
Sq Ft
2
Story
6
Bed
4.5
Bath
2
Car