Estimate your costs based on your location and materials.
Yes! This plan can be customized—contact us for a free quote.
Yes! This plan can be customized—contact us for a free quote.
Optional Foundations are considered modifications so please send us a modification request if you would like a free quote. Thank you! PLEASE NOTE! Any options that are ordered such as RRR or 2x6 conversion will each take 4-7 business days to complete BEFORE the plans are sent. Materials Lists can take up to 14 business days to complete BEFORE plans are sent.
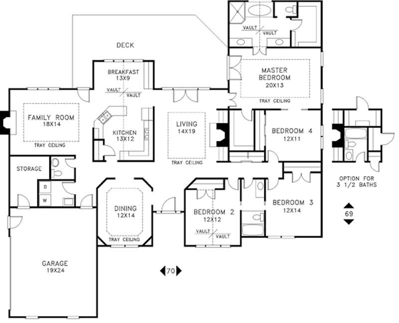
As you enter, you are greeted by a dramatic living area with a tray ceiling, fireplace, built-in bookcases, and a window-wall with French doors leading onto a large deck. The 12' by 14' formal dining room has mitered corners with a matching tray ceiling. The spaciousness of the kitchen and breakfast room is emphasized by a vaulted ceiling. Nearby are a large laundry room with a wash tub and a half bath with a pedestal sink. Adjoining the kitchen and breakfast room is the family room with a second fireplace, a tray ceiling, and a door leading onto the deck.
Estimate your costs based on your location and materials.
All sales of house plans, modifications, and other products found on this site are final. No refunds or exchanges can be given once your order has begun the fulfillment process. Please see our Policies for additional information.
All plans offered on ThePlanCollection.com are designed to conform to the local building codes when and where the original plan was drawn.
The homes as shown in photographs and renderings may differ from the actual blueprints. For more detailed information, please review the floor plan images herein carefully.
Estimate your costs based on your location and materials.