4-Bedroom, 2688 Sq Ft European Plan with Covered Front Porch

Main image for house plan # 14001

Images/Plans copyrighted by designer. Photos may reflect homeowner modifications.

About House Plan #101-1399

Sq Ft
2688
Sq Ft
Bedrooms
4
Bedrooms
Bathroom
2
Baths
Half Baths
0
Half Baths
Bedrooms
3
Cars
Bedrooms
2
Stories
Bedrooms
54' 0'
Width
Bedrooms
77
Depth
Starting at$1100.00What's included
STEP 1Bedrooms
STEP 2Bedrooms
STEP 3Bedrooms

Subtotal:$0
Plan Collection

How much will it cost to build?

Estimate your costs based on your location and materials.

Free Cost Instant Estimator

Floor Plans

MAIN FLOOR PLAN
MAIN FLOOR PLAN
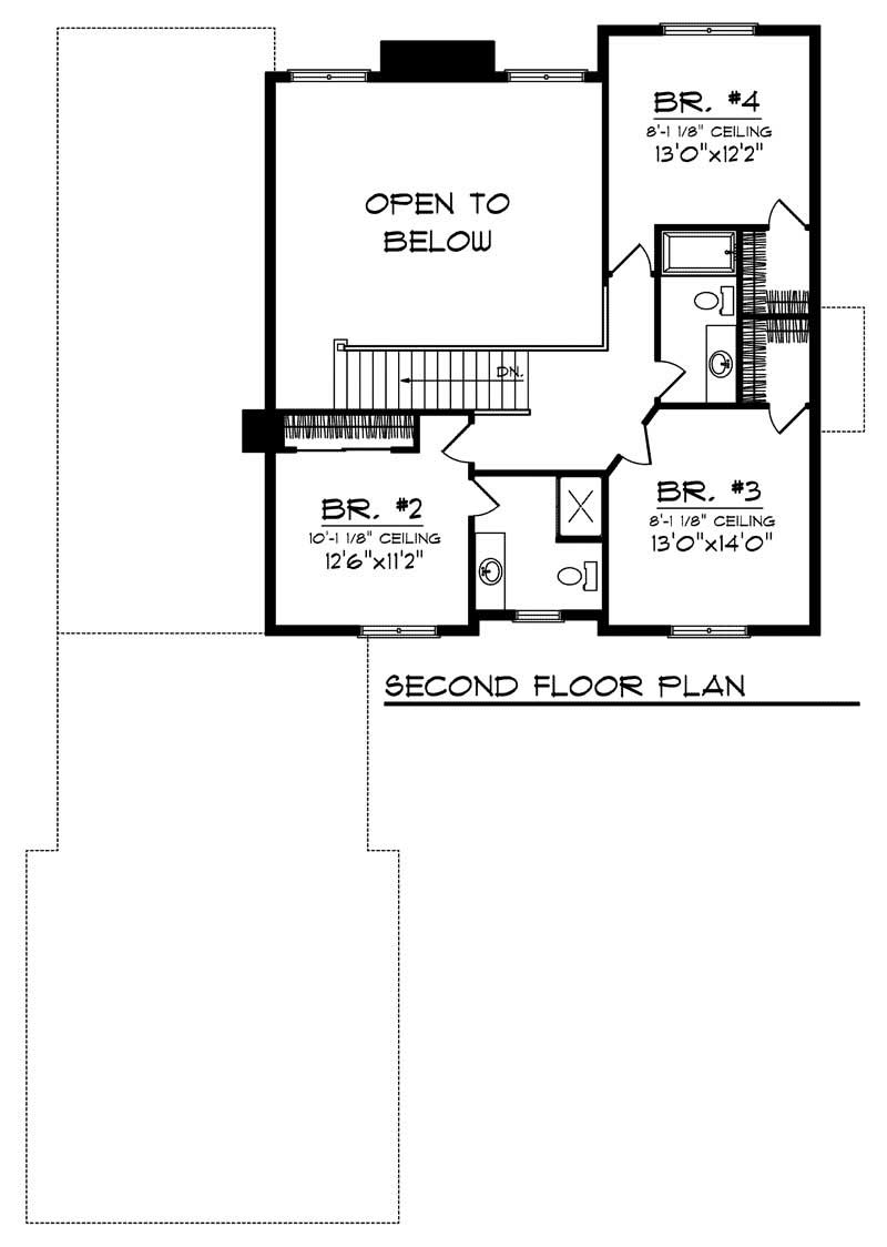
SECOND FLOOR PLAN
SECOND FLOOR PLAN
Plan Collection

Can I modify this plan?

Yes! This plan can be customized—contact us for a free quote.

House Plan Description

This European style two-story home features the perfect blend of stone and shingle siding to imitate a much older home. Inside, the floor plan makes use of every inch of space with its combination of rooms and two-story ceiling. The kitchen features a breakfast bar that overlooks both the nook and great room as well as 13-foot ceilings adding volume to this part of the home. The master suite is sure to please you with its tall step ceiling, Jacuzzi tub and ample walk-in closet. Upstairs you’ll be able to look into the great room as you walk to any of the three bedrooms. Bedroom two has its...

Home Details

Summary
Plan #:101-1399
Starting at:$1100.00
Floors:2
Bedrooms:4
Full Baths:2
Half Baths:0
Garage:
Square Footage
Heated Area:2688 Sq. Ft.
First Floor:1832 Sq. Ft.
Second Floor:856 Sq. Ft.
Unheated Area:
Dimensions
Architectural Styles
Exterior Wall Material
Vinyl SidingRock/StoneShakes
Roof Pitch
10/12
Ceiling Height
9 Foot Ceiling
Garage Type
Attached Garage
Exterior Wall Framing
2x6

What’s Included

Most plan sets include the following:

icon text-secondary-400 includedFront, Back & Side Elevations

icon text-secondary-400 includedFloor Plans

icon text-secondary-400 includedElectrical Layout (location of outlets, switches, etc. - it does not have wiring schematics)

icon text-secondary-400 includedRoof Plan (Birdseye view)

icon text-secondary-400 includedFoundation Layout

icon text-secondary-400 includedWall & Stair Sections

icon text-secondary-400 includedCross Section

icon text-secondary-400 includedKitchen Layout

icon text-secondary-400 includedGeneral Notes

What’s Not Included

These items are  NOT included:

icon text-secondary-400 includedArchitectural or Engineering Stamp - handled locally if required.

icon text-secondary-400 includedSite Plan - handled locally when required.

icon text-secondary-400 includedMechanical Drawings (location of heating and air equipment and ductwork) - your subcontractors handle this.

icon text-secondary-400 includedPlumbing Drawings (drawings showing the actual plumbing pipe sizes and locations) - your subcontractors handle this.

icon text-secondary-400 includedFraming layouts with beam sizes and locations.

icon text-secondary-400 includedEnergy calculations - handled locally when required.

Related House Plans

Plan Collection
Plan Collection
Plan Collection
Plan#153-1750
Starting at$1100
2889
Sq Ft
2
Story
4
Bed
2.5
Bath
2
Car
Plan Collection
Plan Collection
Plan Collection
Plan#168-1077
Starting at$2600
2938
Sq Ft
2
Story
4
Bed
2.5
Bath
3
Car
Plan Collection
Plan Collection
Plan Collection
Plan#158-1251
Starting at$1455
2841
Sq Ft
2
Story
4
Bed
2.5
Bath
2
Car
View All

Other Plans By This Designer

Plan Collection
Plan Collection
Plan Collection
Plan#101-2006
Starting at$0
4724
Sq Ft
2
Story
4
Bed
4.5
Bath
4
Car
Plan Collection
Plan Collection
Plan Collection
Plan#101-2024
Starting at$1180
3235
Sq Ft
1
Story
5
Bed
3.5
Bath
3
Car
Plan Collection
Plan Collection
Plan Collection
Plan#101-2028
Starting at$0
4406
Sq Ft
2
Story
4
Bed
3.5
Bath
4
Car