6-Bedroom, 5419 Sq Ft Contemporary Plan with Vaulted Ceilings

Front elevation of Contemporary home (ThePlanCollection: House Plan #194-1065)

Images/Plans copyrighted by designer. Photos may reflect homeowner modifications.

About House Plan #194-1065

Sq Ft
5419
Sq Ft
Bedrooms
6
Bedrooms
Bathroom
4
Baths
Half Baths
1
Half Baths
Bedrooms
4
Cars
Bedrooms
1.5
Stories
Bedrooms
119' 1'
Width
Bedrooms
91
Depth
Starting at$1995.00What's included
STEP 1Bedrooms
STEP 2Bedrooms
STEP 3Bedrooms

Subtotal:$0
Plan Collection

How much will it cost to build?

Estimate your costs based on your location and materials.

Free Cost Instant Estimator

Floor Plans

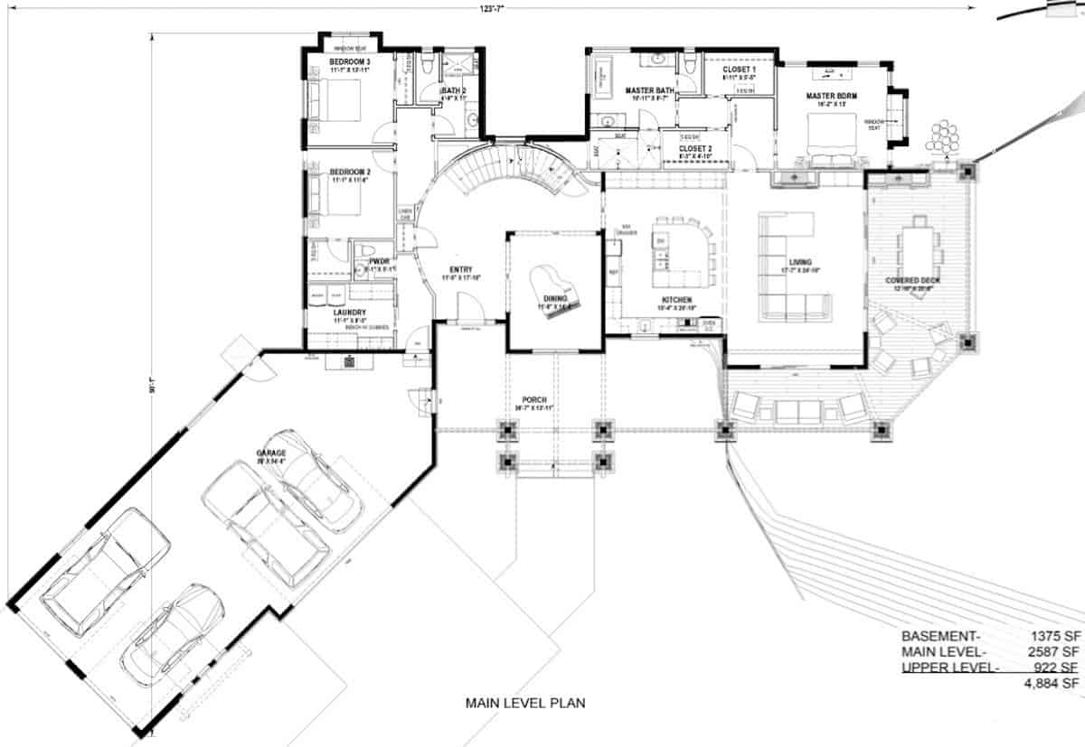
Main Level
Main Level
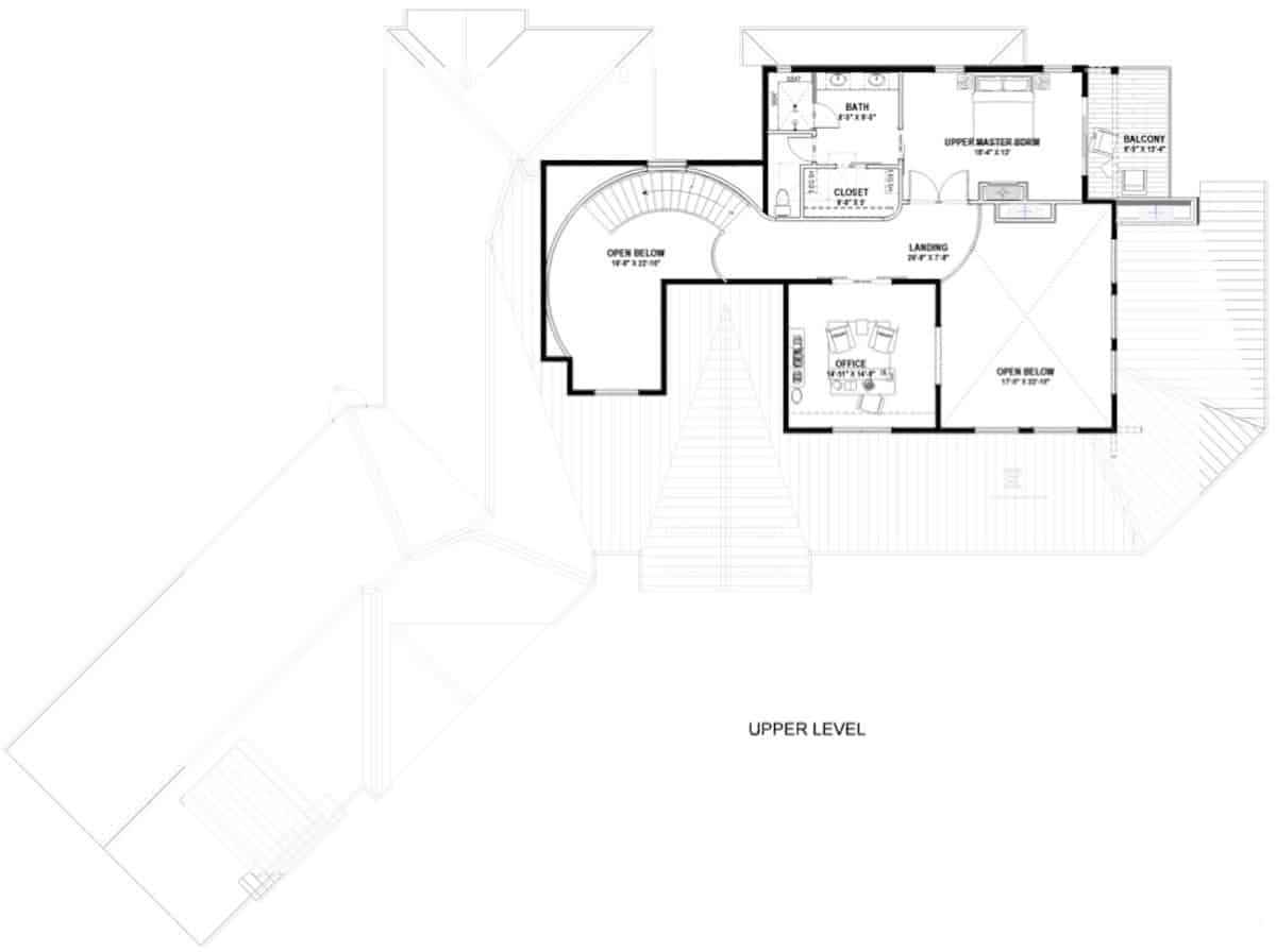
Upper Level
Upper Level
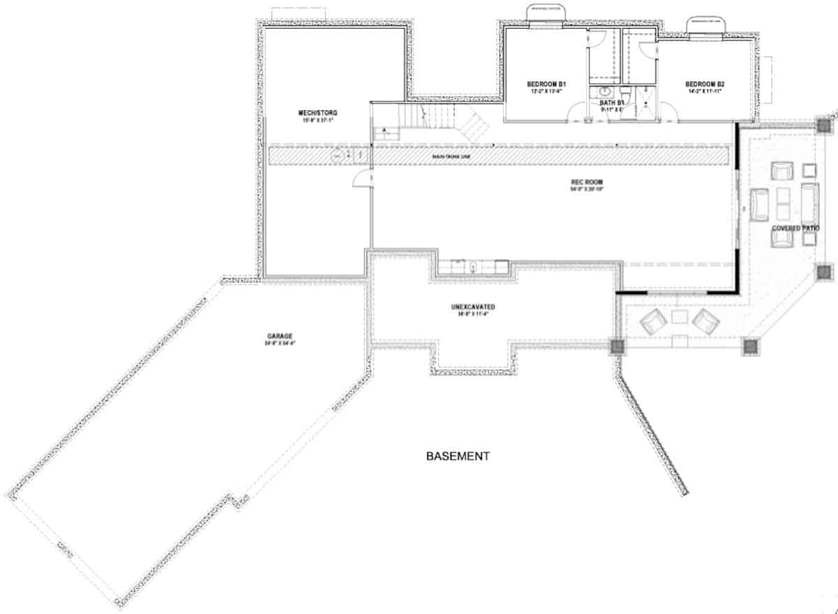
Basement
Basement
Plan Collection

Can I modify this plan?

Yes! This plan can be customized—contact us for a free quote.

House Plan Description

If you're looking for a home with an incredible design - this is it! Superb details and everything you need to feel at home are featured in this luxurious Contemporary Farmhouse style home. The home features plenty of rooms to seat friends and the outdoor space is just perfect for special gatherings.   The impressive 1.5-story family mansion has 5419 square feet of fully conditioned living space and includes these amazing amenities:

• Fireplace in the living room and covered deck
• 2 master bedroom suites

Home Details

Summary
Plan #:194-1065
Starting at:$1995.00
Floors:1.5
Bedrooms:6
Full Baths:4
Half Baths:1
Garage:
Square Footage
Heated Area:5419 Sq. Ft.
Basement:1925 Sq. Ft.
First Floor:2590 Sq. Ft.
Bonus Room:904 Sq. Ft.
Unheated Area:
Basement:731 Sq. Ft.
Garage:1325 Sq. Ft.
Dimensions
Width:119' 1''
Depth:91' 9''
Architectural Styles
Exterior Wall Material
StuccoRock/Stone
Roofing Type
Gable/Dormer
Roofing Material
Asphalt Shingles
Roof Pitch
6/12
Ceiling Height
10 Foot Ceiling11 Foot Ceiling
Special Feature
FireplaceDining RoomHome OfficeMain Level LaundrySplit BathroomStorageVaulted CeilingsBalconyOpen Floor Plan
Garage Type
Attached GarageCourtyard Entry
Fireplaces
Two Fireplaces
Kitchen Features
Kitchen IslandPeninsula/Eating Bar
Master Suite Features
Main Floor MasterTwo or More Master SuitesMaster BathroomWalk In ClosetSitting AreaPrivate DeckSplit Master Bedroom

What’s Included

Most plan sets include the following:

icon text-secondary-400 includedCover Sheet - project statistics, including square footage, 3D images (typically), general notes, and drawings sheet index.

icon text-secondary-400 includedFoundation/basement plan - showing room/wall layout, beams, posts, joist direction, and often electrical outlets, switches, and light locations.

icon text-secondary-400 includedMain Level Plan - floor plan rooms and walls dimensioned, window and door sizes noted, plumbing, millwork locations, and other general notes.

icon text-secondary-400 includedUpper-Level Plan (if needed) - same information as Main Level.

icon text-secondary-400 includedMain Level Electrical Plan - electrical outlets, switches, and light locations shown.

icon text-secondary-400 includedUpper-Level Electrical Plan (if needed) - electrical outlets, switches, and light locations shown. (sometimes just the lighting is shown)

icon text-secondary-400 includedExterior Elevations - Elevations of the Front and Right side with notes, dimensions, and material designations.

icon text-secondary-400 includedSections and details - One or more building sections to show vertical relationships and construction plate heights, details as needed.

What’s Not Included

These items are  NOT included:

icon text-secondary-400 includedArchitectural or Engineering Stamp - handled locally if required.

icon text-secondary-400 includedSite Plan - handled locally when required.

icon text-secondary-400 includedMechanical Drawings (location of heating and air equipment and ductwork) - your subcontractors handle this.

icon text-secondary-400 includedPlumbing Drawings (drawings showing the actual plumbing pipe sizes and locations) - your subcontractors handle this.

icon text-secondary-400 includedEnergy calculations - handled locally when required.

Related House Plans

Plan Collection
Plan Collection
Plan Collection
Plan#196-1272
Starting at$1970
5400
Sq Ft
1.5
Story
6
Bed
4.5
Bath
4
Car
Plan Collection
Plan Collection
Plan Collection
Plan#178-1420
Starting at$1185
4952
Sq Ft
1.5
Story
6
Bed
4.5
Bath
4
Car
View All

Other Plans By This Designer

Plan Collection
Plan Collection
Plan Collection
Plan#194-1056
Starting at$1395
3582
Sq Ft
1
Story
4
Bed
4.5
Bath
4
Car
Plan Collection
Plan Collection
Plan Collection
Plan#194-1057
Starting at$1395
3692
Sq Ft
1
Story
4
Bed
4.5
Bath
4
Car
Plan Collection
Plan Collection
Plan Collection
Plan#194-1010
Starting at$1395
2605
Sq Ft
1
Story
2
Bed
2.5
Bath
3
Car