Estimate your costs based on your location and materials.
Yes! This plan can be customized—contact us for a free quote.
Yes! This plan can be customized—contact us for a free quote.
NOTE FROM DESIGNER REGARDING PLAN PURCHASES: 80% of a 5 set purchase price can be applied to any PDF or CAD license upgrade. Additionally, 80% of PDF Study purchase price can be applied to any CAD or PDF license upgrade.
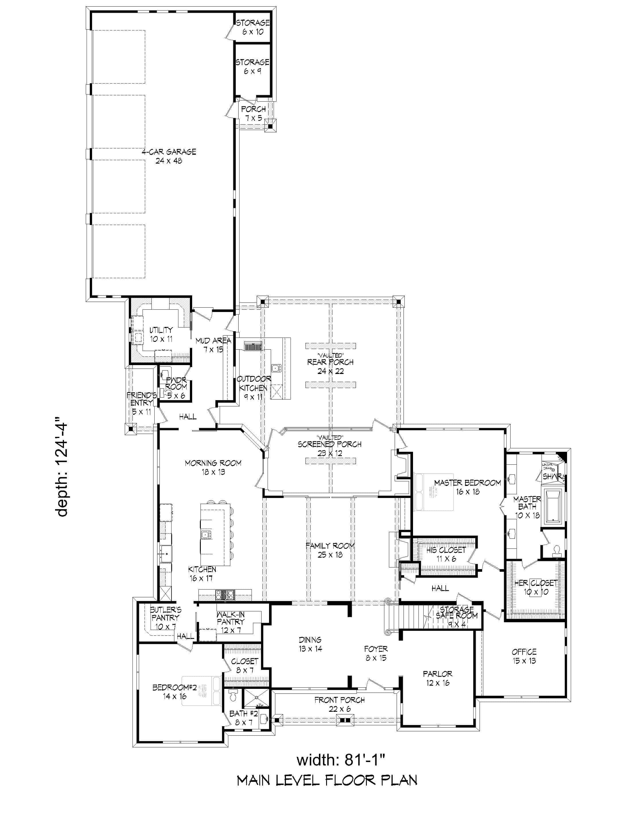
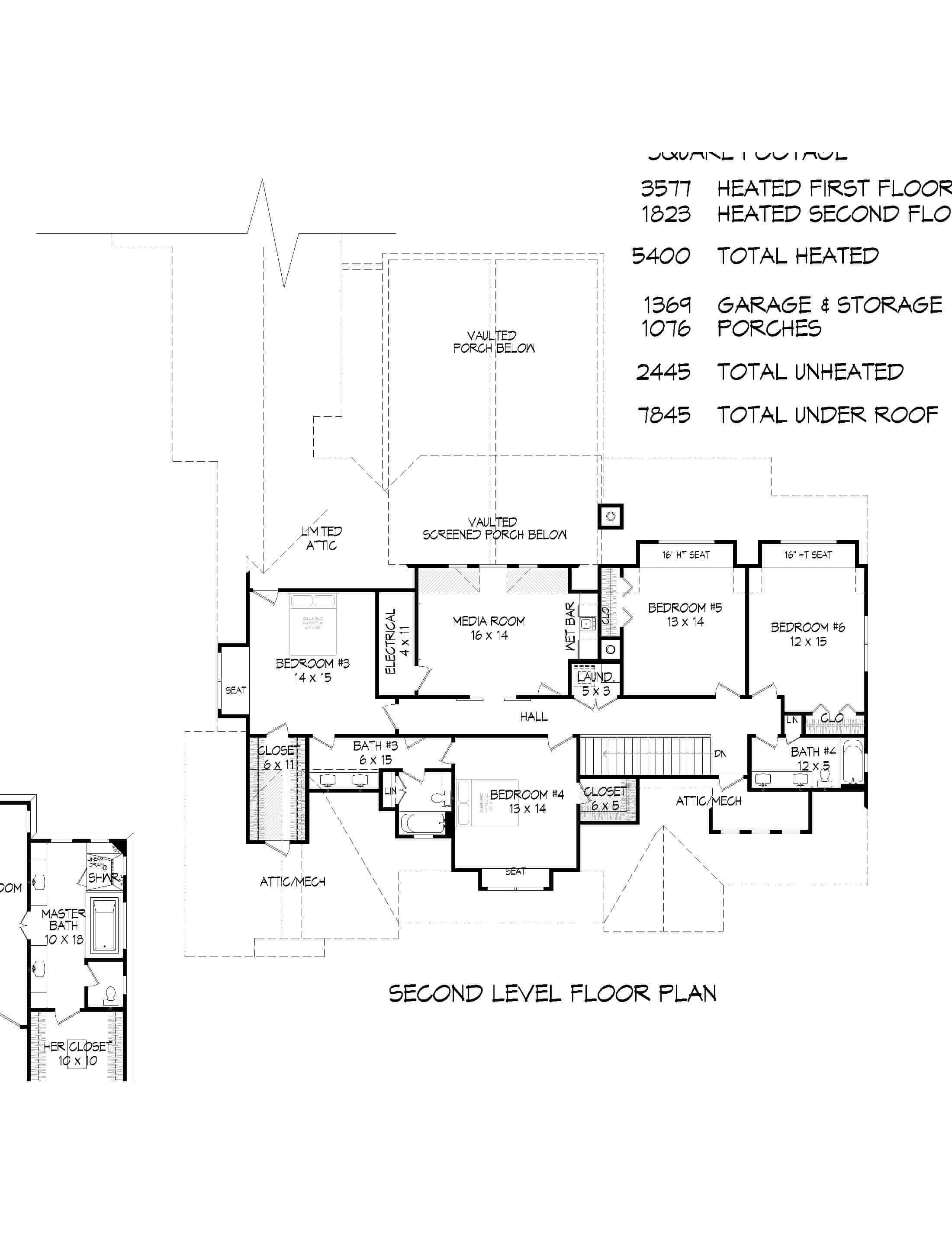
Extremely attractive and desirable, this luxurious 1.5-story Modern Farmhouse-style home won't disappoint. The luxurious gives you a total heated area of 5400 square feet with an oversized 1369-square-foot garage and includes such amenities as his and her walk-in closets in the master bedroom suite, a large office, butler's and walk-in kitchen pantries, large mud room, outdoor kitchen, media room, and laundry rooms on the main AND upper levels.
Estimate your costs based on your location and materials.
All sales of house plans, modifications, and other products found on this site are final. No refunds or exchanges can be given once your order has begun the fulfillment process. Please see our Policies for additional information.
All plans offered on ThePlanCollection.com are designed to conform to the local building codes when and where the original plan was drawn.
The homes as shown in photographs and renderings may differ from the actual blueprints. For more detailed information, please review the floor plan images herein carefully.
Estimate your costs based on your location and materials.