5-Bedroom, 5009 Sq Ft Luxury Plan with Jack & Jill Bathroom

Front elevation of Luxury home (ThePlanCollection: House Plan #193-1267)

Images/Plans copyrighted by designer. Photos may reflect homeowner modifications.

About House Plan #193-1267

Sq Ft
5009
Sq Ft
Bedrooms
5
Bedrooms
Bathroom
4
Baths
Half Baths
1
Half Baths
Bedrooms
3
Cars
Bedrooms
2
Stories
Bedrooms
61' 6'
Width
Bedrooms
78
Depth
Starting at$2050.00What's included
STEP 1Bedrooms
STEP 2Bedrooms
STEP 3Bedrooms

Subtotal:$0
Plan Collection

How much will it cost to build?

Estimate your costs based on your location and materials.

Free Cost Instant Estimator

Floor Plans

Main Level
Main Level
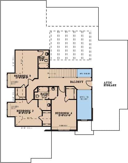
Upper Level
Upper Level
Lower Level
Lower Level
Plan Collection

Can I modify this plan?

Yes! This plan can be customized—contact us for a free quote.

Additional Notes from Designer

For this designer, if you choose optional features such as but not limited to: 2x6 exterior walls, reverse or optional basement, the designer will need an additional 2-5 business days to adjust the plan accordingly. Please keep this in mind when choosing your shipping option. if you would like Express or Priority shipping, the designer will ship the plan to you using the method you choose but you will still have the 2-5 business day waiting period BEFORE they ship! This designer does not offer Framing. Please feel free to contact us with any questions!

Note: Porch sq ft figures may include any deck sq ft as well.

House Plan Description

This beautiful Luxury home with Contemporary attributes is 5,009 square feet with 5 bedrooms (1 guest room), 4.1 baths, and a 3-car garage. There are several other features to love about this remarkable home, including:

  • Mudroom
  • Game Room
  • Guest Room
  • Play Room
  • Hearth Room
  • Home Office
  • Kitchen with Walk-in Pantry
  • Main Floor Master Suite
  • Master Bedroom with Walk-in Closet
  • Jack & Jill Bathroom
  • Attic Storage
  • Balcony
  • Open Floor...

Home Details

Summary
Plan #:193-1267
Starting at:$2050.00
Floors:2
Bedrooms:5
Full Baths:4
Half Baths:1
Garage:
Square Footage
Heated Area:5009 Sq. Ft.
Basement:1228 Sq. Ft.
First Floor:2709 Sq. Ft.
Second Floor:1072 Sq. Ft.
Unheated Area:
Garage:864 Sq. Ft.
Dimensions
Width:61' 6''
Depth:78' 6''
Architectural Styles
Exterior Wall Material
Brick
Roofing Type
Gable
Roofing Material
Asphalt Shingles
Roof Pitch
12/12
Ceiling Height
9 Foot Ceiling
Special Feature
FireplaceGuest RoomHome OfficeMud RoomFamily RoomGame RoomMain Level LaundryColor PhotosSplit BathroomBalconyOpen Floor PlanInterior Photos
Garage Type
Attached GarageSide Entry
Fireplaces
Two Fireplaces
Exterior Wall Framing
2x4
Building Lot Type
Down Site
Kitchen Features
Kitchen IslandWalk-in PantryEat-In Kitchen
Porches and Exterior Features
Covered Front PorchCovered Rear Porch
Master Suite Features
Main Floor MasterMaster BathroomWalk In ClosetSplit Master Bedroom

What’s Included

Most plan sets include the following:

icon text-secondary-400 included Each plan set includes the following:

icon text-secondary-400 included floorplan

icon text-secondary-400 included 4 side exterior elevations,

icon text-secondary-400 included electrical plan,

icon text-secondary-400 included birds-eye view of the roof,

icon text-secondary-400 included foundation plan,

icon text-secondary-400 included and some miscellaneous details. Please Note We do not offer framing, plumbing, HVAC, or window scheduling. This will have to be done on a local level, probably by your building team!

What’s Not Included

These items are  NOT included:

icon text-secondary-400 includedArchitectural or Engineering Stamp - handled locally if required.

icon text-secondary-400 includedSite Plan - handled locally when required.

icon text-secondary-400 includedMechanical Drawings (location of heating and air equipment and ductwork) - your subcontractors handle this.

icon text-secondary-400 includedPlumbing Drawings (drawings showing the actual plumbing pipe sizes and locations) - your subcontractors handle this.

icon text-secondary-400 includedEnergy calculations - handled locally when required.

icon text-secondary-400 includedNo Framing

Related House Plans

Plan Collection
Plan Collection
Plan Collection
Plan#161-1022
Starting at$2650
5711
Sq Ft
2
Story
5
Bed
4.5
Bath
3
Car
Plan Collection
Plan Collection
Plan Collection
Plan#161-1075
Starting at$3400
4784
Sq Ft
2
Story
5
Bed
4.5
Bath
3
Car
Plan Collection
Plan Collection
Plan Collection
Plan#134-1339
Starting at$0
4434
Sq Ft
2
Story
5
Bed
4.5
Bath
3
Car
View All

Other Plans By This Designer

Plan Collection
Plan Collection
Plan Collection
Plan#193-1108
Starting at$1350
1905
Sq Ft
1.5
Story
3
Bed
2
Bath
0
Car
Plan Collection
Plan Collection
Plan Collection
Plan#193-1179
Starting at$1000
2006
Sq Ft
1.5
Story
3
Bed
2.5
Bath
2
Car
Plan Collection
Plan Collection
Plan Collection
Plan#193-1145
Starting at$1200
1897
Sq Ft
1
Story
4
Bed
2.5
Bath
3
Car