4-Bedroom, 4682 Sq Ft Modern Plan with Private Garden

Front elevation of Modern home (ThePlanCollection: House Plan #202-1034)

Images/Plans copyrighted by designer. Photos may reflect homeowner modifications.

About House Plan #202-1034

Sq Ft
4682
Sq Ft
Bedrooms
4
Bedrooms
Bathroom
5
Baths
Half Baths
1
Half Baths
Bedrooms
3
Cars
Bedrooms
1
Stories
Bedrooms
161' 0'
Width
Bedrooms
79
Depth
Starting at$2195.00What's included
STEP 1Bedrooms
STEP 2Bedrooms
STEP 3Bedrooms

Subtotal:$0
Plan Collection

How much will it cost to build?

Estimate your costs based on your location and materials.

Free Cost Instant Estimator

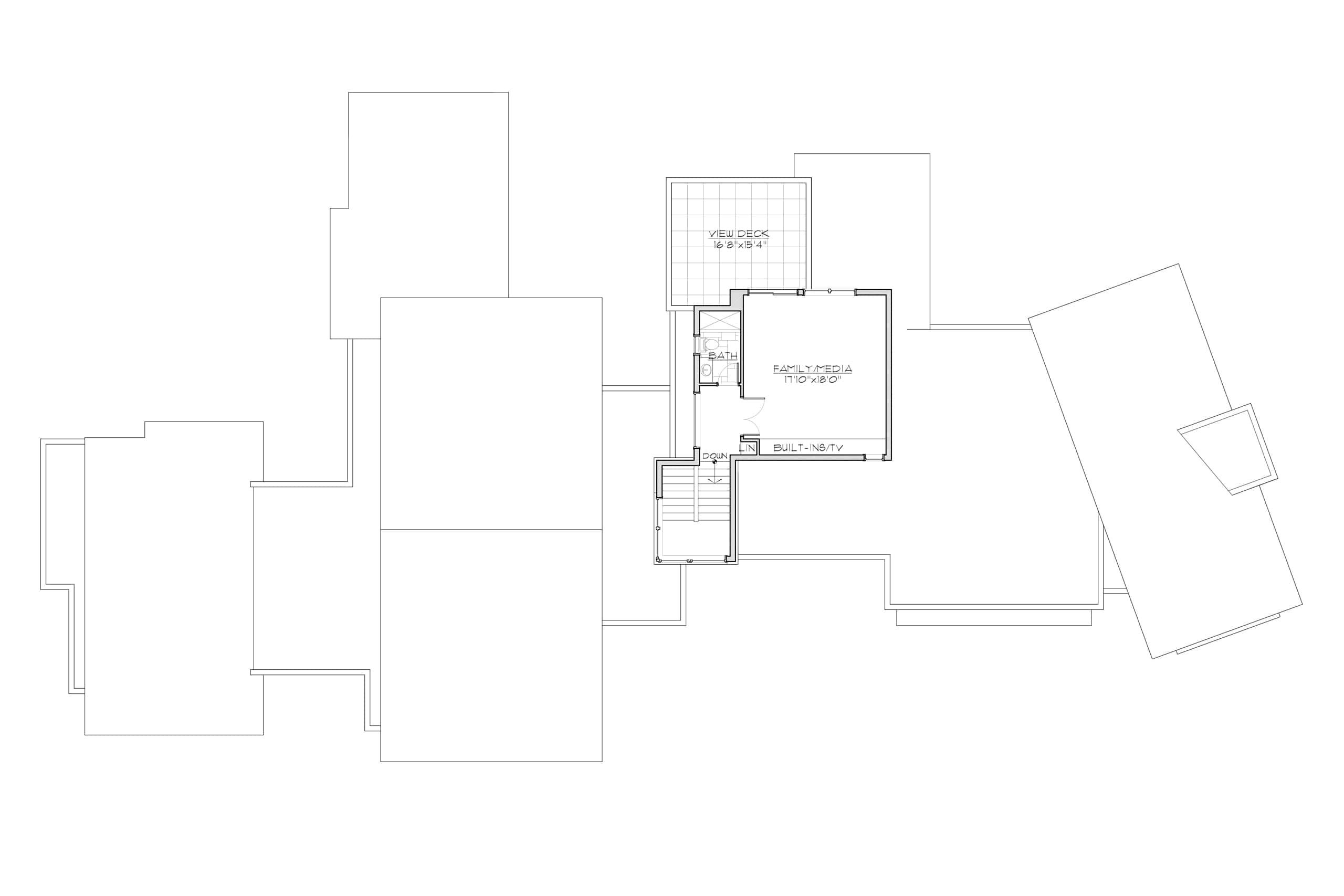
Floor Plans

Main Level
Main Level
Bonus Room
Bonus Room
Plan Collection

Can I modify this plan?

Yes! This plan can be customized—contact us for a free quote.

House Plan Description

Enchanting in its Modern elements, this Contemporary style treasure covers 4,682 square feet and showcases 4 bedrooms, 5.5 baths, and a 3-car garage. It's worth noting that the residence offers a delightful range of amenities:

  • Courtyard, Great Room, Family/Media Room, Spa
  • Outdoor Patio, Grilling Porch, Private Garden
  • Master Bedroom with Walk-in Closet, Master Bathroom, Pocket Office

Home Details

Summary
Plan #:202-1034
Starting at:$2195.00
Floors:1
Bedrooms:4
Full Baths:5
Half Baths:1
Garage:
Square Footage
Heated Area:4682 Sq. Ft.
First Floor:4163 Sq. Ft.
Second Floor:519 Sq. Ft.
Unheated Area:
Garage:1528 Sq. Ft.
Dimensions
Depth:79' 6''
Architectural Styles
Exterior Wall Material
Vinyl SidingStuccoRock/StoneWood Siding
Roofing Type
Gull WingFlat
Roofing Material
Metal
Roof Pitch
2/12
Ceiling Height
9 Foot Ceiling
Special Feature
FireplaceHome OfficeMud RoomFamily RoomMain Level LaundryColor PhotosStorageWorkshopBalconyOpen Floor PlanInterior Photos
Garage Type
Attached GarageCourtyard Entry
Fireplaces
One Fireplace
Building Lot Type
Flat Site
Kitchen Features
Kitchen IslandOutdoor KitchenEat-In Kitchen
Porches and Exterior Features
CourtyardSundeckRoof GardenPatio
Master Suite Features
Main Floor MasterTwo or More Master SuitesSplit Master Bedroom

What’s Included

Most plan sets include the following:

icon text-secondary-400 includedCover sheet with renderings or photos

icon text-secondary-400 includedSite plan sheet with an original site plan for reference

icon text-secondary-400 includedFloor plans

icon text-secondary-400 includedExterior elevations

icon text-secondary-400 includedSections

icon text-secondary-400 includedTypical detail sheets

icon text-secondary-400 includedStructural sheets

icon text-secondary-400 includedFoundation/floor framing

icon text-secondary-400 includedRoof framing

What’s Not Included

These items are  NOT included:

icon text-secondary-400 includedArchitectural or Engineering Stamp - handled locally if required.

icon text-secondary-400 includedSite Plan - handled locally when required.

icon text-secondary-400 includedMechanical Drawings (location of heating and air equipment and ductwork) - your subcontractors handle this.

icon text-secondary-400 includedPlumbing Drawings (drawings showing the actual plumbing pipe sizes and locations) - your subcontractors handle this.

icon text-secondary-400 includedEnergy calculations - handled locally when required.

Related House Plans

Plan Collection
Plan Collection
Plan Collection
Plan#133-1035
Starting at$0
5000
Sq Ft
1
Story
4
Bed
5
Bath
4
Car
Plan Collection
Plan Collection
Plan Collection
Plan#107-1167
Starting at$1700
5498
Sq Ft
1
Story
4
Bed
5.5
Bath
2
Car
Plan Collection
Plan Collection
Plan Collection
Plan#161-1002
Starting at$1950
4749
Sq Ft
1
Story
4
Bed
5.5
Bath
4
Car
View All

Other Plans By This Designer

Plan Collection
Plan Collection
Plan Collection
Plan#202-1021
Starting at$1095
3217
Sq Ft
1.5
Story
5
Bed
3.5
Bath
2
Car
Plan Collection
Plan Collection
Plan Collection
Plan#202-1013
Starting at$995
3264
Sq Ft
1
Story
3
Bed
3.5
Bath
3
Car
Plan Collection
Plan Collection
Plan Collection
Plan#202-1017
Starting at$795
4412
Sq Ft
2
Story
5
Bed
5.5
Bath
3
Car