1-Bedroom, 4620 Sq Ft European Plan with Eat-In Kitchen

Front view of European home (ThePlanCollection: House Plan #146-1890)

Images/Plans copyrighted by designer. Photos may reflect homeowner modifications.

About House Plan #146-1890

Sq Ft
4620
Sq Ft
Bedrooms
1
Bedrooms
Bathroom
1
Baths
Half Baths
1
Half Baths
Bedrooms
3
Cars
Bedrooms
1
Stories
Bedrooms
104' 0'
Width
Bedrooms
55
Depth
Starting at$1015.00What's included
STEP 1Bedrooms
STEP 2Bedrooms
STEP 3Bedrooms

Subtotal:$0
Plan Collection

How much will it cost to build?

Estimate your costs based on your location and materials.

Free Cost Instant Estimator

Floor Plans

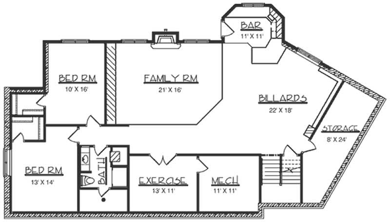
Basement
Basement
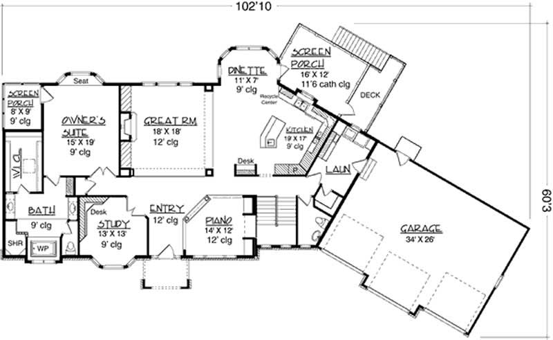
Main Level
Main Level
Plan Collection

Can I modify this plan?

Yes! This plan can be customized—contact us for a free quote.

House Plan Description

This beautiful home will be a standout in any neighborhood with its warm stone-and-stucco facade accented by louvered shutters. Flowing, open spaces abound in the home's interior, starting in the unique piano room. Music will fill the whole house from this open space. On the other side of the entry lies a cozy study with double doors and a built-in desk. Entertaining will be a breeze in the spacious Great Room, set off by columns. A fireplace warms the room while guests are feasting nearby in the bayed dinette. For outdoor meals, head to the sizable screen porch. A bay window graces the...

Home Details

Summary
Plan #:146-1890
Starting at:$1015.00
Floors:1
Bedrooms:1
Full Baths:1
Half Baths:1
Garage:
Square Footage
Heated Area:4620 Sq. Ft.
First Floor:2482 Sq. Ft.
Unheated Area:
Basement:2138 Sq. Ft.
Garage:840 Sq. Ft.
Dimensions
Ridge Height:24-0' 0''
Architectural Styles
Exterior Wall Material
StuccoRock/StoneWood Siding
Roofing Type
Hip
Roof Pitch
10/12
Ceiling Height
9 Foot Ceiling
Special Feature
FireplaceGuest Room
Garage Type
Attached GarageFront Entry
Fireplaces
One Fireplace
Exterior Wall Framing
2x6

What’s Included

Most plan sets include the following:

What’s Not Included

These items are  NOT included:

icon text-secondary-400 includedArchitectural or Engineering Stamp - handled locally if required.

icon text-secondary-400 includedSite Plan - handled locally when required.

icon text-secondary-400 includedMechanical Drawings (location of heating and air equipment and ductwork) - your subcontractors handle this.

icon text-secondary-400 includedPlumbing Drawings (drawings showing the actual plumbing pipe sizes and locations) - your subcontractors handle this.

icon text-secondary-400 includedEnergy calculations - handled locally when required.

Related House Plans

Plan Collection
Plan Collection
Plan Collection
Plan#146-1929
Starting at$1360
4376
Sq Ft
1
Story
1
Bed
1.5
Bath
3
Car
View All

Other Plans By This Designer

Plan Collection
Plan Collection
Plan Collection
Plan#146-2806
Starting at$980
1933
Sq Ft
2
Story
3
Bed
2
Bath
0
Car
Plan Collection
Plan Collection
Plan Collection
Plan#146-2810
Starting at$1285
3594
Sq Ft
2
Story
4
Bed
3.5
Bath
2
Car
Plan Collection
Plan Collection
Plan Collection
Plan#146-1917
Starting at$1120
2525
Sq Ft
2
Story
4
Bed
2.5
Bath
3
Car