4-Bedroom, 4026 Sq Ft Bungalow Plan with Sunroom

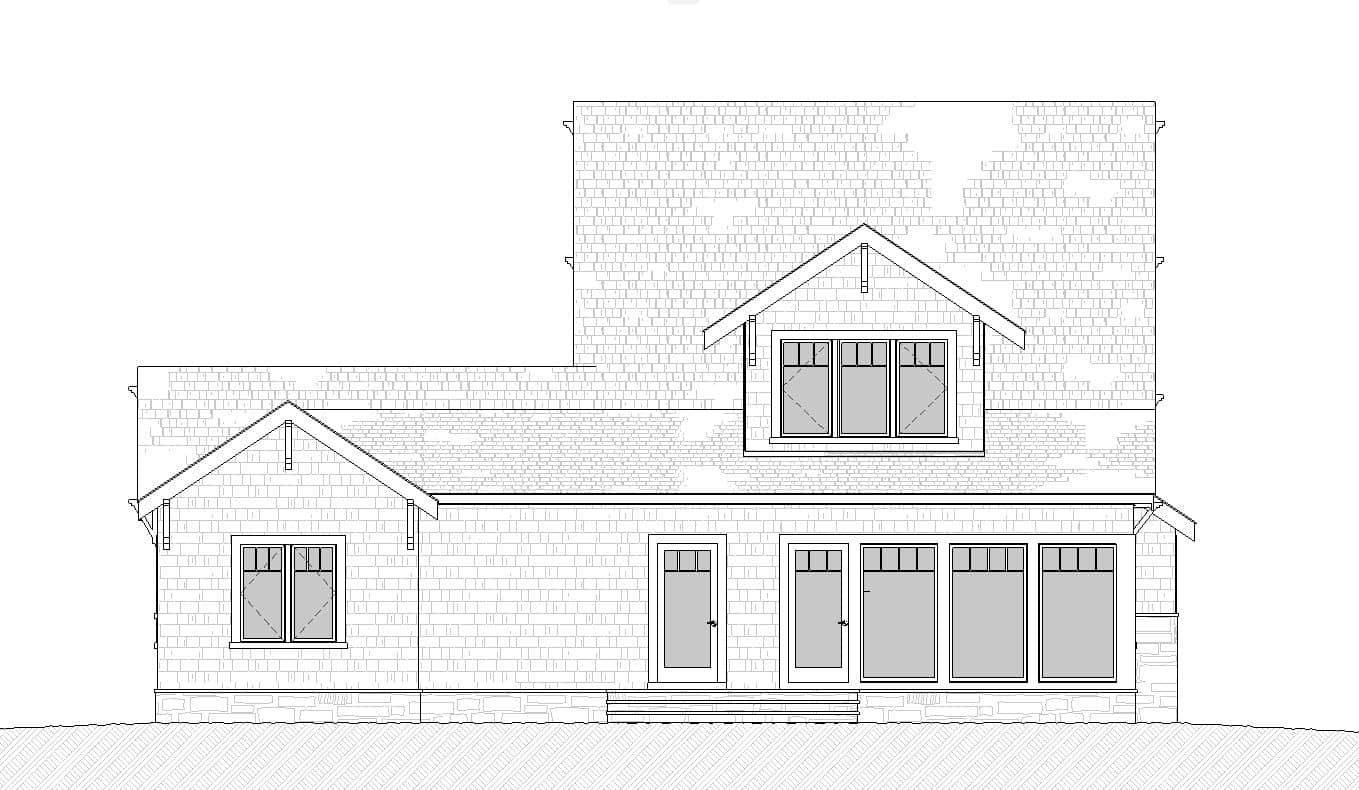
Front elevation of Bungalow home (ThePlanCollection: House Plan #168-1145)

Images/Plans copyrighted by designer. Photos may reflect homeowner modifications.

About House Plan #168-1145

Sq Ft
4026
Sq Ft
Bedrooms
4
Bedrooms
Bathroom
3
Baths
Half Baths
1
Half Baths
Bedrooms
2
Cars
Bedrooms
2
Stories
Bedrooms
51' 1'
Width
Bedrooms
69
Depth
Starting at$2800.00What's included
STEP 1Bedrooms
STEP 2Bedrooms
STEP 3Bedrooms

Subtotal:$0
Plan Collection

How much will it cost to build?

Estimate your costs based on your location and materials.

Free Cost Instant Estimator

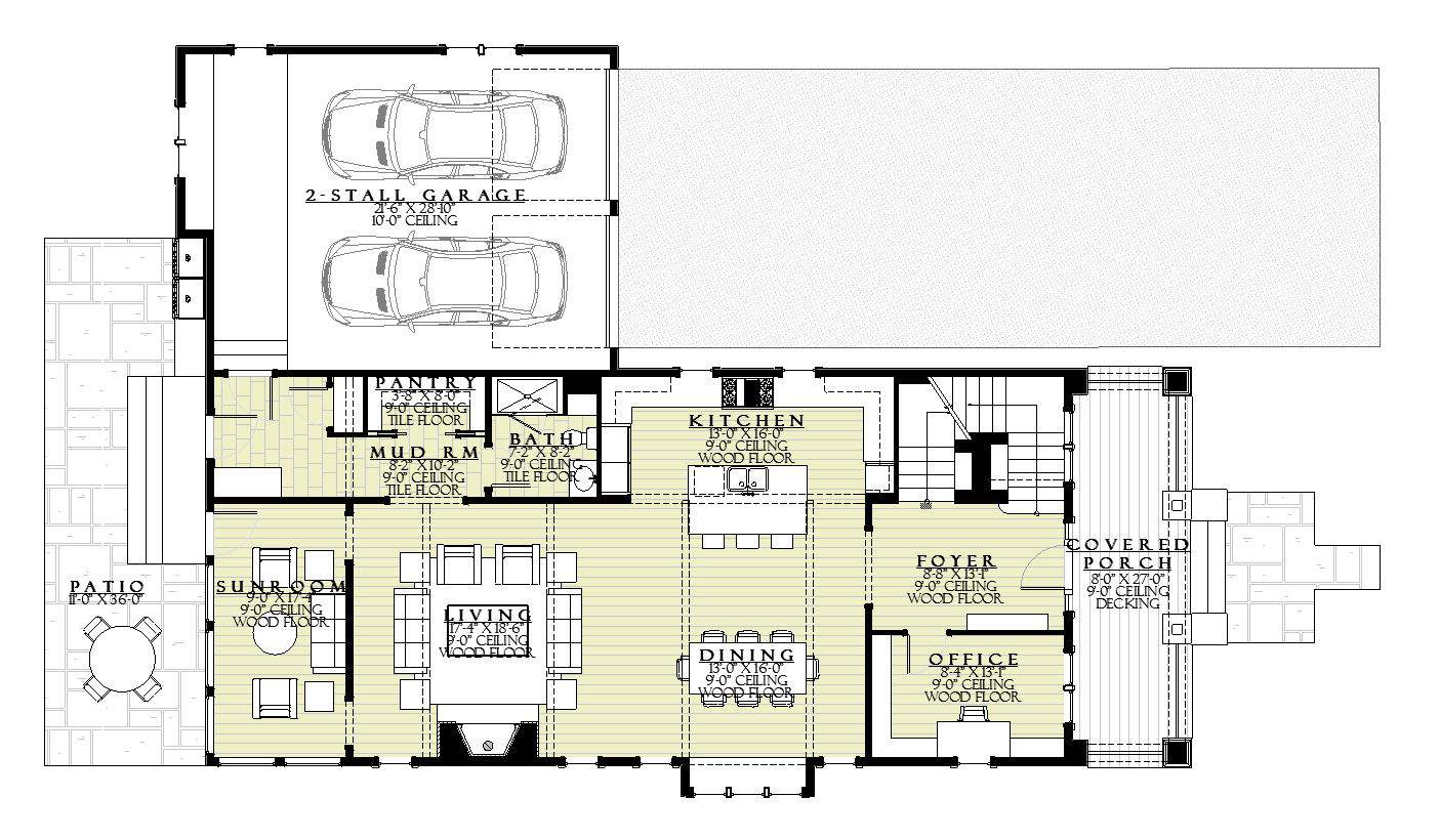
Floor Plans

Main Level
Main Level
Upper Level
Upper Level
Lower Level
Lower Level
Plan Collection

Can I modify this plan?

Yes! This plan can be customized—contact us for a free quote.

House Plan Description

This gallant bungalow with Craftsman details has 4,026 square feet with 4 bedrooms, 3.5 baths, and a 2-car garage. Among the fantastic amenities you'll find in this lovely home are:

  • Mudroom
  • Living Room
  • Sunroom
  • Game Room
  • Exercise Room
  • Family Room
  • Home Office
  • Spacious Dining Area
  • Kitchen with Walk-in Pantry
  • Master Bedroom with Walk-in Closet
  • Lots of Storage
  • Loft
  • Open Floor Plan
  • Vaulted Ceiling

Home Details

Summary
Plan #:168-1145
Starting at:$2800.00
Floors:2
Bedrooms:4
Full Baths:3
Half Baths:1
Garage:
Square Footage
Heated Area:4026 Sq. Ft.
Basement:1357 Sq. Ft.
First Floor:1611 Sq. Ft.
Second Floor:1058 Sq. Ft.
Unheated Area:
Dimensions
Width:51' 1''
Architectural Styles
Exterior Wall Material
Vinyl SidingBrickWood SidingBoard and Batten
Roofing Type
Gable/Dormer
Roofing Material
Asphalt Shingles
Roof Pitch
8/12
Ceiling Height
9 Foot Ceiling8 Foot Ceiling
Special Feature
FireplaceHome OfficeMud RoomFamily RoomGame RoomLoftStorageVaulted CeilingsExercise RoomOpen Floor Plan
Garage Type
Attached GarageFront Entry
Fireplaces
One Fireplace
Exterior Wall Framing
2x6
Building Lot Type
Down Site
Kitchen Features
Kitchen IslandWalk-in PantryEat-In Kitchen
Porches and Exterior Features
Covered Front PorchScreened Porch/SunroomPatio
Master Suite Features
Master BathroomWalk In ClosetSecond Floor Master

What’s Included

Most plan sets include the following:

icon text-secondary-400 includedTitle Sheet

icon text-secondary-400 includedFloor Plans

icon text-secondary-400 includedWindow & Door Sizes

icon text-secondary-400 includedExterior Elevations

icon text-secondary-400 includedBuilding and/or Wall sections

icon text-secondary-400 includedRoof plans

icon text-secondary-400 includedFoundation Plans

What’s Not Included

These items are  NOT included:

icon text-secondary-400 includedArchitectural or Engineering Stamp - handled locally if required.

icon text-secondary-400 includedSite Plan - handled locally when required.

icon text-secondary-400 includedMechanical Drawings (location of heating and air equipment and duct work) - your subcontractors handle this.

icon text-secondary-400 includedPlumbing Drawings (drawings showing the actual plumbing pipe sizes and locations) - your subcontractors handle this.

icon text-secondary-400 includedEnergy calculations - handled locally when required.

Related House Plans

Plan Collection
Plan Collection
Plan Collection
Plan#161-1067
Starting at$2400
3897
Sq Ft
2
Story
4
Bed
3.5
Bath
3
Car
Plan Collection
Plan Collection
Plan Collection
Plan#120-2176
Starting at$1255
3124
Sq Ft
2
Story
4
Bed
3.5
Bath
2
Car
Plan Collection
Plan Collection
Plan Collection
Plan#161-1038
Starting at$2400
5023
Sq Ft
2
Story
4
Bed
3.5
Bath
3
Car
View All

Other Plans By This Designer

Plan Collection
Plan Collection
Plan Collection
Plan#168-1132
Starting at$3050
4580
Sq Ft
2
Story
5
Bed
5
Bath
3
Car
Plan Collection
Plan Collection
Plan Collection
Plan#168-1129
Starting at$2500
1930
Sq Ft
2
Story
3
Bed
2.5
Bath
2
Car
Plan Collection
Plan Collection
Plan Collection
Plan#168-1099
Starting at$2600
2609
Sq Ft
2
Story
4
Bed
3.5
Bath
3
Car