3-Bedroom, 3786 Sq Ft Craftsman Plan with Mudroom

Front elevation of Craftsman home (ThePlanCollection: House Plan #213-1007)

Images/Plans copyrighted by designer. Photos may reflect homeowner modifications.

About House Plan #213-1007

Sq Ft
3786
Sq Ft
Bedrooms
3
Bedrooms
Bathroom
3
Baths
Half Baths
1
Half Baths
Bedrooms
2
Cars
Bedrooms
2
Stories
Bedrooms
105' 8'
Width
Bedrooms
80
Depth
Starting at$1400.00What's included
STEP 1Bedrooms
STEP 2Bedrooms
STEP 3Bedrooms

Subtotal:$0
Plan Collection

How much will it cost to build?

Estimate your costs based on your location and materials.

Free Cost Instant Estimator

Floor Plans

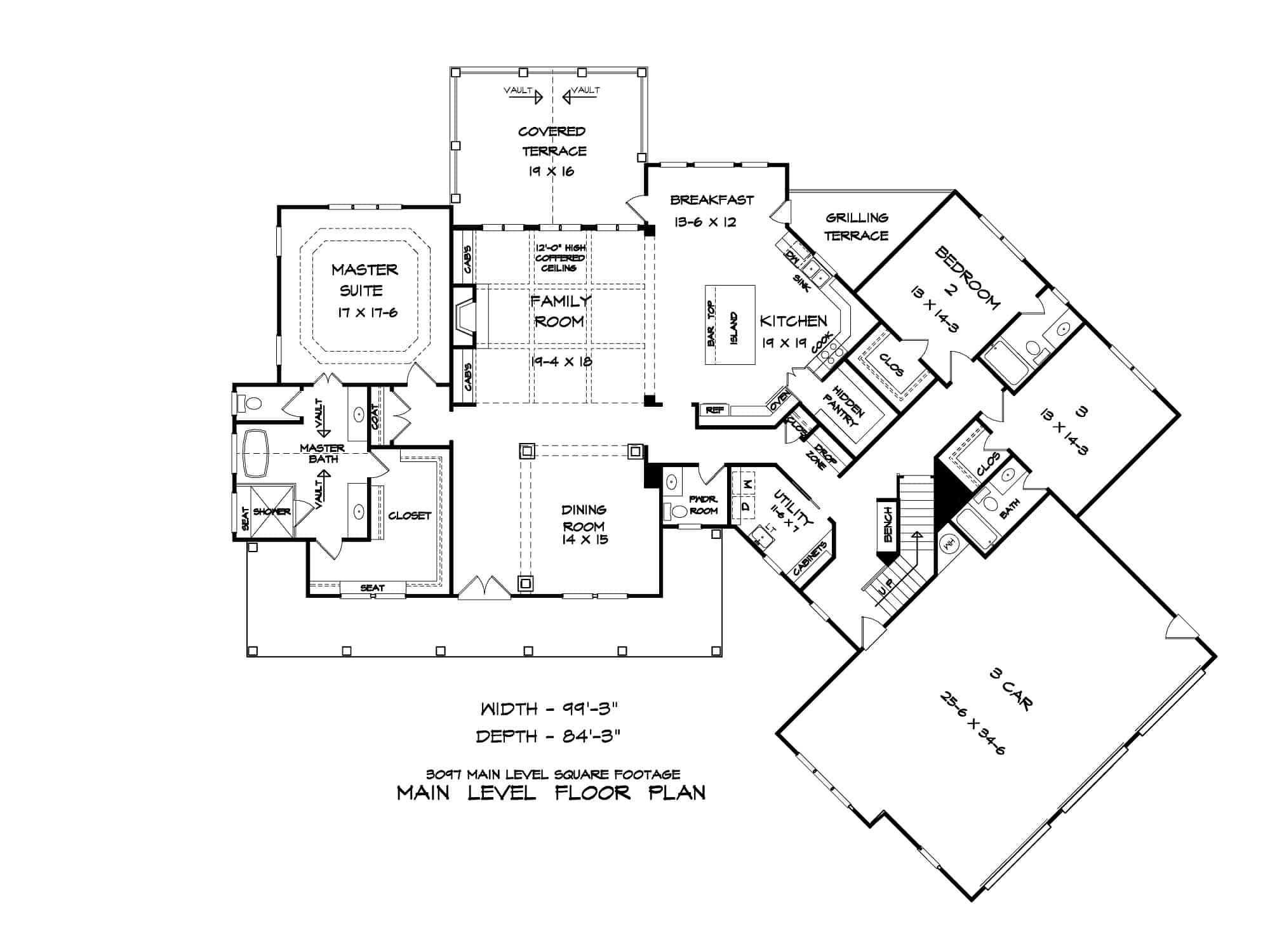
Floor Plan First Story
Floor Plan First Story
Floor Plan Second Story
Floor Plan Second Story
Plan Collection

Can I modify this plan?

Yes! This plan can be customized—contact us for a free quote.

Additional Notes from Designer

Note 1; Alternative foundations for this plan are available as a modification. Please complete and submit our "Modify this Plan" form to get a free quote.

Note 2: Porch sq ft may include any deck ft as well.

House Plan Description

This amazing Modern home with Craftsman influences is 3,786 square feet with 3 bedrooms, 3.5 baths, and a 3-car garage. Among the other features of this beautiful home are:

  • Family Room
  • Dining Room
  • Walk-in Pantry
  • Mudroom
  • Master Bedroom with Walk-in Closet
  • Recreation Area
  • Optional Bedroom
  • Optional Bonus Room

Home Details

Summary
Plan #:213-1007
Starting at:$1400.00
Floors:2
Bedrooms:3
Full Baths:3
Half Baths:1
Garage:
Square Footage
Heated Area:3786 Sq. Ft.
First Floor:3098 Sq. Ft.
Second Floor:688 Sq. Ft.
Unheated Area:
Garage:1113 Sq. Ft.
Dimensions
Width:105' 8''
Depth:80' 8''
Architectural Styles
Exterior Wall Material
Vinyl SidingWood Siding
Roofing Type
Gable/Dormer
Roofing Material
Metal
Roof Pitch
10/12
Ceiling Height
9 Foot Ceiling
Special Feature
FireplaceDining RoomMud RoomFamily RoomMain Level LaundrySplit BathroomStorageVaulted CeilingsOpen Floor Plan
Garage Type
Attached GarageCourtyard Entry
Fireplaces
One Fireplace
Exterior Wall Framing
2x4
Building Lot Type
Flat Site
Kitchen Features
Kitchen IslandNook/Breakfast AreaWalk-in Pantry
Porches and Exterior Features
Wrap Around PorchCovered Rear Patio
Master Suite Features
Main Floor MasterMaster BathroomWalk In ClosetSplit Master Bedroom

What’s Included

Most plan sets include the following:

What’s Not Included

These items are  NOT included:

Related House Plans

Plan Collection
Plan Collection
Plan Collection
Plan#117-1103
Starting at$1345
2847
Sq Ft
2
Story
3
Bed
3
Bath
3
Car
Plan Collection
Plan Collection
Plan Collection
Plan#153-1897
Starting at$2250
4121
Sq Ft
2
Story
3
Bed
3.5
Bath
3
Car
Plan Collection
Plan Collection
Plan Collection
Plan#117-1118
Starting at$1595
3230
Sq Ft
2
Story
3
Bed
3.5
Bath
3
Car
View All

Other Plans By This Designer

Plan Collection
Plan Collection
Plan Collection
Plan#213-1004
Starting at$1400
3061
Sq Ft
1
Story
3
Bed
3.5
Bath
3
Car
Plan Collection
Plan Collection
Plan Collection
Plan#213-1009
Starting at$1400
3277
Sq Ft
2
Story
4
Bed
4.5
Bath
3
Car
Plan Collection
Plan Collection
Plan Collection
Plan#213-1019
Starting at$1400
3990
Sq Ft
1
Story
4
Bed
4.5
Bath
3
Car