700 Sq Ft Pool House Plan with Gathering Area

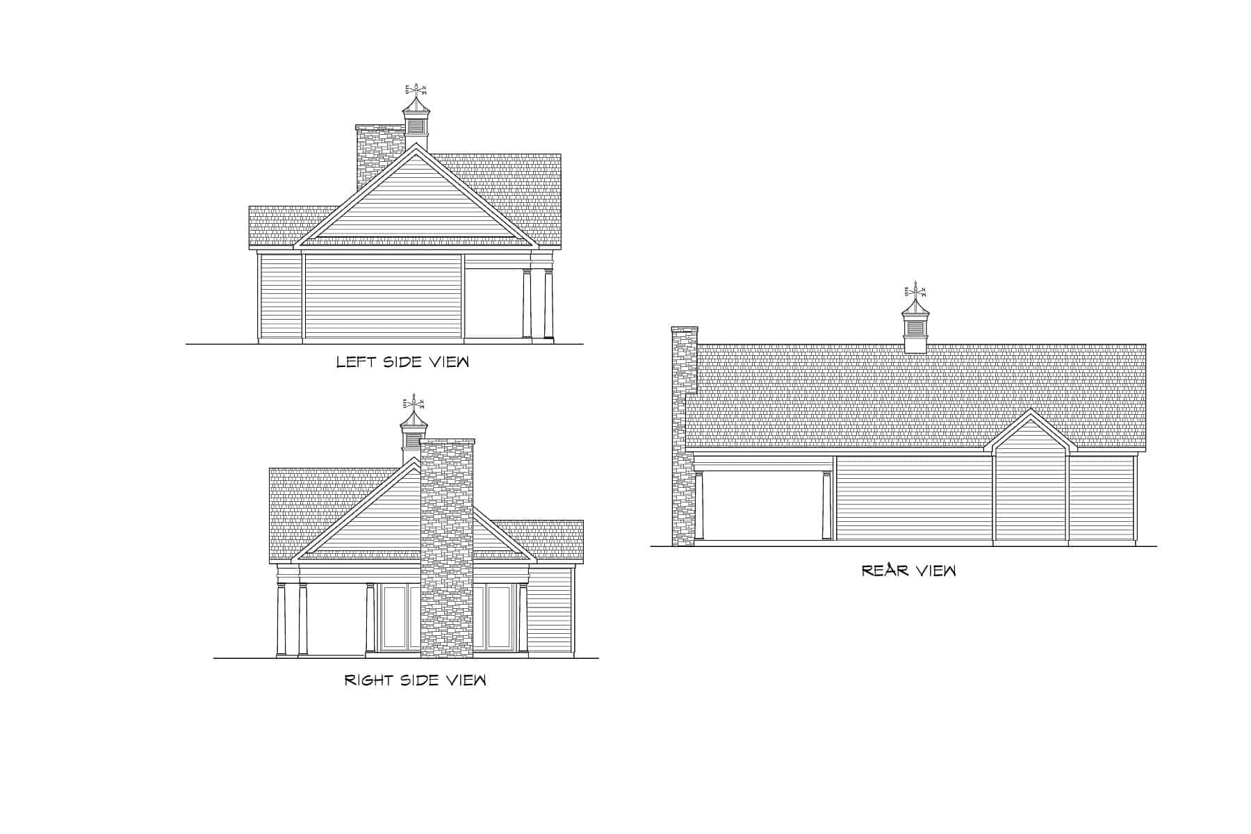
Front elevation of Craftsman home (ThePlanCollection: House Plan #213-1025)

Images/Plans copyrighted by designer. Photos may reflect homeowner modifications.

About House Plan #213-1025

Sq Ft
700
Sq Ft
Bedrooms
0
Bedrooms
Bathroom
1
Baths
Half Baths
0
Half Baths
Bedrooms
0
Cars
Bedrooms
1
Stories
Bedrooms
53' 6'
Width
Bedrooms
34
Depth
Starting at$1200.00What's included
STEP 1Bedrooms
STEP 2Bedrooms
STEP 3Bedrooms

Subtotal:$0
Plan Collection

How much will it cost to build?

Estimate your costs based on your location and materials.

Free Cost Instant Estimator

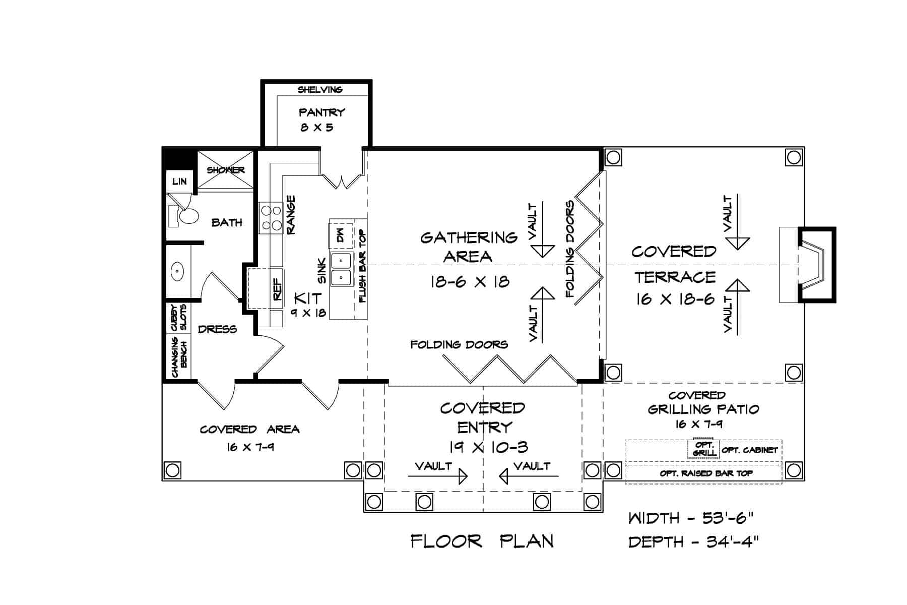
Floor Plans

Floor Plan First Story
Floor Plan First Story
Plan Collection

Can I modify this plan?

Yes! This plan can be customized—contact us for a free quote.

Additional Notes from Designer

Alternative foundations for this plan are available as a modification. Please complete and submit our "Modify this Plan" form to get a free quote.

House Plan Description

Here's an incredible pool house with a gathering area that will perfectly complement your home. The vaulted outdoor space features a covered grilling patio and terrace. There is also a cozy outdoor fireplace, which makes the outdoor space even more inviting.

Home Details

Summary
Plan #:213-1025
Starting at:$1200.00
Floors:1
Bedrooms:0
Full Baths:1
Half Baths:0
Garage:
Square Footage
Heated Area:700 Sq. Ft.
First Floor:700 Sq. Ft.
Unheated Area:
First Floor:1146 Sq. Ft.
Dimensions
Width:53' 6''
Depth:34' 4''
Architectural Styles
Exterior Wall Material
Vinyl SidingRock/StoneWood Siding
Roofing Type
Gable
Roofing Material
Asphalt Shingles
Roof Pitch
12/1210/12
Ceiling Height
10 Foot Ceiling
Special Feature
FireplaceVaulted CeilingsOpen Floor Plan
Fireplaces
One Fireplace
Exterior Wall Framing
2x4
Building Lot Type
Flat Site
Kitchen Features
Walk-in PantryPeninsula/Eating Bar
Porches and Exterior Features
Covered Front Porch

What’s Included

Most plan sets include the following:

What’s Not Included

These items are  NOT included:

Related House Plans

Plan Collection
Plan Collection
Plan Collection
Plan#137-1048
Starting at$550
576
Sq Ft
1
Story
0
Bed
1
Bath
0
Car
Plan Collection
Plan Collection
Plan Collection
Plan#108-1782
Starting at$350
597
Sq Ft
1
Story
0
Bed
1
Bath
2
Car
Plan Collection
Plan Collection
Plan Collection
Plan#108-1773
Starting at$450
753
Sq Ft
1
Story
0
Bed
1
Bath
4
Car
View All

Other Plans By This Designer

Plan Collection
Plan Collection
Plan Collection
Plan#213-1004
Starting at$1400
3061
Sq Ft
1
Story
3
Bed
3.5
Bath
3
Car
Plan Collection
Plan Collection
Plan Collection
Plan#213-1009
Starting at$1400
3277
Sq Ft
2
Story
4
Bed
4.5
Bath
3
Car
Plan Collection
Plan Collection
Plan Collection
Plan#213-1019
Starting at$1400
3990
Sq Ft
1
Story
4
Bed
4.5
Bath
3
Car