3-Bedroom, 3716 Sq Ft Country Plan with Screened Porch/Sunroom

Front Elevation for European Homeplans CLS-3700.

Images/Plans copyrighted by designer. Photos may reflect homeowner modifications.

About House Plan #165-1137

Sq Ft
3716
Sq Ft
Bedrooms
3
Bedrooms
Bathroom
3
Baths
Half Baths
0
Half Baths
Bedrooms
3
Cars
Bedrooms
1
Stories
Bedrooms
91' 0'
Width
Bedrooms
78
Depth
Starting at$2050.00What's included
STEP 1Bedrooms
STEP 2Bedrooms
STEP 3Bedrooms

Subtotal:$0
Plan Collection

How much will it cost to build?

Estimate your costs based on your location and materials.

Free Cost Instant Estimator

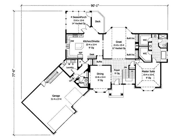
Floor Plans

Floor Plan First Story
Floor Plan First Story
Floor Plan Basement
Floor Plan Basement
Plan Collection

Can I modify this plan?

Yes! This plan can be customized—contact us for a free quote.

Additional Notes from Designer

PLEASE NOTE: Materials Lists are based on the STOCK plan ONLY without modifications! Custom materials lists are available if you modify a plan. Please ask for a quote.

House Plan Description

Two lovely bay windows flank the entrance to this gorgeous home. Inside, a central Great Room offers a fireplace surrounded by built-in shelves. The modern island kitchen boasts a sunny dinette and access to a four-season porch. A main floor master suite features two walk-in closets and a lovely garden tub.

Home Details

Summary
Plan #:165-1137
Starting at:$2050.00
Floors:1
Bedrooms:3
Full Baths:3
Half Baths:0
Garage:
Square Footage
Heated Area:3716 Sq. Ft.
First Floor:2357 Sq. Ft.
Unheated Area:
Basement:1359 Sq. Ft.
Dimensions
Architectural Styles
Exterior Wall Material
BrickStucco
Roofing Type
Hip
Roofing Material
Asphalt Shingles
Ceiling Height
9 Foot Ceiling
Special Feature
FireplaceDining RoomMud RoomFamily RoomGame RoomMain Level LaundryColor PhotosSplit BathroomVaulted CeilingsWorkshop
Garage Type
Attached GarageCourtyard Entry
Fireplaces
Two Fireplaces
Exterior Wall Framing
2x6
Building Lot Type
Flat Site
Kitchen Features
Kitchen IslandNook/Breakfast AreaWalk-in PantryPeninsula/Eating BarEat-In Kitchen
Porches and Exterior Features
Covered Front PorchSundeckScreened Porch/Sunroom
Master Suite Features
Main Floor MasterMaster BathroomWalk In ClosetSitting Area

What’s Included

Most plan sets include the following:

icon text-secondary-400 includedFoundation plan

icon text-secondary-400 includedFloor plan(s)

icon text-secondary-400 includedExterior elevations

icon text-secondary-400 includedBuilding cross sections

icon text-secondary-400 includedRoof plan

icon text-secondary-400 includedNotes & details

What’s Not Included

These items are  NOT included:

icon text-secondary-400 includedArchitectural or Engineering Stamp - handled locally if required.

icon text-secondary-400 includedSite Plan - handled locally when required.

icon text-secondary-400 includedMechanical Drawings (location of heating and air equipment and ductwork) - your subcontractors handle this.

icon text-secondary-400 includedPlumbing Drawings (drawings showing the actual plumbing pipe sizes and locations) - your subcontractors handle this.

icon text-secondary-400 includedEnergy calculations - handled locally when required.

Related House Plans

Plan Collection
Plan Collection
Plan Collection
Plan#198-1011
Starting at$3295
3999
Sq Ft
1
Story
3
Bed
3.5
Bath
4
Car
Plan Collection
Plan Collection
Plan Collection
Plan#108-1123
Starting at$1150
2913
Sq Ft
1
Story
3
Bed
3.5
Bath
2
Car
Plan Collection
Plan Collection
Plan Collection
Plan#153-2005
Starting at$2250
4183
Sq Ft
1
Story
3
Bed
3.5
Bath
3
Car
View All

Other Plans By This Designer

Plan Collection
Plan Collection
Plan Collection
Plan#165-1077
Starting at$2450
6690
Sq Ft
1
Story
5
Bed
5
Bath
4
Car
Plan Collection
Plan Collection
Plan Collection
Plan#165-1186
Starting at$2050
2889
Sq Ft
2
Story
4
Bed
3.5
Bath
2
Car
Plan Collection
Plan Collection
Plan Collection
Plan#165-1168
Starting at$2050
2456
Sq Ft
2
Story
3
Bed
2.5
Bath
2
Car